Luxury real estate agency
Presnenskaya Embankment, 6c2,
Empire Tower,
3rd entrance, office 4315
Moscow region,
Rublyovo-Uspenskoe highway, Usovo, 100, RC "Residence on Rublyovka", Block G

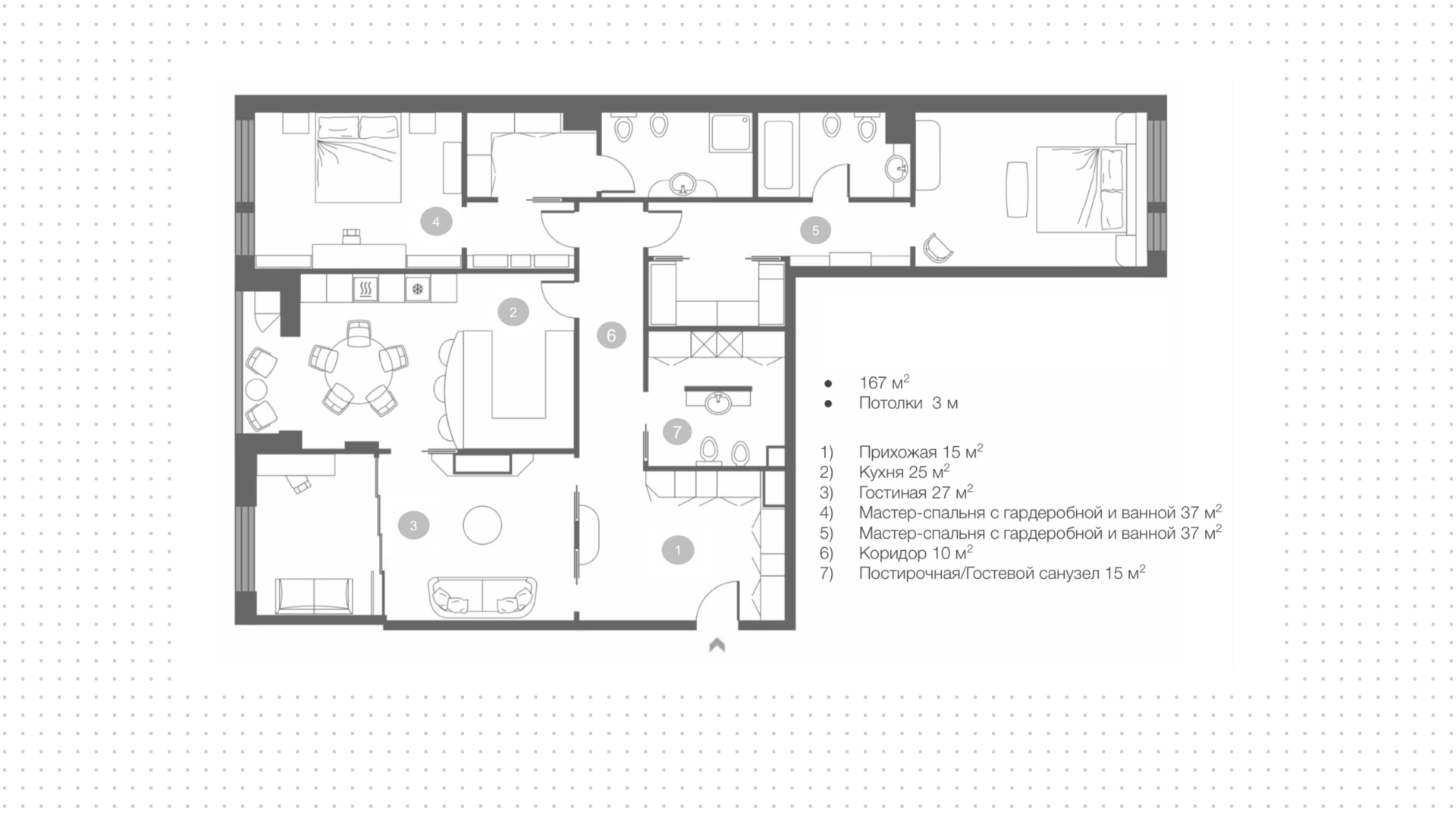
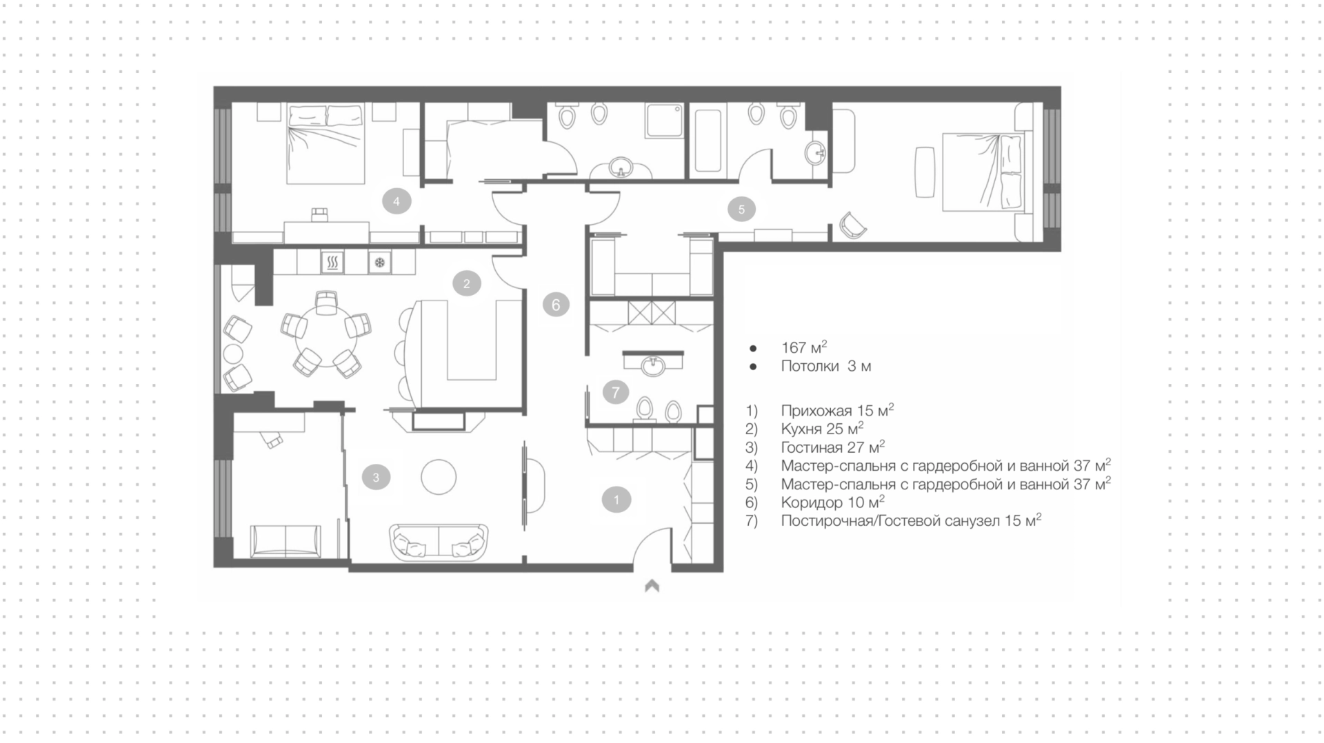
Apartment c 3 спальнями, 167 м² в ЖК Barrin House, 7 этаж

Barrin House
3-bedroom apartment, 167 m²
Sportivnaya, 12 minutes
RUB 367,400,000 $4,573,876 €3,970,206
RUB 2,200,000 / m² $27,388 / m² €23,774 / m²
3 bedrooms
7 floor of 12
with finishing
proprietor
167 m²
Finished apartment with premium renovation in Barrin House complex in the center of Khamovniki. Comfortable layout includes a spacious living room, kitchen-dining room, 3 bedrooms, 3 bathrooms, 2 dressing rooms. The apartment is fully equipped with furniture and appliances. The windows offer excellent views on 2 sides of the world.
Read Full