Агентство элитной недвижимости
Пресненская набережная, 6с2,
башня «Империя»,
3-й подъезд, офис 4315
Московская область,
Рублёво-Успенское шоссе, Усово, 100, ДЦ «Резиденция на Рублёвке», Блок Г
+7 (495) 255-01-61 +7 (499) 877-49-39
Сейчас работаем

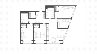
Квартиры c 4 спальнями, 143 м² в ЖК Sky House, 15 этаж

Sky House
Квартира с 4 спальнями, 143 м²
Октябрьская, 10 минут
123 000 000 ₽ 1 580 000 $ 1 360 000 €
860 000 ₽ / м² 11 000 $ / м² 9 478 € / м²
4 спальни
15 этаж из 22
с отделкой
от собственника
143 м²
Видовая угловая квартира с четырьмя спальнями в комплексе бизнес-класса Sky House на Якиманке. Квартира общей площадью 143 м² расположена на пятнадцатом этаже в корпусе 3. Интерьер оформлен в стиле современной классики. Установлены системы приточно-вытяжной вентиляции с фильтрацией и увлажнения воздуха, умные сенсорные выключатели Werkel и «тёплый пол» в санузлах. Выполнена звукоизоляция и гидроизоляция пола и стен. Мебель и двери изготовлены на заказ с покрытием из итальянской эмали. На полу выложен широкоформатный керамогранит и паркетная доска в форме «французской елки». Стены покрыты американской краской и украшены декоративными молдингами и лепными деталями из гипса от компании Петергоф. Сантехника представлена брендами Villeroy&Boch и Grocenberg. Столешница, фартук и биокамин на кухне из натурального мрамора, бытовая техника от Asco и Kuppersberg, смесители — Omoikiri. Функциональная планировка включает кухню-гостиную, четыре спальни, два санузла, три гардеробные, постирочную и холл. Панорамные окна ориентированы на две стороны, открываются виды на город и благоустроенную территорию комплекса.
Читать полностью

О комплексе

Фотографии архитектуры ЖК Sky House (Скай Хаус)
Архитектура
Фотографии инфраструктуры ЖК Sky House (Скай Хаус)
Инфраструктура
Фотографии Лобби ЖК Sky House (Скай Хаус)
Лобби
Фотографии интерьеров ЖК Sky House (Скай Хаус)
Интерьеры
Фотографии  ЖК Sky House (Скай Хаус)
Виды
Фотографии паркинга ЖК Sky House (Скай Хаус)
Паркинг
Фотографии  ЖК Sky House (Скай Хаус)
Окружение
Фотографии  ЖК Sky House (Скай Хаус)
Транспортная доступность

Места поблизости

«Парк Горького»
Парк искусств «Музеон»
Новая Третьяковка
Даниловский рынок
Даниловский монастырь
Павелецкая площадь
Торговый центр «Павелецкая Плаза»
Кремль
Дом культуры «ГЭС-2»
Третьяковская галерея

Застройщик комплекса Sky House

Capital Group — Одна из старейших российских девелоперских компаний, на рынке с 1993 года. Более 7 800 000 м² реализованных площадей. Лидер в строительстве жилых небоскребов в Москве.

Лица
4 кв. 2017
Цена по запросу
Медный
2 кв. 2021
Цена по запросу
The Book
2 кв. 2020
Цена по запросу
Легенда цветного
4 кв. 2010
Цена по запросу
Город Столиц
от 98 100 000 ₽
Небо
от 36 000 000 ₽

Поможем получить ипотеку на самых выгодных условиях

Подайте заявку на ипотеку и получите решение сразу из нескольких банков-партнёров.

Одобрить ипотеку
bookshelf
photo
Блинова Анастасия
Ипотечный брокер
lamp

Частые вопросы

Где находится ЖК Sky House?

Жилой комплекс Sky House расположен на Якиманке по адресу улица Мытная, 40.

Когда сдан клубный комплекс Sky House?

Последний корпус сдали во 2 квартале 2023 года.

Кто застройщик ЖК Sky House?

Девелопер комплекса — Capital Group. На рынке недвижимости компания присутствует с 1993 года. Сегодня в портфеле застройщика десятки успешных комплексов и небоскрёбов: «Дом Дау», «Бадаевский», OKO Towers, Mon Cher и другие. Девелопер создаёт проекты, которые драйвят рынок и показывают новый уровень качества.

Сколько стоят квартиры в ЖК Sky House?

Стоимость м² начинается от 407 000 рублей. Видовая квартира с 2 спальнями площадью 110 м² и дизайнерской отделкой с элементами мрамора и дерева, полностью меблированная — стоит 105 000 000 рублей. Семейная резиденция с 3 спальнями площадью 153 м², окнами на 2 стороны света, без отделки — стоит 71 760 000 рублей. Актуальные лоты и точную стоимость можете уточнить у персонального брокера Whitewill.

Как купить квартиру в ЖК Sky House?

Оставьте заявку на обратный звонок — и персональный брокер Whitewill c вами оперативно свяжется. Расскажем о возможности покупки в рассрочку и ипотеку, подробности про дом и преимущества района. А ещё — организуем показ понравившейся квартиры и сопроводим на всех этапах сделки.

Похожие комплексы

«Лаврушинский»

«Лаврушинский» — дом с лучшими видами на Кремль. Расположение в 1 км от Кремля, высота, низкие здания рядом, просторные балконы и террасы дают прямые виды на главные достопримечательности. Тишина и простор центра.

Якиманка
Третьяковская, 7 минут
Квартиры и Виллы
от 221 350 000 ₽ от 2 850 000 $ от 2 430 000 €
Застройщик
Sminex
Сдача проекта
Сдан
Лоты Площадь от
Цена от
Третьяковская, 7 минут
Квартиры и Виллы
от 221 350 000 ₽ от 2 850 000 $ от 2 430 000 €
Площадь
от 66 м²
Район
Якиманка
На страницу комплекса
Для инвесторов
Armani/Casa Moscow Residences

27 клубных резиденций делюкс-класса рядом с Третьяковской галереей в 1,5 километрах от Кремля.

Якиманка
Третьяковская, 6 минут
Квартиры
от 575 360 000 ₽ от 7 410 000 $ от 6 370 000 €
Застройщик
Vos’hod
Сдача проекта
Сдан
Лоты Площадь от
Цена от
Третьяковская, 6 минут
Квартиры
от 575 360 000 ₽ от 7 410 000 $ от 6 370 000 €
Площадь
от 180 м²
Район
Якиманка
На страницу комплекса
CULT

Проект премиум-класса в сердце района Якиманка. Можно выбрать апартаменты с дизайнерской отделкой в двух стилях – неоклассика или минимализм. На верхних этажах представлены варианты без отделки с возможностью установки дровяного камина.

Якиманка
Октябрьская, 1 минут
Апартаменты
от 41 600 000 ₽ от 536 000 $ от 456 000 €
Застройщик
GRAVION
Сдача проекта
1 кв. 2026
Лоты Площадь от
Цена от
Октябрьская, 1 минут
Апартаменты
от 41 600 000 ₽ от 536 000 $ от 456 000 €
Площадь
от 28 м²
Район
Якиманка
Скачать презентацию
Красный Октябрь

Комплекс особняков делюкс-класса в отреставрированных корпусах знаменитой кондитерской фабрики. Находится на престижном полуострове Балчуг в 10 минутах от Кремля. В первой очереди проекта запланированы 3 малоэтажных особняка на 29 квартир.

Якиманка
Кропоткинская, 12 минут
 
Цена по запросу
Застройщик
Гута Девелопмент
Сдача проекта
3 кв. 2026
Кропоткинская, 12 минут
 
Цена по запросу
Район
Якиманка
Кадашевские палаты

Жилой комплекс всего в километре от Кремля. В проекте 25 лофт-апартаментов свободной планировки, включая двухуровневые и трёхуровневые апартаменты с мансардами и высокими потолками. В апартаментах на верхних этажах можно установить камин.

Якиманка
Третьяковская, 3 минут
Апартаменты
от 200 000 000 ₽ от 2 580 000 $ от 2 190 000 €
Застройщик
KR Properties
Сдача проекта
Сдан
Лоты Площадь от
Цена от
Третьяковская, 3 минут
Апартаменты
от 200 000 000 ₽ от 2 580 000 $ от 2 190 000 €
Площадь
от 172 м²
Район
Якиманка
Скачать презентацию
DUO

DUO — клубный дом делюкс-класса на Софийской набережной. В проекте планируют создать 49 квартир различных форматов, в том числе пять пентхаусов и две двухуровневые резиденции. Изюминка проекта Duo — изысканный пентхаус площадью 1150 м² с собственным бассейном.

Якиманка
Новокузнецкая, 10 минут
Квартиры
от 118 340 000 ₽ от 1 520 000 $ от 1 300 000 €
Застройщик
Hutton Development
V2Group
Сдача проекта
2 кв. 2026
Лоты Площадь от
Цена от
Новокузнецкая, 10 минут
Квартиры
от 118 340 000 ₽ от 1 520 000 $ от 1 300 000 €
Площадь
от 48 м²
Район
Якиманка
На страницу комплекса
Онегин

Якиманка
Полянка, 3 минут
Квартиры
от 159 000 000 ₽ от 2 050 000 $ от 1 750 000 €
Застройщик
Балтийский монолит
Сдача проекта
Сдан
Лоты Площадь от
Цена от
Полянка, 3 минут
Квартиры
от 159 000 000 ₽ от 2 050 000 $ от 1 750 000 €
Площадь
от 120 м²
Район
Якиманка
Скачать презентацию
Дом на набережной

Якиманка
Боровицкая, 10 минут
 
Цена по запросу
Застройщик
Застройщик неизвестен
Сдача проекта
Сдан
Боровицкая, 10 минут
 
Цена по запросу
Район
Якиманка
Созвездие Капитал-1

Якиманка
Шаболовская, 9 минут
 
Цена по запросу
Застройщик
Capital Group
Сдача проекта
Сдан
Шаболовская, 9 минут
 
Цена по запросу
Район
Якиманка
Софийский

Комплекс апартаментов люкс-класса на Софийской набережной. Из окон открываются виды на Кремлёвскую набережную и Храм Христа Спасителя. В приватном внутреннем парке с ландшафтным дизайном разместили лавочки и детскую площадку.

Якиманка
Новокузнецкая, 10 минут
Апартаменты
от 78 000 000 ₽ от 1 010 000 $ от 855 000 €
Застройщик
Трансстройинвест
Сдача проекта
Сдан
Лоты Площадь от
Цена от
Новокузнецкая, 10 минут
Апартаменты
от 78 000 000 ₽ от 1 010 000 $ от 855 000 €
Площадь
от 53 м²
Район
Якиманка
Скачать презентацию