 
                    ЖК DUO
 
                             
                             
                             
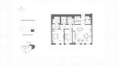
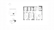
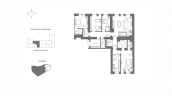
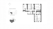
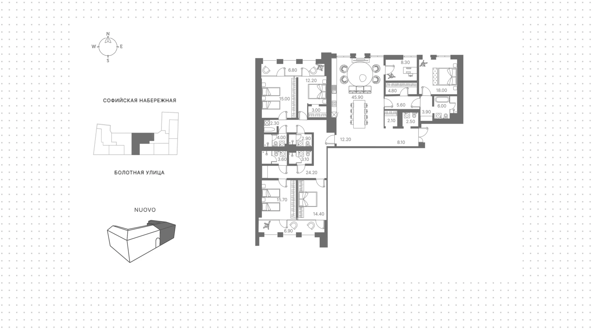
                            Планировки в клубном доме duo
| 1 спальня |  | от | 10 вариантов планировок | 
| 2 спальни |  | от | 11 вариантов планировок | 
| 3 спальни |  | от | 11 вариантов планировок | 
| 4+ спален |  | от | 9 вариантов планировок | 
О КЛУБНОМ ДОМЕ DUO
 
     
     
     
     
     
     
     
     
    В презентации — расположение, архитектура, инфраструктура, информация о квартирах и техническом оснащении клубного дома.
 
                    DUO на карте
 
     
     
     
     
     
     
     
     
     
    Девелопер проекта DUO
Hutton Development — застройщик специализируется на строительстве домов бизнес- и премиум-класса в стиле европейской архитектуры.
 
             
             
             
             
            Поможем получить ипотеку на самых выгодных условиях
 
         
             
        Ход строительства
 
     
     
    Частые вопросы
Что такое ЖК DUO и где он расположен?
Жилой комплекс «Дуо» – это проект реновации на Софийской набережной в Москве. Проект реализуется застройщиком Hutton Development и предлагает уникальное сочетание комфорта и роскоши. Комплекс находится в живописном районе, недалеко от таких известных достопримечательностей, как Храм Христа Спасителя и Третьяковская галерея.
Какие планировки квартир доступны в ЖК DUO?
В жилом комплексе DUO предлагается разнообразие планировок, включая двухуровневые квартиры и пентхаусы. Все планировки жилого комплекса разработаны с учетом современных стандартов комфорта и функциональности. Вы можете выбрать квартиры площадью от 46 квадратных метров.
Какова высота потолков в квартирах ЖК DUO?
Одним из ключевых преимуществ жилого комплекса DUO является высота потолков, которая составляет 3 метра. Это создаёт ощущение простора и позволяет эффективно использовать пространство. Высокие потолки также способствуют лучшему естественному освещению и вентиляции.
Как можно купить квартиру в ЖК DUO?
Если вы хотите купить квартиру в жилом комплексе DUO, закажите обратный звонок на сайте. Специалист расскажет о доступных вариантах или подберёт похожие новостройки.
Доступна ли ипотека в ЖК DUO?
Да, вы можете приобрести квартиру в жилом комплексе DUO в ипотеку.
Какова стоимость квартир в ЖК DUO?
Стоимость квадратного метра в жилом комплексе DUO стартует от 2 070 000 рублей. Цены на квартиры с 1 спальней начинаются от 106 500 000 рублей, а на лоты с 3 спальнями – от 328 540 000 рублей.
Когда сдача ЖК DUO?
Сдача клубного дома запланирована на 2 квартал 2026 года. За ходом строительства можно следить на сайте официального застройщика Hutton Development.
 
     
                                                                                                                             
                                                                                                                             
                                                                                                                             
                                                                                                                             
                                                                                                                             
                                                                                                                             
                                                                                                                             
                                                                                                                             
                                                                                                                                                                                 
                                                                                                                             
                                                                                                                             
                                                                                                                             
                                                                                                                             
                                                                                                                             
                                                                                                                             
                                                                                                                             
                                                                                                                             
                                                                                                                                                                                 
                                                                                                                             
                                                                                                                             
                                                                                                                             
                                                                                                                             
                                                                                                                             
                                                                                                                             
                                                                                                                             
                                                                                                                                                                                 
                                                                                                                             
                                                                                                                             
                                                                                                                             
                                                                                                                             
                                                                                                                             
                                                                                                                             
                                                                                                                             
                                                                                                         
                         
                         
                         
                         
                         
                         
                         
                         
                         
                         
                         
                         
                         
                         
                         
                         
                         
                         
                         
                         
                         
                         
                         
                         
                         
                         
                         
                         
                         
                         
                         
                         
                         
                         
                         
                         
                         
                         
                         
                         
                         
                         
                         
                         
                         
                         
                         
                         
                         
                         
                         
                         
                         
                         
                         
                         
                         
                         
                         
                         
                         
                         
                         
                         
                         
                         
                         
                         
                         
                         
                         
                         
                         
                         
                         
                         
                         
                         
                         
                         
                         
                         
                         
                         
                         
                         
                         
                         
                         
                         
                         
                         
                         
                         
                         
                         
                         
                         
                         
                         
                         
                         
                         
                         
                         
                         
                         
                         
                         
                         
                         
                         
                         
                         
                         
                         
                         
                         
                         
                         
                         
                         
                         
                         
                         
                         
                         
                         
                         
                         
                         
                         
                         
                         
                         
                         
                         
                         
                         
                         
                         
                         
                         
                         
                         
                         
                         
                         
                         
                        