Luxury real estate agency
Presnenskaya Embankment, 6c2,
Empire Tower,
3rd entrance, office 4315
Moscow region,
Rublyovo-Uspenskoe highway, Usovo, 100, RC "Residence on Rublyovka", Block G

Office, 300 m², Zemledelchesky lane, 11, Lot №27571

У лота нет комплекса
Office in MFC "House on Plyushchikha", 300 m²
Khamovniki district
RUB 200,000,000 $2,630,000 €2,250,000
RUB 667,000 / m² $8,431 / m² €7,247 / m²
with finishing
new building
300 m²
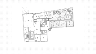
The 300 m² office is located on the 2nd floor of the multifunctional center "House on Plyushchikha". The room with a cubicle layout has designer finishing. There are working offices and a manager's zone consisting of a reception area, a study, a bedroom, a toilet, a shower room, a dressing room, a balcony and a separate entrance. Central communications are connected, supply and exhaust ventilation and split-system air-conditioning are installed. There is a separate entrance from the street and a common entrance with the reception area.
Read Full