Luxury real estate agency
Presnenskaya Embankment, 6c2,
Empire Tower,
3rd entrance, office 4315
Moscow region,
Rublyovo-Uspenskoe highway, Usovo, 100, RC "Residence on Rublyovka", Block G

cottage, 761 м² в КП Gorki-6, лот №11775

Gorki-6
Residence with swimming pool, 761 m²
RUB 550,000,000 $7,210,000 €6,080,000
RUB 723,000 / m² $9,475 / m² €7,989 / m²
4 bedrooms
3 floors
proprietor
761 m²
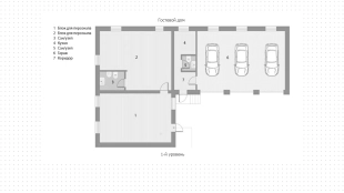
The 761 m² country house is built on a spacious wooded plot of 59.6 hectares. The facade of the building is faced with red clinker brick, beige stone and decorated with blue and white mosaic around the window openings. Warm colors prevail in the interior decoration, creating an atmosphere of coziness, the cottage is equipped with furniture. There are 4 bedrooms, a living room with a second light, a study with a fireplace, a kitchen, a dining room and a terrace. The basement has a SPA-zone with a swimming pool, sauna, sauna, massage room and rest room. Nearby there is a guest house with an apartment for staff and a garage for 3 cars. The plot with a small pond is landscaped and paths are paved.
Read Full