Агентство элитной недвижимости
Пресненская набережная, 6с2,
башня «Империя»,
3-й подъезд, офис 4315
Московская область,
Рублёво-Успенское шоссе, Усово, 100, ДЦ «Резиденция на Рублёвке», Блок Г
+7 (495) 255-01-61 +7 (499) 877-49-39
Сейчас работаем

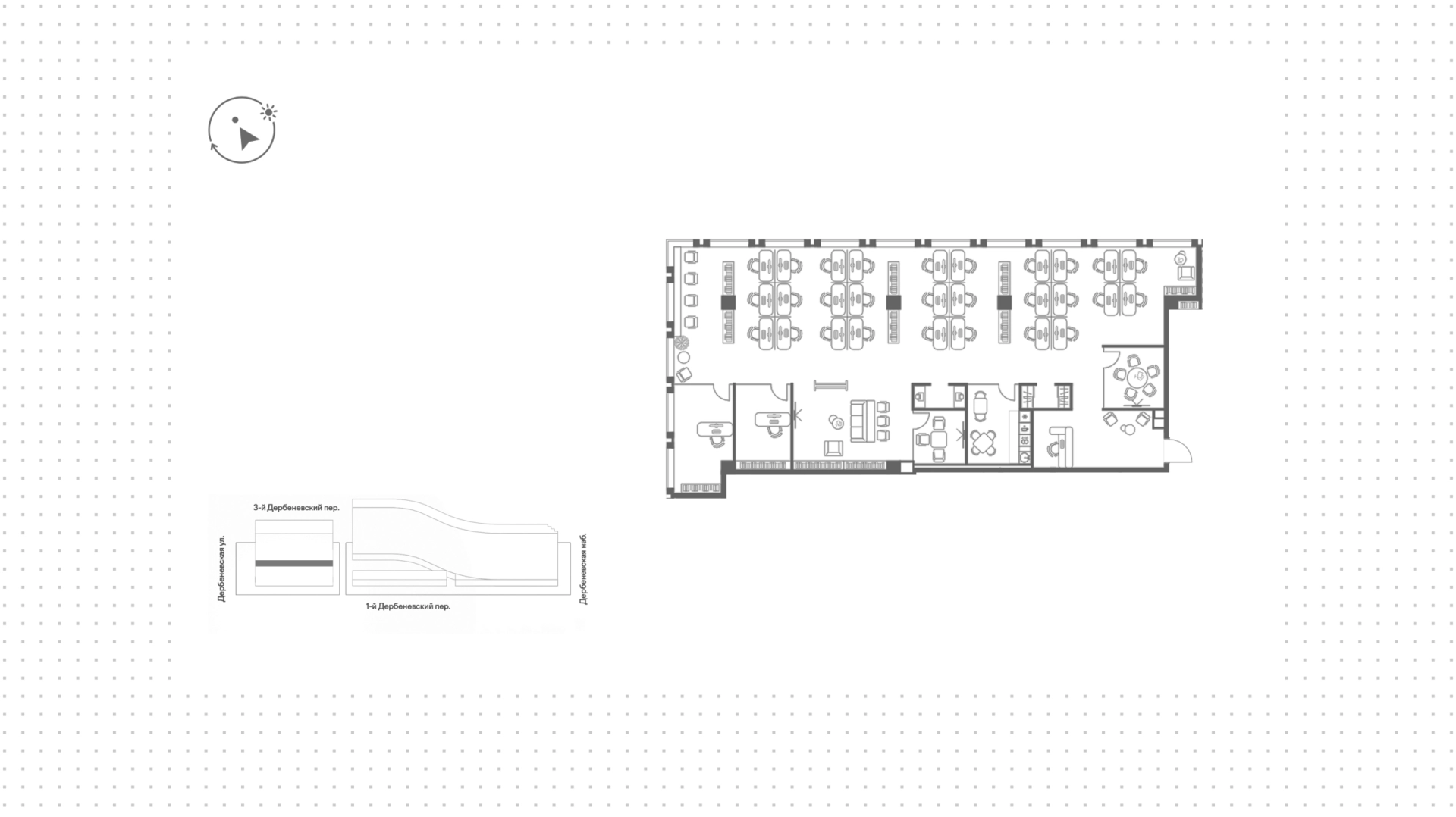
Бизнес-центр, 284 м², Дербеневская, 1, Лот №9024

OPUS
Просторный офис с двухкамерными панорамными окнами, 284 м²
Даниловский р-н
Павелецкая, 15 минут
159 970 000 ₽ 2 050 000 $ 1 770 000 €
561 000 ₽ / м² 7 205 $ / м² 6 200 € / м²
без отделки
1 квартал 2026
новостройка
284 м²
Читать полностью

О комплексе OPUS

Фотографии архитектуры OPUS
Архитектура
Фотографии инфраструктуры OPUS
Инфраструктура
Фотографии Лобби OPUS
Лобби
Фотографии интерьеров OPUS
Интерьеры
Фотографии приватной территории OPUS
Приватная территория
Фотографии паркинга OPUS
Паркинг
Фотографии  OPUS
Виды
Места поблизости
15 минут
5 минут
Павелецкая площадь
15 минут
5 минут
Торговый центр «Павелецкая Плаза»
45 минут
20 минут
«Парк Горького»
35 минут
10 минут
Культурный центр ЗИЛ
40 минут
15 минут
Новая Третьяковка
50 минут
20 минут
«Нескучный сад»
35 минут
15 минут
Третьяковская галерея
50 минут
15 минут
Дом культуры «ГЭС-2»
0 минут
15 минут
Кремль
0 минут
15 минут
Парк «Зарядье»
0 минут
15 минут
ГУМ

Застройщик комплекса OPUS

ГК «Пионер» — один из крупнейших застройщиков в границах «старой» Москвы. Уже более семи лет ГК «Пионер» успешно развивает концепцию комфортного жилья под брендом «Жилые кварталы LIFE».

Life Ботанический сад
4 кв. 2019
Цена по запросу
Yes Технопарк
4 кв. 2021
Цена по запросу
Life Кутузовский
3 кв. 2020
Цена по запросу
Life Ботанический сад 2
4 кв. 2020
Цена по запросу
Yes Ботанический сад
1 кв. 2021
Цена по запросу
Life Варшавская
от 19 940 000 ₽

Поможем получить ипотеку на самых выгодных условиях

Подайте заявку на ипотеку и получите решение сразу из нескольких банков-партнёров.
Одобрить ипотеку
bookshelf
photo
Блинова Анастасия
Ипотечный брокер
lamp

Ход строительства

Начало строительства
4 кв. 2025
Сдача проекта
4 кв. 2025
Готовность
100%
 OPUS
Октябрь’25
 OPUS
Сентябрь’25
 OPUS
Август’25

Частые вопросы

Какие особенности клубного дома OPUS?

Клубный дом «ОПУС» – это 11-этажный жилой комплекс делюкс-класса в Даниловском районе от официального застройщика ГК «Пионер». Близость Москвы-реки определила облик проекта: здание выполнено в форме волны, повторяя изгиб реки. В лобби обустроена лаундж-зона с камином, кинозал и коворкинг с переговорными комнатами. На втором этаже открыли центр спорта и здоровья: начните утро с кардио- или тренировки по боксу, а после – посетите массажный кабинет. 

Какие цены на квартиры в ЖК OPUS?

Цена квадратного метра стартует от 800 000 рублей. Стоимость квартир с одной спальней начинается от 52 680 000 рублей, а семейных вариантов с 3 спальнями – от 130 330 000 рублей. 

Каковы планировки жилого комплекса OPUS?

Всего в жилом комплексе OPUS реализовано 188 квартир. Вы можете купить лот с 1-4 спальнями площадью 56-284 м². На верхних этажах расположены пентхаусы с высотой потолков до 7,2 метров и возможностью установки дровяного камина. Также доступны лоты с террасами, балконами и гардеробными комнатами. Из окон большинства квартир открываются завораживающие виды на Москву-реку. 

Как можно купить квартиру в ЖК OPUS?

Если вы хотите купить квартиру в клубном доме OPUS, закажите обратный звонок на нашем сайте. Специалист расскажет о доступных вариантах в этом жилом комплексе или подберёт похожие новостройки. 

Доступна ли ипотека?

Да, застройщик Pioneer сотрудничает с ведущими банками, где вы можете оформить ипотечное кредитование на выгодных условиях. 

Каков ход строительства ЖК OPUS?

Сдача клубного дома OPUS запланирована на 4 квартал 2025 года. Вы можете посетить официальный сайт застройщика, где отображается вся актуальная информация о ходе строительства. 

Где расположен ЖК OPUS?

ЖК расположен по адресу Москва, Дербеневская улица, 1. В 20 минутах пешком от дома расположена станция метро «Павелецкая». До Садового кольца вы доедете за 5 минут на машине. 

Похожие комплексы

Shagal

Корпуса бизнес-класса на берегу Москвы-реки. Выбирайте многоуровневые таунхаусы или квартиры-галереи с панорамным окнами. И просыпайтесь каждое утро с завораживающим видом на гладь реки и зеленый парк.

Даниловский
Технопарк , 8 минут
Квартиры
от 18 700 000 ₽ от 240 000 $ от 206 000 €
Застройщик
Группа «Эталон»
Лоты Площадь от
Цена от
Технопарк , 8 минут
Квартиры
от 18 700 000 ₽ от 240 000 $ от 206 000 €
Площадь
от 21 м²
Район
Даниловский
На страницу комплекса
Для инвесторов
High Life

Жизнь для деловых семейных людей. Проводите рабочую встречу в коворкинге, пока ваши дети учатся в частной школе. А после выходите вместе гулять в живописный сад с холмами и склонами.

Даниловский
Павелецкая, 10 минут
Квартиры
от 27 040 000 ₽ от 347 000 $ от 299 000 €
Застройщик
Pioneer
Сдача проекта
Сдан
Лоты Площадь от
Цена от
Павелецкая, 10 минут
Квартиры
от 27 040 000 ₽ от 347 000 $ от 299 000 €
Площадь
от 24 м²
Район
Даниловский
На страницу комплекса
Forst

Комплекс бизнес-класса на первой линии Симоновской набережной. Путь до Кремля займёт 20 минут. В проекте 5 корпусов и 808 квартир, включая видовые пентхаусы. Комплекс вдохновлён европейским севером: лобби в стиле эко-скандинавии, а парк напоминает норвежский лес.

Даниловский
Тульская, 15 минут
 
Цена по запросу
Застройщик
Forma
Сдача проекта
Сдан
Тульская, 15 минут
 
Цена по запросу
Район
Даниловский
Logos

Баланс активной жизни и спокойного отдыха. Выбирайте не просто дом, а целое пространство: парящая библиотека, коворкинг, гостиная с камином, кинозал, открытая кухня и не только.

Даниловский
Тульская, 6 минут
Апартаменты
от 22 000 000 ₽ от 282 000 $ от 243 000 €
Застройщик
Sense
Сдача проекта
Сдан
Лоты Площадь от
Цена от
Тульская, 6 минут
Апартаменты
от 22 000 000 ₽ от 282 000 $ от 243 000 €
Площадь
от 41 м²
Район
Даниловский
На страницу комплекса
Insider

Апарт-комплекс бизнес-класса на первой линии Симоновской набережной. В проекте 909 апартаментов с панорамными окнами. Есть варианты с мастер-спальней и террасой. Между корпусами разобьют ландшафтный парк с фонтантом. На первых этажах откроются бар, ресторан, химчистка и пункт бытовых услуг.

Даниловский
Тульская, 16 минут
Апартаменты
от 14 570 000 ₽ от 187 000 $ от 161 000 €
Застройщик
РКС Девелопмент
Сдача проекта
1 кв. 2026
Лоты Площадь от
Цена от
Тульская, 16 минут
Апартаменты
от 14 570 000 ₽ от 187 000 $ от 161 000 €
Площадь
от 28 м²
Район
Даниловский
Скачать презентацию
Foriver

Самый близкий к Кремлю квартал на своей пешеходной набережной. Новый удобный район в центре. Закрытый двор с аллеями и детскими площадками. Клубные гостиные в четырёх корпусах. Готовые квартиры по привлекательной цене.

Даниловский
Автозаводская, 16 минут
Квартиры
от 26 440 000 ₽ от 339 000 $ от 292 000 €
Застройщик
Sminex
Сдача проекта
Сдан
Лоты Площадь от
Цена от
Автозаводская, 16 минут
Квартиры
от 26 440 000 ₽ от 339 000 $ от 292 000 €
Площадь
от 40 м²
Район
Даниловский
Скачать презентацию
Now

Квартал бизнес-класса на берегу Москва-реки. Фасад каждого дома выполнен с индивидуальным рисунком. Выходите на утреннюю пробежку на набережную. А после помедитируйте в чиллаут зоне. От солнца защитят тени деревьев.

Даниловский
Технопарк, 6 минут
Квартиры
от 84 900 000 ₽ от 1 090 000 $ от 937 000 €
Застройщик
Tekta Group
Сдача проекта
Сдан
Лоты Площадь от
Цена от
Технопарк, 6 минут
Квартиры
от 84 900 000 ₽ от 1 090 000 $ от 937 000 €
Площадь
от 99 м²
Район
Даниловский
Скачать презентацию
Резиденции композиторов

В прошлом – старинная фабрика. Сегодня – комплекс из красного и белого клинкера с панорамным видом на Павелецкую набережную. Построен с сохранением архитектурных традиций XIX века. На территории – детский сад, фитнес-клуб с бассейном, детские площадки и рестораны.

Даниловский
Павелецкая , 6 минут
Квартиры
от 99 000 000 ₽ от 1 270 000 $ от 1 090 000 €
Застройщик
AFI Development
Сдача проекта
Сдан
Лоты Площадь от
Цена от
Павелецкая , 6 минут
Квартиры
от 99 000 000 ₽ от 1 270 000 $ от 1 090 000 €
Площадь
от 103 м²
Район
Даниловский
Скачать презентацию
Nagatino i-Land

Комплекс с необычной архитектурой – французские окна и витражное остекление. Наслаждайтесь видами на гладь воды Москвы-реки и гупарк. Подходит для семей с детьми: частные детские сады и школа – прямо у вас во дворе.

Даниловский
Технопарк, 1 минут
Квартиры
от 39 900 000 ₽ от 512 000 $ от 440 000 €
Застройщик
Группа «Эталон»
Сдача проекта
Сдан
Лоты Площадь от
Цена от
Технопарк, 1 минут
Квартиры
от 39 900 000 ₽ от 512 000 $ от 440 000 €
Площадь
от 81 м²
Район
Даниловский
На страницу комплекса
Зиларт

Комплекс на берегу Москвы-реки с собственным парком «Тюфелева Роща». Проводите тёплые вечера с семьей. Для вас – уютные беседки, велопрокат, беговые дорожки и аллеями.

Даниловский
ЗИЛ, 14 минут
Автозаводская , 3 минут
Квартиры
от 14 600 000 ₽ от 187 000 $ от 161 000 €
Застройщик
ЛСР Групп
Сдача проекта
Сдан
Лоты Площадь от
Цена от
ЗИЛ, 14 минут
Автозаводская , 3 минут
Квартиры
от 14 600 000 ₽ от 187 000 $ от 161 000 €
Площадь
от 18 м²
Район
Даниловский
Скачать презентацию