Агентство элитной недвижимости
Пресненская набережная, 6с2,
башня «Империя»,
3-й подъезд, офис 4315
Московская область,
Рублёво-Успенское шоссе, Усово, 100, ДЦ «Резиденция на Рублёвке», Блок Г
+7 (495) 255-01-61 +7 (499) 877-49-39
Сейчас работаем

Русский язык, верно?

Шагал
Даниловский
Технопарк, 8 минут

Шагал

квартиры от
площадь от
23 м² По запросу
Шагал
Даниловский
Технопарк, 8 минут
класс
бизнес
квартиры от
площадь от
23 м² По запросу
этажность
3-28 этажей
квартир всего / в продаже
586 / 635
срок сдачи
территория
109 га
до Кремля
10 км
kremlin-star
Подземная парковка на 336 мест
до Садового кольца
15 мин
Отделка
Квартиры продаются без отделки
sofa
options
приватная территория
options
детские площадки
options
кладовые
options
детский сад
options
маркет
options
салон красоты
options
кафе
options
школа
options
бассейн
options
фитнес-клуб

Планировки в комплексе «Шагал»

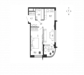
Студия
от 23 м² 7 вариантов
1 спальня
от 24 м² 90 вариантов
2 спальни
от 37 м² 111 вариантов
3 спальни
от 71 м² 43 варианта
4+ спален
от 115 м² 12 вариантов

Квартиры от собственников
Посмотрите лучшие предложения от собственников в ЖК «Шагал»
Коммерческие помещения
Хотите купить коммерческое помещение в ЖК «Шагал»? Оставьте заявку и наш эксперт свяжется с вами

О комплексе «Шагал»

Фотографии архитектуры Шагал
Архитектура
Фотографии инфраструктуры Шагал
Инфраструктура
Фотографии Лобби Шагал
Лобби
Фотографии приватной территории Шагал
Приватная территория

Скачайте презентацию комплекса «Шагал»

Расположение, архитектура и инфраструктура комплекса «Шагал» в нашей pdf-презентации.

complex_catalog

Жилой комплекс «Шагал» на карте

Даниловский
Технопарк, 8 минут
Набережная Марка Шагала

Места поблизости ЖК «Шагал»

Ландшафтный парк «Остров Мечты»
Южный речной вокзал
«Остров мечты»
Музей-заповедник «Коломенское»
ТЦ «Ривьера»
Павелецкая площадь
«Нескучный сад»
Парк «Кузьминки»
Сад МГУ
Спортивный комплекс «Лужники»

Застройщик комплекса «Шагал»

Группа «Эталон» — один из крупнейших строительных холдингов России с 30-летней историей. Совокупный объём жилой недвижимости, введённой в эксплуатацию компанией — 754 000 м². Земельный банк организации — 120 гектаров.

Клубный дом на Сретенке
от 165 000 000 ₽
«Счастье на Пресне»
4 кв. 2020
Цена по запросу
Резиденция на Всеволожском
4 кв. 2019
Цена по запросу
Серебряный фонтан
от 189 000 000 ₽
Счастье на Таганке
4 кв. 2016
Цена по запросу
Крылья
от 47 100 000 ₽

Поможем получить ипотеку на самых выгодных условиях

Подайте заявку на ипотеку и получите решение сразу из нескольких банков-партнёров.

Одобрить ипотеку
bookshelf
photo
Блинова Анастасия
Ипотечный брокер
lamp

Ход строительства

 Шагал
На объектах третьей очереди четвертого этапа выполняются фасадные работы с монтажом утеплителя и установкой направляющих под навесные фасадные системы с выверкой плоскостей и крепежных узлов. Март’26
 Шагал
1 очередь 4 этап. Продолжается устройство чистовой отделки внутри квартир и мест общего пользования. Июль’25
 Шагал
1 очередь. 4 этап. Продолжаются работы по монтажу декоративных частей внешней стороны окон. Апрель’25

Частые вопросы о ЖК «Шагал»

Что такое ЖК «Шагал» (Shagal) в Москве?

ЖК «Шагал» — это современный жилой комплекс в Даниловском районе Москвы от застройщика «Эталон». Более точное расположение можно посмотреть по карте.

Какова стоимость квартир в жилом комплексе «Шагал» (Shagal)?

Цена за м² начинается от 544 000 ₽, студию можно приобрести от 15 600 000 ₽, квартиру с 3 спальнями — от 32 000 000 ₽, а с 5 спальнями — от 60 500 000 ₽.

Какое расположение у ЖК «Шагал»?

Комплекс находится в Даниловском районе, на набережной Марка Шагала, ближайшая станция МЦК — «ЗИЛ», а метро — «Технопарк».

Что пишут о жилом квартале «Шагал» (Shagal)?

Отзывы о ЖК «Шагал» вы можете найти на различных форумах и сайтах, где обсуждаются новостройки в Москве. Многие отмечают качественное строительство и удобное расположение.

Когда планируется сдача ЖК «Шагал»?

Сдача жилого квартала запланирована в несколько этапов. Более точную информацию о ходе строительства, планах и сроках можно узнать на официальном сайте застройщика.

Есть ли парковка?

Да, автовладельцы могут воспользоваться подземной парковкой.

Как получить документы для покупки квартиры в жилом комплексе «Шагал» (Shagal)?

Для получения документов на покупку квартиры в ЖК «Шагал» обратитесь в офис продаж застройщика или позвоните по телефону, чтобы задать уточняющие вопросы. На официальном сайте вы можете ознакомиться с подробным описанием жилого комплекса, схемой корпусов, скачать презентацию, генплан и посмотреть динамику цен.

Есть ли ипотека, рассрочка, скидки?

Все новости, скидки на покупку недвижимости и дополнительные услуги публикуются на официальном сайте группы «Эталон».

Похожие комплексы

High Life

Жизнь для деловых семейных людей. Проводите рабочую встречу в коворкинге, пока ваши дети учатся в частной школе. А после выходите вместе гулять в живописный сад с холмами и склонами.

Даниловский
Павелецкая, 10 минут
Квартиры
от 31 460 000 ₽ от 443 000 $ от 384 000 €
Застройщик
Pioneer
Сдача проекта
Сдан
Лоты Площадь от
Цена от
Павелецкая, 10 минут
Квартиры
от 31 460 000 ₽ от 443 000 $ от 384 000 €
Площадь
от 23 м²
Город
Москва
Район
Даниловский
На страницу комплекса
Forst

Комплекс бизнес-класса на первой линии Симоновской набережной. Путь до Кремля займёт 20 минут. В проекте 5 корпусов и 808 квартир, включая видовые пентхаусы. Комплекс вдохновлён европейским севером: лобби в стиле эко-скандинавии, а парк напоминает норвежский лес.

Даниловский
Тульская, 15 минут
Квартиры
Цена по запросу
Застройщик
Forma
Сдача проекта
Сдан
Лоты Площадь от
Цена от
Тульская, 15 минут
Квартиры
Цена по запросу
Площадь
от 104 м²
Город
Москва
Район
Даниловский
На страницу комплекса
Logos

Баланс активной жизни и спокойного отдыха. Выбирайте не просто дом, а целое пространство: парящая библиотека, коворкинг, гостиная с камином, кинозал, открытая кухня и не только.

Даниловский
Тульская, 6 минут
Апартаменты
от 48 000 000 ₽ от 677 000 $ от 586 000 €
Застройщик
Sense
Сдача проекта
Сдан
Лоты Площадь от
Цена от
Тульская, 6 минут
Апартаменты
от 48 000 000 ₽ от 677 000 $ от 586 000 €
Площадь
от 72 м²
Город
Москва
Район
Даниловский
На страницу комплекса
OPUS

Клубный дом делюкс-класса в виде волны на первой линии Дербеневской набережной. До Кремля – 20 минут на машине. В комплексе 188 видовых квартир с террасами и балконами на 3 стороны света. На территории разобьют ландшафтный парк, а лобби наполнят этническими арт-объектами.

Даниловский
Павелецкая, 15 минут
Квартиры
от 64 950 000 ₽ от 915 000 $ от 792 000 €
Застройщик
Pioneer
Сдача проекта
2 кв. 2026
Лоты Площадь от
Цена от
Павелецкая, 15 минут
Квартиры
от 64 950 000 ₽ от 915 000 $ от 792 000 €
Площадь
от 55 м²
Город
Москва
Район
Даниловский
На страницу комплекса
Insider

Апарт-комплекс бизнес-класса на первой линии Симоновской набережной. В проекте 909 апартаментов с панорамными окнами. Есть варианты с мастер-спальней и террасой. Между корпусами разобьют ландшафтный парк с фонтантом. На первых этажах откроются бар, ресторан, химчистка и пункт бытовых услуг.

Даниловский
Тульская, 16 минут
Апартаменты
от 16 800 000 ₽ от 237 000 $ от 205 000 €
Застройщик
РКС Девелопмент
Сдача проекта
2 кв. 2026
Лоты Площадь от
Цена от
Тульская, 16 минут
Апартаменты
от 16 800 000 ₽ от 237 000 $ от 205 000 €
Площадь
от 29 м²
Город
Москва
Район
Даниловский
На страницу комплекса
Foriver

Самый близкий к Кремлю жилой квартал на своей пешеходной набережной Москвы-реки в Даниловском районе.

Даниловский
Автозаводская, 16 минут
Квартиры
от 33 690 000 ₽ от 475 000 $ от 411 000 €
Застройщик
Sminex
Сдача проекта
Сдан
Лоты Площадь от
Цена от
Автозаводская, 16 минут
Квартиры
от 33 690 000 ₽ от 475 000 $ от 411 000 €
Площадь
от 41 м²
Город
Москва
Район
Даниловский
На страницу комплекса
Now

Квартал бизнес-класса на берегу Москва-реки. Фасад каждого дома выполнен с индивидуальным рисунком. Выходите на утреннюю пробежку на набережную. А после помедитируйте в чиллаут зоне. От солнца защитят тени деревьев.

Даниловский
Технопарк, 6 минут
Квартиры
от 74 900 000 ₽ от 1 060 000 $ от 914 000 €
Застройщик
Tekta Group
Сдача проекта
Сдан
Лоты Площадь от
Цена от
Технопарк, 6 минут
Квартиры
от 74 900 000 ₽ от 1 060 000 $ от 914 000 €
Площадь
от 99 м²
Город
Москва
Район
Даниловский
На страницу комплекса
Резиденции композиторов

В прошлом – старинная фабрика. Сегодня – комплекс из красного и белого клинкера с панорамным видом на Павелецкую набережную. Построен с сохранением архитектурных традиций XIX века. На территории – детский сад, фитнес-клуб с бассейном, детские площадки и рестораны.

Даниловский
Павелецкая , 6 минут
Квартиры
от 84 000 000 ₽ от 1 180 000 $ от 1 020 000 €
Застройщик
AFI Development
Сдача проекта
Сдан
Лоты Площадь от
Цена от
Павелецкая , 6 минут
Квартиры
от 84 000 000 ₽ от 1 180 000 $ от 1 020 000 €
Площадь
от 103 м²
Город
Москва
Район
Даниловский
Скачать презентацию
Нагатино Ай-Лэнд

Комплекс с необычной архитектурой – французские окна и витражное остекление. Наслаждайтесь видами на гладь воды Москвы-реки и гупарк. Подходит для семей с детьми: частные детские сады и школа – прямо у вас во дворе.

Даниловский
Технопарк, 1 минут
Квартиры
от 19 930 000 ₽ от 281 000 $ от 243 000 €
Застройщик
Группа «Эталон»
Сдача проекта
Сдан
Лоты Площадь от
Цена от
Технопарк, 1 минут
Квартиры
от 19 930 000 ₽ от 281 000 $ от 243 000 €
Площадь
от 28 м²
Город
Москва
Район
Даниловский
На страницу комплекса
Зиларт

Комплекс на берегу Москвы-реки с собственным парком «Тюфелева Роща». Проводите тёплые вечера с семьей. Для вас – уютные беседки, велопрокат, беговые дорожки и аллеями.

Даниловский
ЗИЛ, 5 минут
Автозаводская , 3 минут
Квартиры
от 18 960 000 ₽ от 267 000 $ от 231 000 €
Застройщик
«Группа ЛСР»
Сдача проекта
Сдан
Лоты Площадь от
Цена от
ЗИЛ, 5 минут
Автозаводская , 3 минут
Квартиры
от 18 960 000 ₽ от 267 000 $ от 231 000 €
Площадь
от 18 м²
Город
Москва
Район
Даниловский
На страницу комплекса