Агентство элитной недвижимости
Пресненская набережная, 6с2,
башня «Империя»,
3-й подъезд, офис 4315
Московская область,
Рублёво-Успенское шоссе, Усово, 100, ДЦ «Резиденция на Рублёвке», Блок Г
+7 (495) 255-01-61 +7 (499) 877-49-39
Сейчас работаем

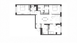
Квартиры c 3 спальнями, 87 м² в ЖК АЛИА, 6 этаж

АЛИА
Квартира с 3-мя спальнями, 87 м²
Спартак, 7 минут
Спартак, 9 минут
59 800 000 ₽ 744 469 $ 646 212 €
687 356 ₽ / м² 8 557 $ / м² 7 428 € / м²
3 спальни
6 этаж из 13
с отделкой
от собственника
87 м²
Просторная квартира с 3-мя спальнями в квартале бизнес-класса Alia на берегу Москвы-реки. Квартира с предчистовой отделкой whitebox общей площадью 87 м² расположена на 6-м этаже в корпусе 9. Выполнены работы по комплексной шумоизоляции, разводке электрики.

Возможно спланировать гостиную-столовую, изолированную кухню, мастер-спальню со своей душевой и гардеробной, 2 спальни, санузел, лоджию и холл. Высота потолков 3,1 метра. Широкоформатные окна ориентированы на две стороны, открываются виды на город и благоустроенную территорию комплекса.
Читать полностью

О комплексе «АЛИА»

Фотографии комплекса АЛИА
Комплекс
Фотографии архитектуры АЛИА
Архитектура
Фотографии инфраструктуры АЛИА
Концепция
Фотографии приватной территории АЛИА
Приватная территория
Фотографии Лобби АЛИА
Лобби
Фотографии интерьеров АЛИА
Интерьеры
Фотографии паркинга АЛИА
Паркинг
Фотографии  АЛИА
Окружение
Фотографии  АЛИА
Транспортная доступность

Места поблизости

Парк «Покровское-Стрешнево»
Северный речной вокзал
ТРЦ «Авиапарк»
Парк «Ходынское Поле»
«ВТБ Арена»
«Петровский парк»
ДЦ «Москва-Сити»
«Серебряный бор»
Живописный мост
Парк «Крылатские Холмы»

Застройщик комплекса «АЛИА»

Компания Asterus с 2018 года работает на рынке муниципального строительства в Москве, Московской области и Новой Москве. Главное направление работы — возведение и реализация жилых комплексов и объектов социального значения.

Поможем получить ипотеку на самых выгодных условиях

Подайте заявку на ипотеку и получите решение сразу из нескольких банков-партнёров.

Одобрить ипотеку
bookshelf
photo
Блинова Анастасия
Ипотечный брокер
lamp

Ход строительства

дом сдан
 АЛИА
В жилом комплексе «Алия» в рамках 3 очереди строительства объект находится на завершающей стадии, выполняются пусконаладочные работы внутренних инженерных систем с подготовкой зданий к вводу в эксплуатацию. Февраль’26
 АЛИА
В жилом квартале Alia в урбан-блоке Парк-2 продолжается строительство дома 3 с выходом на завершающий этап работ. Январь’26
 АЛИА
Общий обзорный вид на строительную площадку 3 очереди строительства проекта Alia. Декабрь’25

Частые вопросы

Что такое жилой район «АЛИА» (ALIA)?

«АЛИА» – современный проект жилого района из 11 корпусов высотой до 40 этажей на берегу Москвы-реки в Покровском-Стрешневе от застройщика «СК Резиденс».

Где расположен жилой район «АЛИА»?

ЖК «АЛИЯ» расположен на северо-западе столицы по адресу: Москва, улица Лётная, 95Б. В шаговой доступности – станция метро «Тушинская».

Какие планировки доступны в ЖК «АЛИА»?

В жилом районе «АЛИЯ» доступны различные планировки, включая студии, квартиры с 1-4 спальнями и просторные таунхаусы. Доступны квартиры без отделки или в формате white box с готовой разводкой и выравниванием стен и пола.

Сколько стоят квартиры в ЖК «АЛИА»?

Стоимость квадратного метра в ЖК «АЛИА» стартует от 358 000 рублей. Цены на студии начинаются от 13 000 000 рублей, а на квартиры с 3 спальнями – от 35 380 000 рублей.

Как купить квартиру в ЖК «АЛИА» (ALIA)?

Если вы хотите купить квартиру в «АЛИА», закажите обратный звонок на сайте. Персональный менеджер расскажет о доступных вариантах или подберёт похожие новостройки.

Доступна ли ипотека на квартиры в ЖК «АЛИЯ»?

Да, застройщик сотрудничает с ведущими банками, которые предлагают выгодные условия для покупателей.

Похожие комплексы

Primavera

Клубный город премиум-класса на полуострове Покровское-Стрешнево. В проекте 4 квартала около благоустроенной набережной. В первой очереди подготовят 264 квартиры. Между корпусами создадут приватные дворы с ландшафтным дизайном и детскими площадками.

Покровское-Стрешнево
Спартак, 10 минут
Квартиры и Пентхаусы
от 27 000 000 ₽ от 339 000 $ от 293 000 €
Застройщик
ООО «СЗ «Стадион «Спартак»
Сдача проекта
Сдан
Лоты Площадь от
Цена от
Спартак, 10 минут
Квартиры и Пентхаусы
от 27 000 000 ₽ от 339 000 $ от 293 000 €
Площадь
от 40 м²
Район
Покровское-Стрешнево
На страницу комплекса
Sky Garden

Семь высотных башен-доминант бизнес-класса с квартирами на берегу реки Сходня. Дизайн лобби выполнен по идее авторов мастерской Ginzburg Architects. Пока ваши дети заняты на скалодроме, проведите встречу в уютной зоне коворкинга.

Покровское-Стрешнево
Тушинская, 20 минут
Сходненская , 10 минут
Квартиры
от 18 490 000 ₽ от 232 000 $ от 201 000 €
Застройщик
ФСК
Сдача проекта
Сдан
Лоты Площадь от
Цена от
Тушинская, 20 минут
Сходненская , 10 минут
Квартиры
от 18 490 000 ₽ от 232 000 $ от 201 000 €
Площадь
от 27 м²
Район
Покровское-Стрешнево
На страницу комплекса
Покровский берег

Жилой комплекс премиум-класса на берегу Химкинского водохранилища в районе Покровское-Стрешнево. В комплексе можно выбрать квартиру с высокими потолками, пентхаус с террасой на верхнем этаже или просторный трехэтажный таунхаус площадью до 945 м².

Покровское-Стрешнево
Стрешнево , 7 минут
Квартиры и Таунхаусы
от 149 500 000 ₽ от 1 880 000 $ от 1 620 000 €
Застройщик
Конти
Сдача проекта
Сдан
Лоты Площадь от
Цена от
Стрешнево , 7 минут
Квартиры и Таунхаусы
от 149 500 000 ₽ от 1 880 000 $ от 1 620 000 €
Площадь
от 182 м²
Район
Покровское-Стрешнево
Скачать презентацию
Level Стрешнево

Жилой комплекс из 4-х корпусов в районе Покровское-Стрешнево на первой линии двух рек, Москвы и Сходни. Из окон апартаментов открываются панорамные виды на воду и зелень парков. Ландшафтный дизайн внутреннего двора-сада выполнен в эко стиле.

Покровское-Стрешнево
Тушинская , 6 минут
Апартаменты
от 90 000 000 ₽ от 1 130 000 $ от 976 000 €
Застройщик
Level Group
Сдача проекта
Сдан
Лоты Площадь от
Цена от
Тушинская , 6 минут
Апартаменты
от 90 000 000 ₽ от 1 130 000 $ от 976 000 €
Площадь
от 250 м²
Район
Покровское-Стрешнево
Скачать презентацию
Движение Тушино

Комплекс сосоит из трех монолитных корпусов от 13 до 22 этажей с квартирами и отельными номерами. Проект разместился в районе Покровское-Стрешнево на территории бывшего Тушинского аэрополя, в 3-х минутах ходьбы от станции метро Тушино.

Покровское-Стрешнево
Тушинская, 3 минут
 
Цена по запросу
Застройщик
ФСК
Сдача проекта
Сдан
Тушинская, 3 минут
 
Цена по запросу
Район
Покровское-Стрешнево