Агентство элитной недвижимости
Пресненская набережная, 6с2,
башня «Империя»,
3-й подъезд, офис 4315
Московская область,
Рублёво-Успенское шоссе, Усово, 100, ДЦ «Резиденция на Рублёвке», Блок Г
+7 (495) 255-01-61 +7 (499) 877-49-39
Сейчас работаем

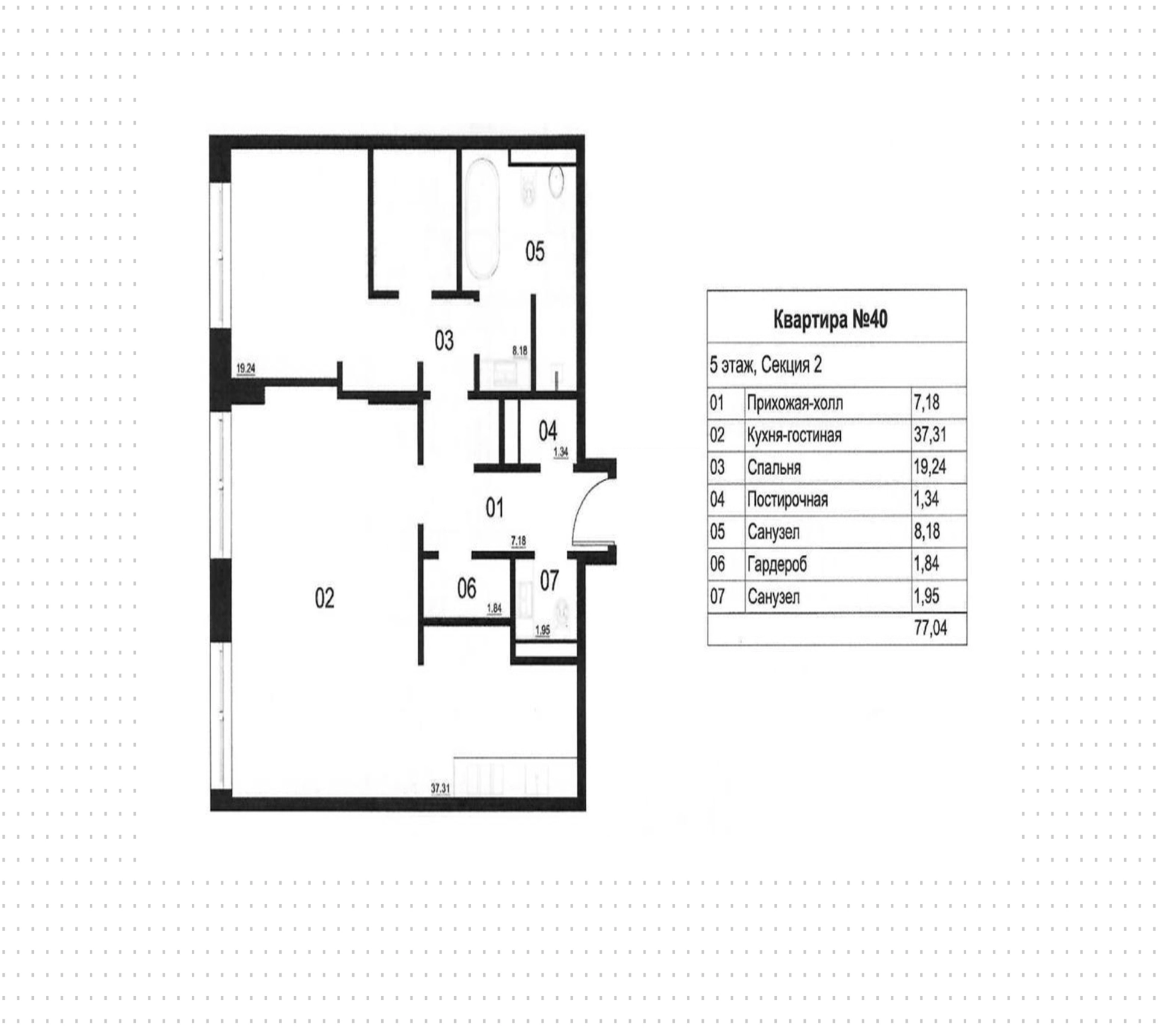
Квартиры c 1 спальней, 77 м² в ЖК TURGENEV, 5 этаж

TURGENEV
Квартира с 1-й спальней, 77 м²
Сухаревская, 6 минут
200 000 000 ₽ 2 520 000 $ 2 150 000 €
2 600 000 ₽ / м² 33 000 $ / м² 28 000 € / м²
1 спальня
5 этаж из 8
с отделкой
4 квартал 2023
от собственника
77 м²
Уютная квартира с 1-й спальней площадью 77 м² в клубном доме делюкс-класса «Тургенев». Выполнена дизайнерская отделка от голландского бюро Wolterinck, на полу выложена инженерная доска AustriaWood, кухня с островом и бытовой техникой Gaggenau, санузлы отделаны мрамором, сантехника Miele. Планировка: кухня-гостиная, спальня с гардеробной и ванной комнатой, гостевой санузел, гардеробная, постирочная, холл. Окна спальни и гостиной выходят на улицу.
Читать полностью

О клубном доме turgenev

Фотографии комплекса Клубный дом TURGENEV
Комплекс
Фотографии архитектуры Клубный дом TURGENEV
Архитектура
Фотографии приватной территории Клубный дом TURGENEV
Приватная территория
Фотографии инфраструктуры Клубный дом TURGENEV
Инфраструктура
Фотографии  Клубный дом TURGENEV
Остекление
Фотографии Лобби Клубный дом TURGENEV
Лобби
Фотографии интерьеров Клубный дом TURGENEV
Интерьеры
Фотографии  Клубный дом TURGENEV
Пентхаусы с террасами
Фотографии паркинга Клубный дом TURGENEV
Паркинг
Фотографии  Клубный дом TURGENEV
Виды
Фотографии  Клубный дом TURGENEV
Окружение
Фотографии  Клубный дом TURGENEV
Транспортная доступность
Места поблизости
15 минут
7 минут
Чистопрудный бульвар
012 минут
5 минут
«Центральный рынок»
23 минуты
8 минут
Большой Театр
17 минут
8 минут
ЦДМ
30 минут
10 минут
Кремль
15 минут
3 минуты
«Аптекарский огород»
25 минут
5 минут
Екатерининский парк
32 минуты
10 минут
Парк «Зарядье»
42 минуты
10 минут
Патриаршие пруды
20 минут
6 минут
Площадь трёх вокзалов

Поможем получить ипотеку на самых выгодных условиях

Подайте заявку на ипотеку и получите решение сразу из нескольких банков-партнёров.
Одобрить ипотеку
bookshelf
photo
Блинова Анастасия
Ипотечный брокер
lamp

Ход строительства

дом сдан
 Клубный дом TURGENEV
В квартирах продолжаются работы по монтажу и регулировке межкомнатных дверей, монтажу элементов освещения, работы по шлифованию и ошкуриванию потолков и стен для подготовки к чистовой отделке. Декабрь’23
 Клубный дом TURGENEV
Завершен монтаж декоративных решеток фонтана, расположенного на территории внутреннего двора. Ноябрь’23
 Клубный дом TURGENEV
Продолжаются работы по благоустройству территории внутреннего двора. Октябрь’23

Частые вопросы

Где находится клубный дом?

TURGENEV расположен в тихом месте на Костянском переулке, между Садовым кольцом и другими ключевыми точками города.

Сколько стоят квартиры в клубном доме TURGENEV?

Цены за м² начинаются от 1 643 000 ₽, купить квартиру в ЖК с одной спальней можно от 118 342 000 ₽, с двумя — от 190 608 000 ₽, с тремя — от 422 198 000 ₽. Узнайте подробнее о ценах на сайте.  

Где посмотреть фотографии новостройки?

Все фото ЖК представлены на официальном сайте застройщика. 

На какой стадии находится ход строительства клубного дома?

Дом уже сдан в эксплуатацию, о том, как протекал ход строительства, можно узнать на сайте.

Где расположены ближайшие торговые центры?

В 15 минутах ходьбы находится крупный ТЦ «Неглинная». 

Как реализуются продажи квартир в комплексе?

Вы подбираете квартиру на официальном сайте девелопера в соответствии с вашими предпочтениями и оптимальными параметрами для комфортного проживания. Узнать подробнее о возможностях приобретения — рассрочка, ипотека — можно также на сайте или по телефону у компании-застройщика.

Похожие комплексы

RED7

Не просто дом, а целая достопримечательность столицы на Садовом. Премиальный фитнес-клуб и SPA от Encore Fitness, свежие продукты в гастрономе, персональные столы в ресторане и консьерж служба топ-уровня.

Красносельский
Красные ворота, 8 минут
Апартаменты
от 47 610 000 ₽ от 600 000 $ от 512 000 €
Застройщик
ГК Основа
Сдача проекта
Сдан
Лоты Площадь от
Цена от
Красные ворота, 8 минут
Апартаменты
от 47 610 000 ₽ от 600 000 $ от 512 000 €
Площадь
от 52 м²
Район
Красносельский
На страницу комплекса
Дом Фалеевых

Красносельский
Лубянка, 4 минут
 
Цена по запросу
Застройщик
Застройщик неизвестен
Лубянка, 4 минут
 
Цена по запросу
Район
Красносельский
Дом со львом

Красносельский
Тургеневская, 3 минут
 
Цена по запросу
Застройщик
Застройщик неизвестен
Тургеневская, 3 минут
 
Цена по запросу
Район
Красносельский
Сретенка, 26

Красносельский
Сухаревская, 3 минут
 
Цена по запросу
Застройщик
Застройщик неизвестен
Сухаревская, 3 минут
 
Цена по запросу
Район
Красносельский
Уланский, 13

Премиальный клубный дом расположен в тихом переулке Красносельского района. Стиль фасада здания отсылает к теремным боярским усадьбам купеческой Москвы XVII века. Именно здесь Александр Сергеевич Пушкин гостил у своих родственников в XIX веке.

Красносельский
Сретенский бульвар, 5 минут
Апартаменты
от 86 000 000 ₽ от 1 080 000 $ от 925 000 €
Застройщик
Застройщик неизвестен
Сдача проекта
Сдан
Лоты Площадь от
Цена от
Сретенский бульвар, 5 минут
Апартаменты
от 86 000 000 ₽ от 1 080 000 $ от 925 000 €
Площадь
от 82 м²
Район
Красносельский
Скачать презентацию
Dialog

Жилой комплекс в Красносельском районе, состоит из двух корпусов высотой 22 этажа. Фасады оформлены темным и светлым камнем, металлическими панелями, а в сумерках включается архитектурная подсветка. Благодаря высоким окнам квартиры наполняются светом.

Красносельский
Комсомольская, 7 минут
Квартиры
от 54 900 000 ₽ от 692 000 $ от 591 000 €
Застройщик
АО «Центр-Инвест»
Сдача проекта
Сдан
Лоты Площадь от
Цена от
Комсомольская, 7 минут
Квартиры
от 54 900 000 ₽ от 692 000 $ от 591 000 €
Площадь
от 66 м²
Район
Красносельский
Скачать презентацию
Клубный дом на Сретенке

Комплекс премиум-класса на 67 апартаментов внутри Садового кольца. Архитектура идеально вписывается в окружающую застройку — фасады с панорамными окнами дополнены французскими балконами. Представлены квартиры без отделки со свободной планировкой.

Красносельский
Сретенский бульвар, 8 минут
 
Цена по запросу
Застройщик
Группа «Эталон»
Сдача проекта
Сдан
Сретенский бульвар, 8 минут
 
Цена по запросу
Район
Красносельский