Агентство элитной недвижимости
Пресненская набережная, 6с2,
башня «Империя»,
3-й подъезд, офис 4315
Московская область,
Рублёво-Успенское шоссе, Усово, 100, ДЦ «Резиденция на Рублёвке», Блок Г
+7 (495) 255-01-61 +7 (499) 877-49-39
Сейчас работаем
Клубный дом TURGENEV
Красносельский
Сухаревская, 6 минут

Клубный дом TURGENEV

квартиры от
площадь от
51 м²
Клубный дом TURGENEV
Красносельский
Сухаревская, 6 минут
класс
делюкс
квартиры от
площадь от
51 м²
этажность
6-8
квартир всего / в продаже
118 / 38
срок сдачи
сдан
Высота потолков
2,85 м
до Кремля
3 км
kremlin-star
Подземная парковка
168мест
до Садового кольца
2 мин
Отделка
Квартиры с готовой отделкой в бежевых и серых оттенках от голландского бюро Wolterinck
sofa

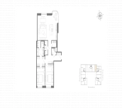
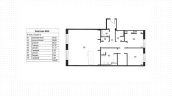
Планировки в клубном доме TURGENEV

1 спальня
от 51 м² 6 вариантов планировок
2 спальни
от 78 м² 14 вариантов планировок
3 спальни
от 179 м² 3 варианта планировок
4+ спален
от 288 м² 3 варианта планировок
В комплексе TURGENEV можно выбрать планировку квартиры с 1-й спальней из 26 вариантов

О клубном доме turgenev

Фотографии комплекса Клубный дом TURGENEV
Комплекс
Фотографии архитектуры Клубный дом TURGENEV
Архитектура
Фотографии приватной территории Клубный дом TURGENEV
Приватная территория
Фотографии инфраструктуры Клубный дом TURGENEV
Инфраструктура
Фотографии  Клубный дом TURGENEV
Остекление
Фотографии Лобби Клубный дом TURGENEV
Лобби
Фотографии интерьеров Клубный дом TURGENEV
Интерьеры
Фотографии  Клубный дом TURGENEV
Пентхаусы с террасами
Фотографии паркинга Клубный дом TURGENEV
Паркинг
Фотографии  Клубный дом TURGENEV
Виды
Фотографии  Клубный дом TURGENEV
Окружение
Фотографии  Клубный дом TURGENEV
Транспортная доступность
Скачайте презентацию дома TURGENEV

В презентации — расположение, архитектура, инфраструктура, информация об апартаментах и техническом оснащении клубного дома.

complex_catalog

TURGENEV на карте

Красносельский
Сухаревская, 6 минут
Костянский переулок, 13
Места поблизости
15 минут
7 минут
Чистопрудный бульвар
012 минут
5 минут
«Центральный рынок»
23 минуты
8 минут
Большой Театр
17 минут
8 минут
ЦДМ
30 минут
10 минут
Кремль
15 минут
3 минуты
«Аптекарский огород»
25 минут
5 минут
Екатерининский парк
32 минуты
10 минут
Парк «Зарядье»
42 минуты
10 минут
Патриаршие пруды
20 минут
6 минут
Площадь трёх вокзалов

Поможем получить ипотеку на самых выгодных условиях

Подайте заявку на ипотеку и получите решение сразу из нескольких банков-партнёров.
Одобрить ипотеку
bookshelf
photo
Блинова Анастасия
Ипотечный брокер
lamp

Ход строительства

дом сдан
 Клубный дом TURGENEV
В квартирах продолжаются работы по монтажу и регулировке межкомнатных дверей, монтажу элементов освещения, работы по шлифованию и ошкуриванию потолков и стен для подготовки к чистовой отделке. Декабрь’23
 Клубный дом TURGENEV
Завершен монтаж декоративных решеток фонтана, расположенного на территории внутреннего двора. Ноябрь’23
 Клубный дом TURGENEV
Продолжаются работы по благоустройству территории внутреннего двора. Октябрь’23

Частые вопросы

Где находится клубный дом?

TURGENEV расположен в тихом месте на Костянском переулке, между Садовым кольцом и другими ключевыми точками города.

Сколько стоят квартиры в клубном доме TURGENEV?

Цены за м² начинаются от 1 643 000 ₽, купить квартиру в ЖК с одной спальней можно от 118 342 000 ₽, с двумя — от 190 608 000 ₽, с тремя — от 422 198 000 ₽. Узнайте подробнее о ценах на сайте.  

Где посмотреть фотографии новостройки?

Все фото ЖК представлены на официальном сайте застройщика. 

На какой стадии находится ход строительства клубного дома?

Дом уже сдан в эксплуатацию, о том, как протекал ход строительства, можно узнать на сайте.

Где расположены ближайшие торговые центры?

В 15 минутах ходьбы находится крупный ТЦ «Неглинная». 

Как реализуются продажи квартир в комплексе?

Вы подбираете квартиру на официальном сайте девелопера в соответствии с вашими предпочтениями и оптимальными параметрами для комфортного проживания. Узнать подробнее о возможностях приобретения — рассрочка, ипотека — можно также на сайте или по телефону у компании-застройщика.

Похожие комплексы

Red7

Не просто дом, а целая достопримечательность столицы на Садовом. Премиальный фитнес-клуб и SPA от Encore Fitness, свежие продукты в гастрономе, персональные столы в ресторане и консьерж служба топ-уровня.

Красносельский
Красные ворота, 8 минут
Апартаменты
от 37 000 000 ₽ от 458 000 $ от 396 000 €
Застройщик
ГК Основа
Сдача проекта
Сдан
Лоты Площадь от
Цена от
Красные ворота, 8 минут
Апартаменты
от 37 000 000 ₽ от 458 000 $ от 396 000 €
Площадь
от 52 м²
Район
Красносельский
Скачать презентацию
Дом Фалеевых

Красносельский
Лубянка, 4 минут
 
Цена по запросу
Застройщик
Застройщик неизвестен
Лубянка, 4 минут
 
Цена по запросу
Район
Красносельский
Дом со львом

Красносельский
Тургеневская, 3 минут
 
Цена по запросу
Застройщик
Застройщик неизвестен
Тургеневская, 3 минут
 
Цена по запросу
Район
Красносельский
Сретенка, 26

Красносельский
Сухаревская, 3 минут
 
Цена по запросу
Застройщик
Застройщик неизвестен
Сухаревская, 3 минут
 
Цена по запросу
Район
Красносельский
Уланский, 13

Премиальный клубный дом расположен в тихом переулке Красносельского района. Стиль фасада здания отсылает к теремным боярским усадьбам купеческой Москвы XVII века. Именно здесь Александр Сергеевич Пушкин гостил у своих родственников в XIX веке.

Красносельский
Сретенский бульвар, 5 минут
Апартаменты
от 86 000 000 ₽ от 1 060 000 $ от 921 000 €
Застройщик
Застройщик неизвестен
Сдача проекта
Сдан
Лоты Площадь от
Цена от
Сретенский бульвар, 5 минут
Апартаменты
от 86 000 000 ₽ от 1 060 000 $ от 921 000 €
Площадь
от 82 м²
Район
Красносельский
Скачать презентацию
Dialog

Жилой комплекс в Красносельском районе, состоит из двух корпусов высотой 22 этажа. Фасады оформлены темным и светлым камнем, металлическими панелями, а в сумерках включается архитектурная подсветка. Благодаря высоким окнам квартиры наполняются светом.

Красносельский
Комсомольская, 7 минут
Квартиры
от 53 490 000 ₽ от 661 000 $ от 573 000 €
Застройщик
АО «Центр-Инвест»
Сдача проекта
Сдан
Лоты Площадь от
Цена от
Комсомольская, 7 минут
Квартиры
от 53 490 000 ₽ от 661 000 $ от 573 000 €
Площадь
от 85 м²
Район
Красносельский
Скачать презентацию
Клубный дом на Сретенке

Комплекс премиум-класса на 67 апартаментов внутри Садового кольца. Архитектура идеально вписывается в окружающую застройку — фасады с панорамными окнами дополнены французскими балконами. Представлены квартиры без отделки со свободной планировкой.

Красносельский
Сретенский бульвар, 8 минут
 
Цена по запросу
Застройщик
Группа «Эталон»
Сдача проекта
Сдан
Сретенский бульвар, 8 минут
 
Цена по запросу
Район
Красносельский