Luxury real estate agency
Presnenskaya Embankment, 6c2,
Empire Tower,
3rd entrance, office 4315
Moscow region,
Rublyovo-Uspenskoe highway, Usovo, 100, RC "Residence on Rublyovka", Block G

cottage, 1870 м² в КП Nikolino, лот №12643

Nikolino
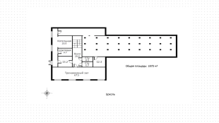
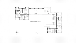
Country residence in modern style on a spacious forest plot, 1,870 m²
RUB 1,983,160,000 $26,000,000 €21,920,000
RUB 1,060,000 / m² $14,000 / m² €12,000 / m²
6 bedrooms
3 floors
proprietor
1,870 m²
The new country house of 1870 m² is located on a wooded plot of 110 hectares. The facade is designed in a modern style with neoclassical elements. The interior in light shades with a combination of wood and stone textures is decorated with high quality materials and is complemented by Scavolini kitchen furniture and appliances from Küppersbsuch. Thanks to the second light, the space of the house is filled with sunshine and coziness. On the first floor of the residence planned a spacious fireplace room, kitchen-dining room and SPA-zone with a 23-meter swimming pool, hammam, sauna, relaxation room and a room for sports and dancing. On the second floor there are 6 bedrooms, dressing rooms and a study with fireplace and access to the terrace. In the basement there is a gym with shower room and technical rooms. On the plot there is a pergola for barbecue, a garage for 3 cars and a block for staff. Also on the territory there are landscaping works, forest trees and shrubs, a pond with bio-cleaning, an artificial stream flows.
Read Full

About the cottage settlement "Nikolino"

Фотографии паркинга Nikolino
-
Фотографии  Nikolino
-
Фотографии приватной территории Nikolino
-
Фотографии  Nikolino
-
Фотографии  Nikolino
Neighborhood
Фотографии  Nikolino
About the neighborhood

Places near "Nikolino" settlement

Riviera Fitness & SPA
Janson Equestrian Club
Aec Equestrian Community
Lomonosov school
Moscow School of Economics
Lapino Fitness
Berezki swimming pool by Crocus Fitness
Lapino Clinical Hospital
Cambridge International School, Gorki Campus
Petrovo-Dalneye Estate

complexes.blocks.developer-block.title-country Nikolino

Mirum – a group of companies occupying leading positions in the segment of countryside real estate. The company's projects have a recognizable architictural style, among the fully realized projects of the company – countryside projects.

We'll help you get a mortgage on the most favorable terms

Apply for a mortgage and receive a decision from several partner banks at once.

Approve mortgage
bookshelf
photo
Anastasia Blinova
Mortgage broker
lamp

Frequently asked questions about "Nikolino" development

What is KP "Nikolino"?

"Nikolino" is a cottage complex with a rich infrastructure. On the territory of the settlement there is a fitness center, recreational facilities, two restaurants, a gas station, tennis courts, ski tracks and a natural lake with a beach.

Where is the cottage village "Nikolino" located?

The cottage village "Nikolino" is located in Odintsovsky district of Moscow region, only 21 km from MKAD on Rublyovo-Uspenskoye highway.

What zones unites the settlement "Nikolino"?

The settlement unites three parts: "Old Nikolino" with cozy streets and already built houses, "New Nikolino" with building plots and "Semenkovo Pole" with residences around the lake.

How many houses are there in the village "Nikolino" and what projects are available?

There are more than 300 houses built according to both standard and individual projects, which allows you to choose a cottage for any needs of the family.

What infrastructure is available in "Nikolino" settlement?

The infrastructure of Nikolino includes restaurants "Chestor Ferry" and "O'Shaley", spa club, fitness club and swimming pool Riviera, landscaped parks, recreation areas by the lake, playgrounds, tennis courts, ski track and language club English Lab.

What objects for active recreation are there on the territory of the CP "Nikolino"?

Residents can enjoy tennis courts, a ski trail, heated pool, walking paths and a pond recreation area.

How is the security and safety of the settlement "Nikolino" ensured?

A checkpoint and video surveillance provide entry control, and security guards monitor the safety of the area 24 hours a day.

What plots and houses are available for sale in KP "Nikolino"?

Townhouses and houses of different sizes are available for sale, including spacious residences with plots of up to several hectares: you can choose the layout and finishes to your taste. The area of available plots starts from 15 hectares.

How long does it take to get to Moscow and the nearest airports?

The village is located 21 km from MKAD, the road to Moscow along Rublyovo-Uspenskoye highway takes about 35 minutes, and to the airport "Vnukovo" - 35 minutes.

What are the social infrastructure facilities near "Nikolino" settlement?

Within a radius of 5-10 minutes by car there is a private Lomonosov school with a kindergarten, old-timbered place "Nikolina Gora" and the picturesque bank of the Moskva River.

What are the features of plots and cottages in the village "Nikolino"?

The homes have spacious bedrooms, living room, kitchens and terraces. The plots are landscaped with lawns and gardens, and the cottages are finished with premium materials.

What is the cost of objects in the settlement "Nikolino"?

Prices for townhouses start from 158,000,000 rubles, for cottages - 175,000,000 rubles. You can also buy a plot of land starting from 152 000 000 rubles. If you want to get a consultation or make an appointment for a viewing, leave your number on the site - a personal manager will tell you about available properties or find a similar property.

Similar Villages

Zhukovka 21

"Zhukovka 21" is an elite cottage village on the bank of the Moskva River, in the very center of the famous Rublyovka. There are 51 cottages on the territory, each of which is designed according to an individual project with finishing in modern or classic style. There are landscaped public gardens, a fitness club, an outdoor swimming pool with a beach, a children's club, tennis courts and a healthy food restaurant.

Rublyovo-Uspenskoe
to the Moscow Ring Road: 9 kilometers
Cottages
Price on request
Developer
Gletcher
Project delivery
Completed
Lots Area from
Price from
Rublyovo-Uspenskoe
to the Moscow Ring Road: 9 kilometers
Cottages
Price on request
Area
from 770 m²
To the complex page
Barvikha Hills

"Barvikha Hills" is a club settlement for 100 townhouses in hi-tech style designed by Dutch architect Erik van Egeraat, with panoramic glazing and laconic facades. All townhouses are connected by a network of underground roads and garages - this allowed to create a cozy pedestrian zone on the territory of the village.

Rublyovo-Uspenskoe
to the Moscow Ring Road: 7 kilometers
Townhouses
from RUB 67,000,000 from $878,000 from €741,000
Developer
Capital Group
Project delivery
Completed
Lots Area from
Price from
Rublyovo-Uspenskoe
to the Moscow Ring Road: 7 kilometers
Townhouses
from RUB 67,000,000 from $878,000 from €741,000
Area
from 355 m²
To the complex page
New Lapino

"Novoe Lapino" is an elite cottage village surrounded by the Novo-Darya forest. On the territory there are cottages, townhouses and apartments in modern style with turnkey or unfurnished finishing. Children's and sports grounds, kindergartens, spa and sports club are available for residents. There is a shopping arcade at the entrance to the village.

Rublyovo-Uspenskoe
to the Moscow Ring Road: 18 kilometers
Townhouses and Plots
from RUB 70,000,000 from $918,000 from €774,000
Developer
FLET & Co.
Project delivery
Completed
Lots Area from
Price from
Rublyovo-Uspenskoe
to the Moscow Ring Road: 18 kilometers
Townhouses and Plots
from RUB 70,000,000 from $918,000 from €774,000
Area
from 368 m²
Download the presentation
Azarovo

"Azarovo" is a countryside village with cottages, townhouses and apartment buildings in classic style. There are 40 hectares of Novo-Darya forest, parks and a recreational complex for walks and recreation. A kindergarten, two private schools, a soccer field and playgrounds are open for young residents.

Rublyovo-Uspenskoe
to the Moscow Ring Road: 23 kilometers
Apartments and Cottages
from RUB 21,150,000 from $277,000 from €234,000
Developer
FLET & Co.
Project delivery
Completed
Lots Area from
Price from
Rublyovo-Uspenskoe
to the Moscow Ring Road: 23 kilometers
Apartments and Cottages
from RUB 21,150,000 from $277,000 from €234,000
Area
from 85 m²
Download the presentation
Uspenka 21

"Uspenka 21" is an elite cottage village of club type with 30 cottages in a unified English style. Individual design solutions can be realized with the architects of the settlement. Each house has a garage. There is a children's playground for young residents.

Rublyovo-Uspenskoe
to the Moscow Ring Road: 24 kilometers
Cottages
from RUB 260,000,000 from $3,410,000 from €2,870,000
Developer
Developer unknown
Project delivery
Completed
Lots Area from
Price from
Rublyovo-Uspenskoe
to the Moscow Ring Road: 24 kilometers
Cottages
from RUB 260,000,000 from $3,410,000 from €2,870,000
Area
from 427 m²
Download the presentation
Lyon

"Lyon" is a chamber cottage village surrounded by ecologically clean forest. There are 50 cottages without finishing in neoclassical style. Owners of forested plots can additionally rent a plot with the forest. The territory of the village is fenced and guarded.

Rublyovo-Uspenskoe
to the Moscow Ring Road: 27 kilometers
 
Price on request
Developer
Gazprombank-Invest
Project delivery
Completed
Rublyovo-Uspenskoe
to the Moscow Ring Road: 27 kilometers
 
Price on request
ParkVille

ParkVille is a cottage village of 57 cottages in English classical style and its own landscape park of 40 hectares. There is a large private school, kindergarten and observatory right on the territory for residents. The Barvikha Luxury Village shopping and entertainment complex is just 15 minutes away by car.

Rublyovo-Uspenskoe
to the Moscow Ring Road: 10 kilometers
Cottages
from RUB 678,850,000 from $8,900,000 from €7,500,000
Developer
Quinturin
Project delivery
Completed
Lots Area from
Price from
Rublyovo-Uspenskoe
to the Moscow Ring Road: 10 kilometers
Cottages
from RUB 678,850,000 from $8,900,000 from €7,500,000
Area
from 1400 m²
To the complex page
Beryozki River Village

"Beryozki" is a guarded club village surrounded by a birch grove. The territory has 151 cottages according to 18 projects in modern European style with panoramic windows. The architect of the project was the famous Swiss architect Daniel Schindler.

Rublyovo-Uspenskoe
to the Moscow Ring Road: 17 kilometers
Cottages
from RUB 195,000,000 from $2,560,000 from €2,160,000
Developer
City Land Group
Project delivery
Completed
Lots Area from
Price from
Rublyovo-Uspenskoe
to the Moscow Ring Road: 17 kilometers
Cottages
from RUB 195,000,000 from $2,560,000 from €2,160,000
Area
from 585 m²
To the complex page
Razdory-2

"Razdory-2" is a cottage village on the bank of the Moskva River, surrounded by a dense pine forest. The houses are designed in the English style, made of red brick and white stone with symmetrical elements, strict lines and restrained colors in the decoration. On the territory of the village there is a gymnasium named after Primakov, a private kindergarten. Primakov Gymnasium, a private kindergarten and parks for walking and recreation.

Rublyovo-Uspenskoe
to the Moscow Ring Road: 4 kilometers
Cottages
from RUB 575,000,000 from $7,540,000 from €6,360,000
Developer
Millhouse Capitals
Project delivery
Completed
Lots Area from
Price from
Rublyovo-Uspenskoe
to the Moscow Ring Road: 4 kilometers
Cottages
from RUB 575,000,000 from $7,540,000 from €6,360,000
Area
from 560 m²
Download the presentation
Landscape

On the wooded territory of the Landscape club village there are country residences and houses made according to unique design projects in classical and European style. At the entrance to the village there is a cafe, a beauty salon, a French bakery and a car wash.

Rublyovo-Uspenskoe
to the Moscow Ring Road: 9 kilometers
Cottages
from RUB 395,000,000 from $5,180,000 from €4,370,000
Developer
Developer unknown
Project delivery
Completed
Lots Area from
Price from
Rublyovo-Uspenskoe
to the Moscow Ring Road: 9 kilometers
Cottages
from RUB 395,000,000 from $5,180,000 from €4,370,000
Area
from 325 m²
Download the presentation