Стрит-ритейл, 119 м², Рождественка, 6/9/20с1, Лот №59
Level Нижегородская
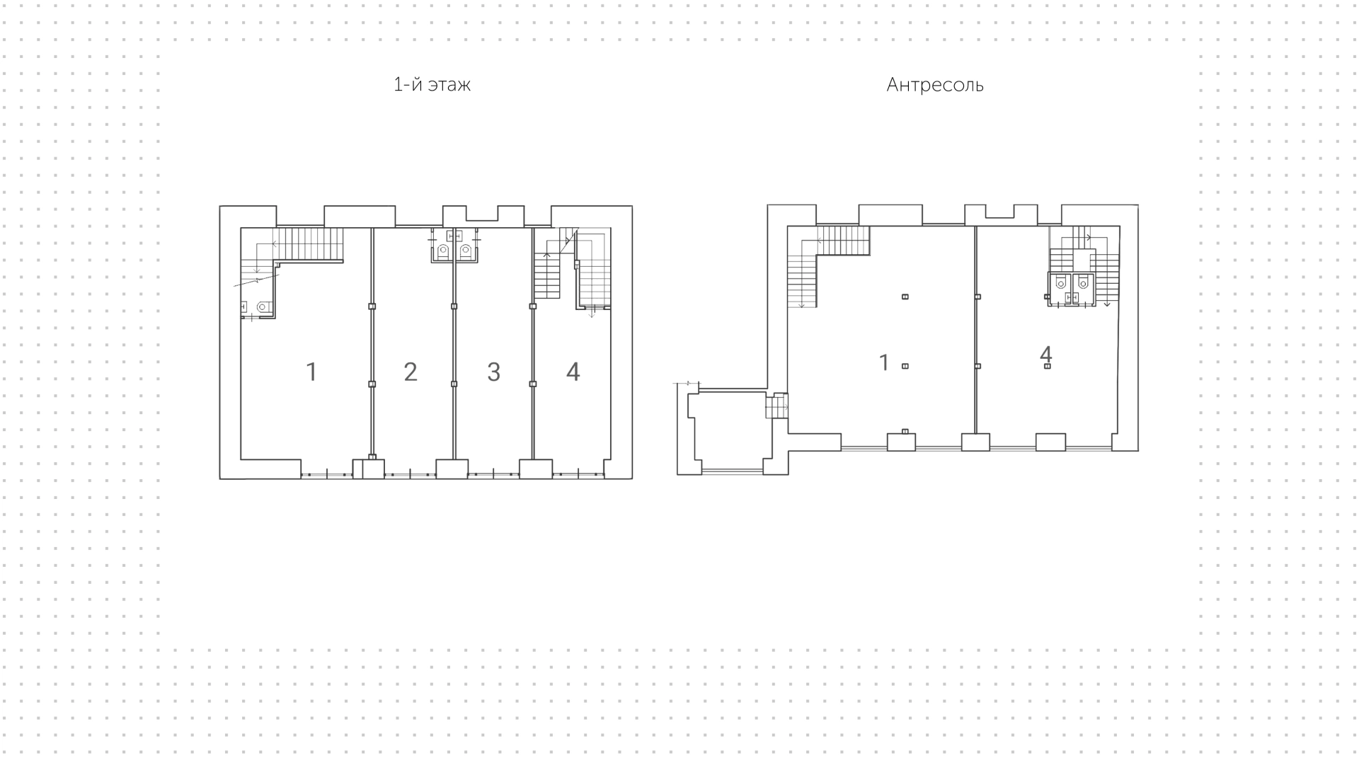
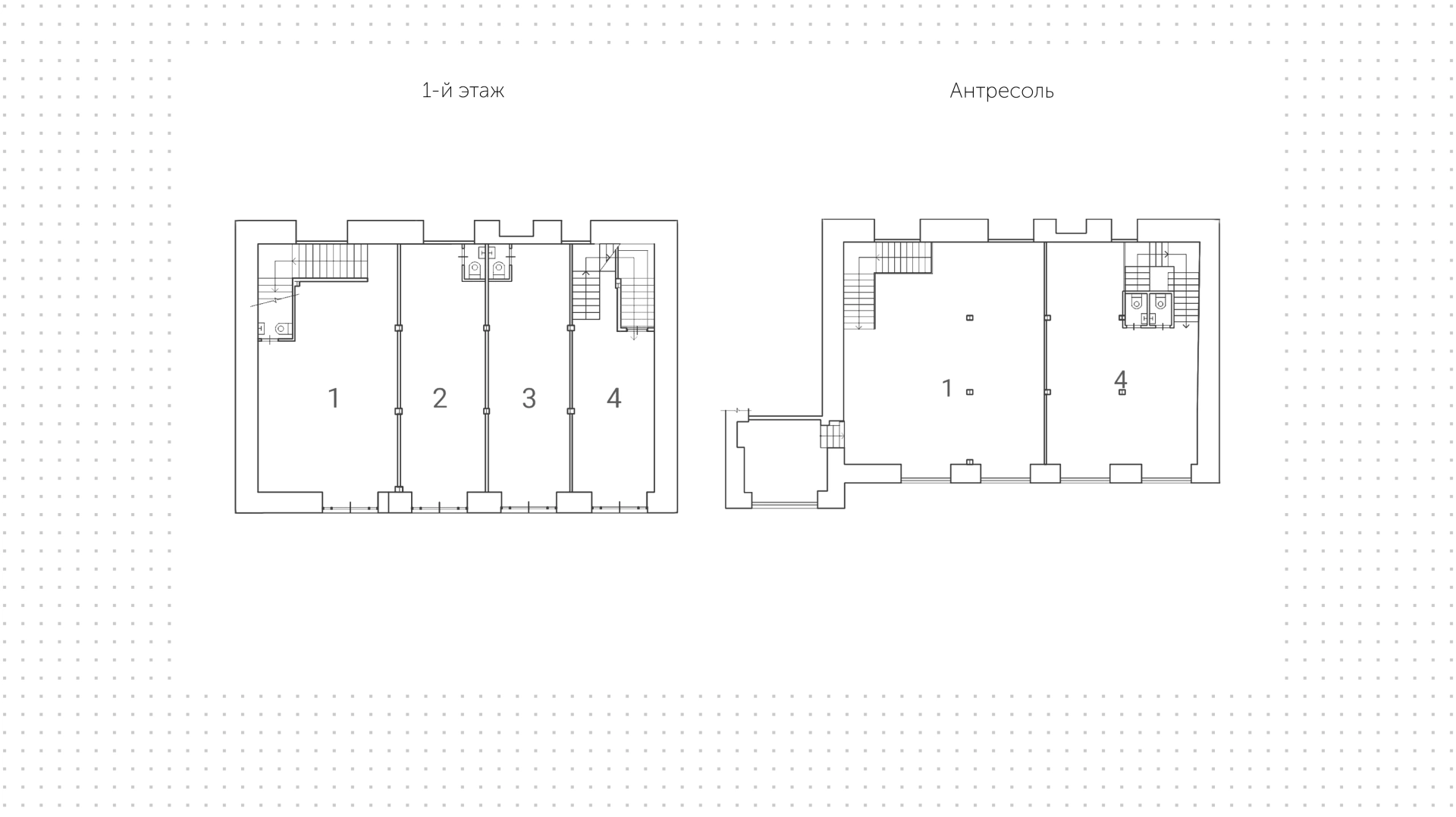
На Рождественке, 6/9/20, блок 4, 119 м²
Мещанский р-н
Кузнецкий Мост, 1 минута
138 000 000 ₽
1 770 000 $
1 520 000 €
1 160 000 ₽ / м²
15 000 $ / м²
13 000 € / м²
с отделкой
новостройка
119 м²
Коммерческое помещение в Мещанском районе. Большой поток пешеходного трафика, окружение — кофейня One Price Coffee, бар KuzMost Pub, магазин азиатский продуктов «Ниппон», кафе «Милти». За 1 минуту пешком можно дойти до станции метро «Кузнецкий Мост».
Помещение с открытой планировкой площадью 108 м² расположено на 1 этаже и антресоли нежилого здания. Высота потолков на 1 этаже 3,3 метра, на антресоли — 3 метра. Площадь первого этажа 35 м², антресоли — 73 м². Объект оборудован санузлом, приборами учета электричества и вытяжкой на уровень кровли здания. Подведены все городские инженерные коммуникации. Отдельный вход с улицы, предусмотрена возможность размещения рекламы на фасаде здания.
Читать полностью
Block "О комплексе" for Complex "Level Нижегородская" (ID=433) not found!
Block "Места поблизости" for Complex "Level Нижегородская" (ID=433) not found!
Block "Застройщик" for Complex "Level Нижегородская" (ID=433) not found!
Block "Ипотека" for Complex "Level Нижегородская" (ID=433) not found!
Block "Форма ипотеки" for Complex "Level Нижегородская" (ID=433) not found!
Block "Ход строительства" for Complex "Level Нижегородская" (ID=433) not found!
Block "Документы" for Complex "Level Нижегородская" (ID=433) not found!
Block "Вопрос\ответ" for Complex "Level Нижегородская" (ID=433) not found!
Block "Похожие комплексы" for Complex "Level Нижегородская" (ID=433) not found!