Стрит-ритейл, 508 м², Смоленская, 3, Лот №5149
Level Нижегородская
Трёхуровневое коммерческое помещение в 5 минутах от метро Смоленская, 508 м²
Хамовники р-н
Смоленская, 5 минут
474 940 000 ₽
6 090 000 $
5 240 000 €
935 000 ₽ / м²
12 000 $ / м²
10 000 € / м²
с отделкой
новостройка
508 м²
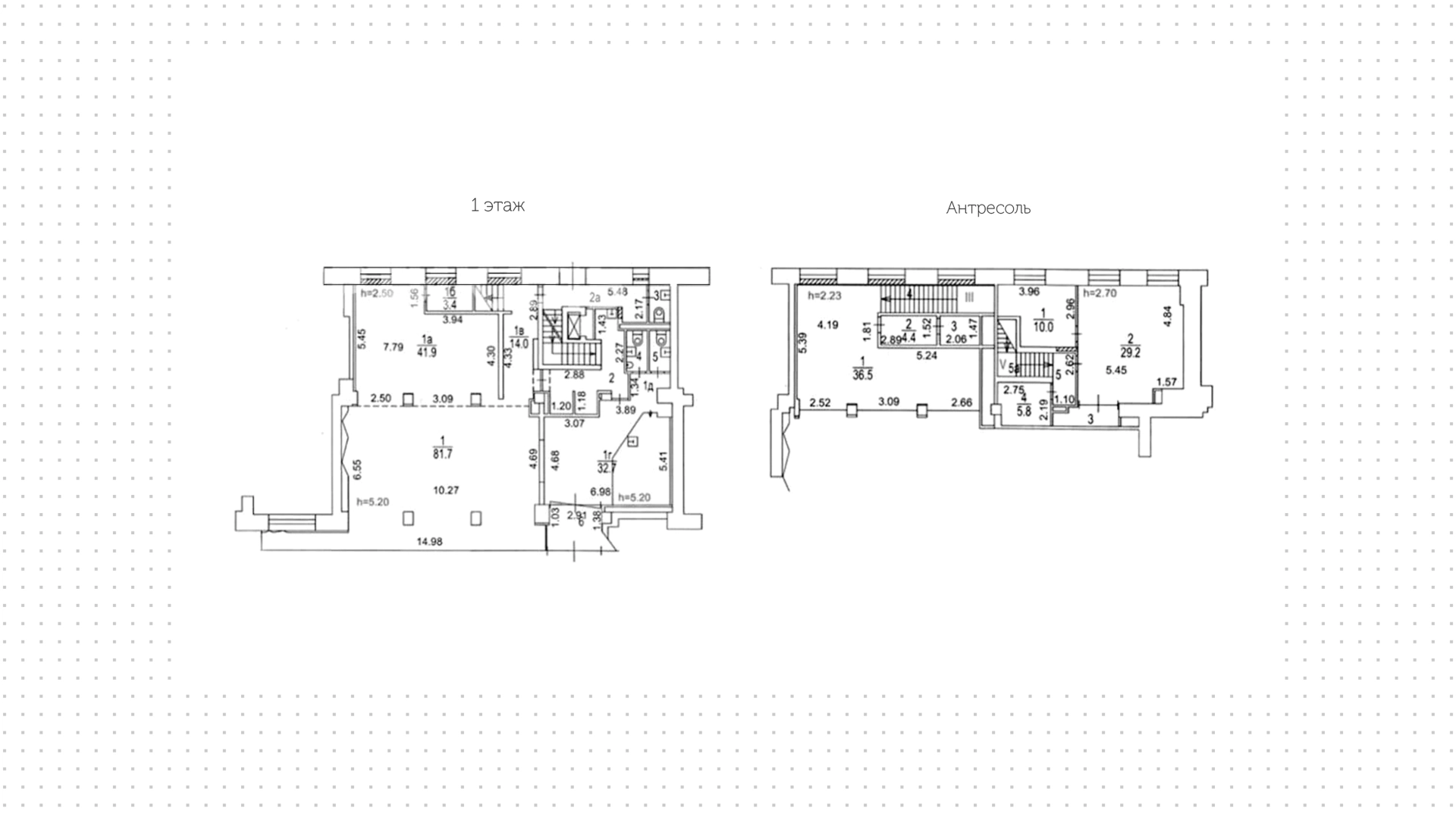
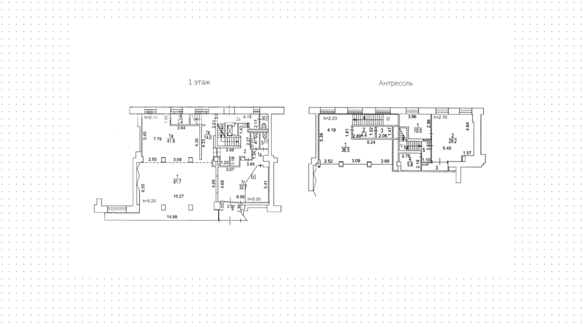
Коммерческое помещение на 1-й линии Смоленской улицы, в районе Хамовники. Помещение с дизайнерским ремонтом площадью 440 м² расположено на 1-м этаже, антресоли и в подвале в жилом доме. Высота потолков 3,22-5,7 метров. Электрическая мощность 120 кВт. Подведены все городские инженерные коммуникации, установлена вытяжка. Выполнена отделка за выездом арендатора — ресторана «Азиатико».
Отдельный вход с улицы и со двора, витринное остекление. Предоставляется место для размещения рекламы на фасаде. Большой поток пешеходного и автомобильного трафика, рядом остановка общественного транспорта. Торговое окружение — банки «Газпромбанк», «ВТБ», супермаркет «Азбука daily», ресторан «Зимний сад». За 5 минут пешком можно дойти до станции метро «Смоленская».
Читать полностью
Block "О комплексе" for Complex "Level Нижегородская" (ID=433) not found!
Block "Места поблизости" for Complex "Level Нижегородская" (ID=433) not found!
Block "Застройщик" for Complex "Level Нижегородская" (ID=433) not found!
Block "Ипотека" for Complex "Level Нижегородская" (ID=433) not found!
Block "Форма ипотеки" for Complex "Level Нижегородская" (ID=433) not found!
Block "Ход строительства" for Complex "Level Нижегородская" (ID=433) not found!
Block "Документы" for Complex "Level Нижегородская" (ID=433) not found!
Block "Вопрос\ответ" for Complex "Level Нижегородская" (ID=433) not found!
Block "Похожие комплексы" for Complex "Level Нижегородская" (ID=433) not found!