Торговый центр, 841 м², Королёв, Станционная площадь, 20, Лот №3872
Level Нижегородская
Коммерческое помещение на Станционной площади в Королёве, 841 м²
48 000 000 ₽
616 000 $
530 000 €
57 000 ₽ / м²
732 $ / м²
629 € / м²
с отделкой
новостройка
841 м²
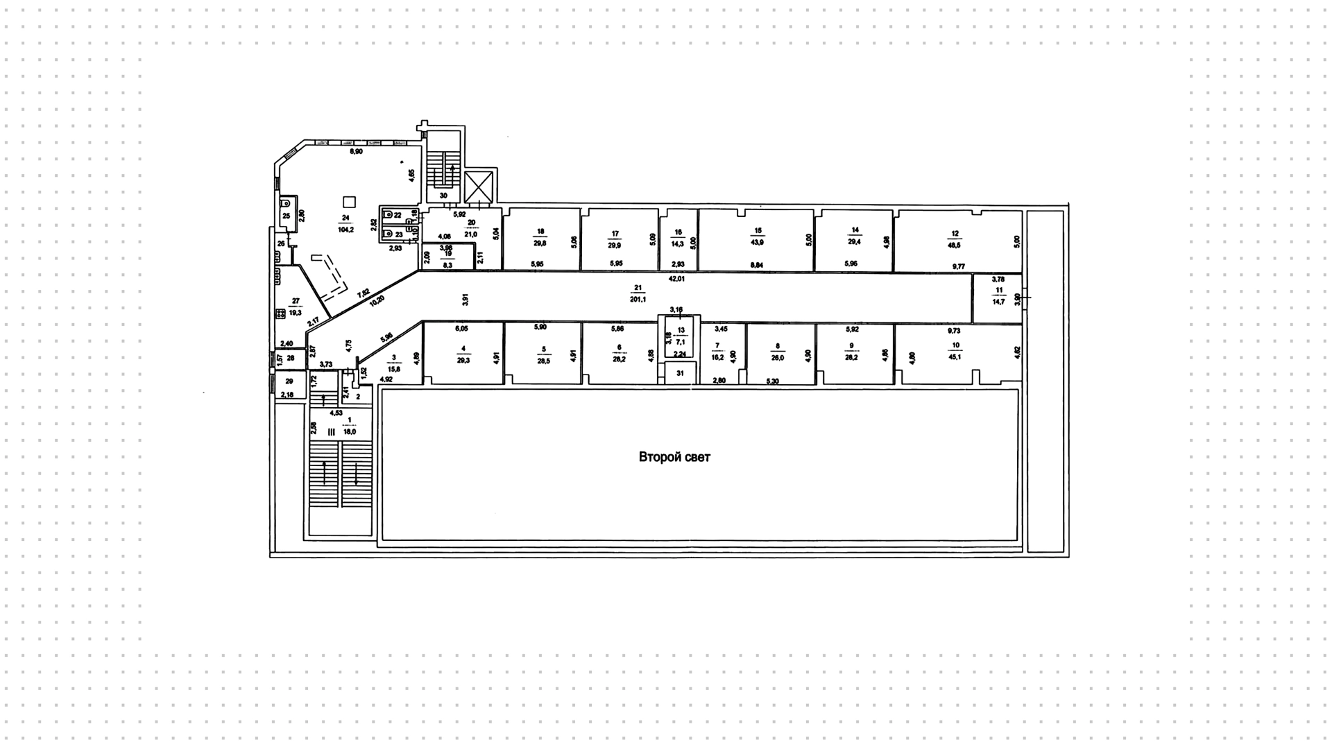
Нежилые помещения свободного назначения общей площадью 841 м² расположены на втором этаже в торговом комплексе «Подмосковье» около железнодорожной станции «Болшево» в городе Королёве. Помещения со свободной планировкой подключены к центральным коммуникациям.
Первый этаж торгового комплекса занимает крупный сетевой супермаркет «Пятерочка». Перед зданием предусмотрен наземный паркинг, слева от главного входа — зона разгрузки-погрузки.
Читать полностью
Block "О комплексе" for Complex "Level Нижегородская" (ID=433) not found!
Block "Места поблизости" for Complex "Level Нижегородская" (ID=433) not found!
Block "Застройщик" for Complex "Level Нижегородская" (ID=433) not found!
Block "Ипотека" for Complex "Level Нижегородская" (ID=433) not found!
Block "Форма ипотеки" for Complex "Level Нижегородская" (ID=433) not found!
Block "Ход строительства" for Complex "Level Нижегородская" (ID=433) not found!
Block "Документы" for Complex "Level Нижегородская" (ID=433) not found!
Block "Вопрос\ответ" for Complex "Level Нижегородская" (ID=433) not found!
Block "Похожие комплексы" for Complex "Level Нижегородская" (ID=433) not found!