Агентство элитной недвижимости
Пресненская набережная, 6с2,
башня «Империя»,
3-й подъезд, офис 4315
Московская область,
Рублёво-Успенское шоссе, Усово, 100, ДЦ «Резиденция на Рублёвке», Блок Г
+7 (495) 255-01-61 +7 (499) 877-49-39
Сейчас работаем

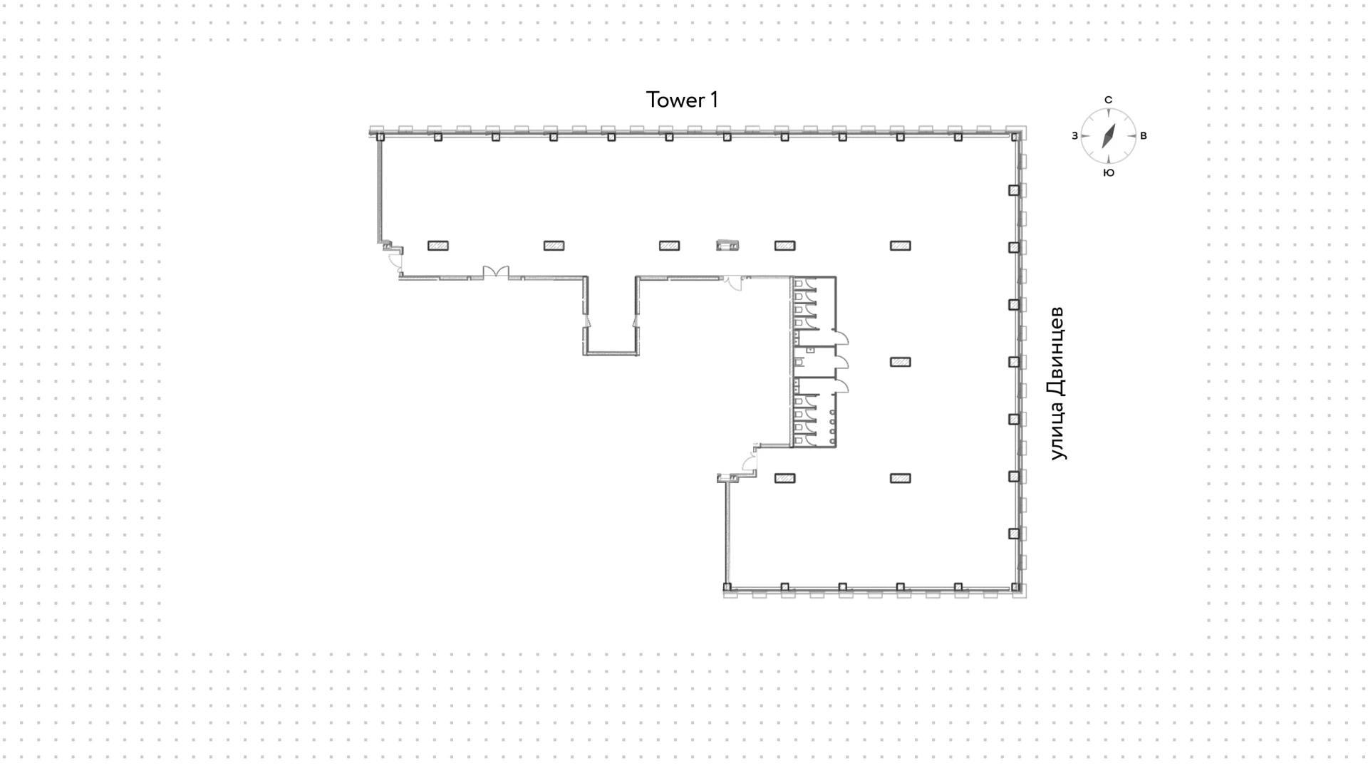
Бизнес-центр, 903 м², Двинцев, 3, Лот №3814

У лота нет комплекса
Офис с панорамным остеклением в комплексе Stone Савеловская, 903 м²
Марьина роща р-н
Савеловская, 10 минут
481 570 000 ₽ 6 080 000 $ 5 240 000 €
533 000 ₽ / м² 6 817 $ / м² 5 844 € / м²
без отделки
1 квартал 2026
новостройка
903 м²
Читать полностью