Агентство элитной недвижимости
Пресненская набережная, 6с2,
башня «Империя»,
3-й подъезд, офис 4315
Московская область,
Рублёво-Успенское шоссе, Усово, 100, ДЦ «Резиденция на Рублёвке», Блок Г
+7 (495) 255-01-61 +7 (499) 877-49-39
Сейчас работаем

Бизнес-центр, 444 м², Шмитовский проезд, 37, Лот №3334

У лота нет комплекса
Просторный офис в бизнес-центре на Шмитовском проспекте, 444 м²
Пресненский р-н
Шелепиха, 5 минут
386 630 000 ₽ 4 880 000 $ 4 210 000 €
871 000 ₽ / м² 11 000 $ / м² 9 566 € / м²
без отделки
2 квартал 2025
новостройка
444 м²
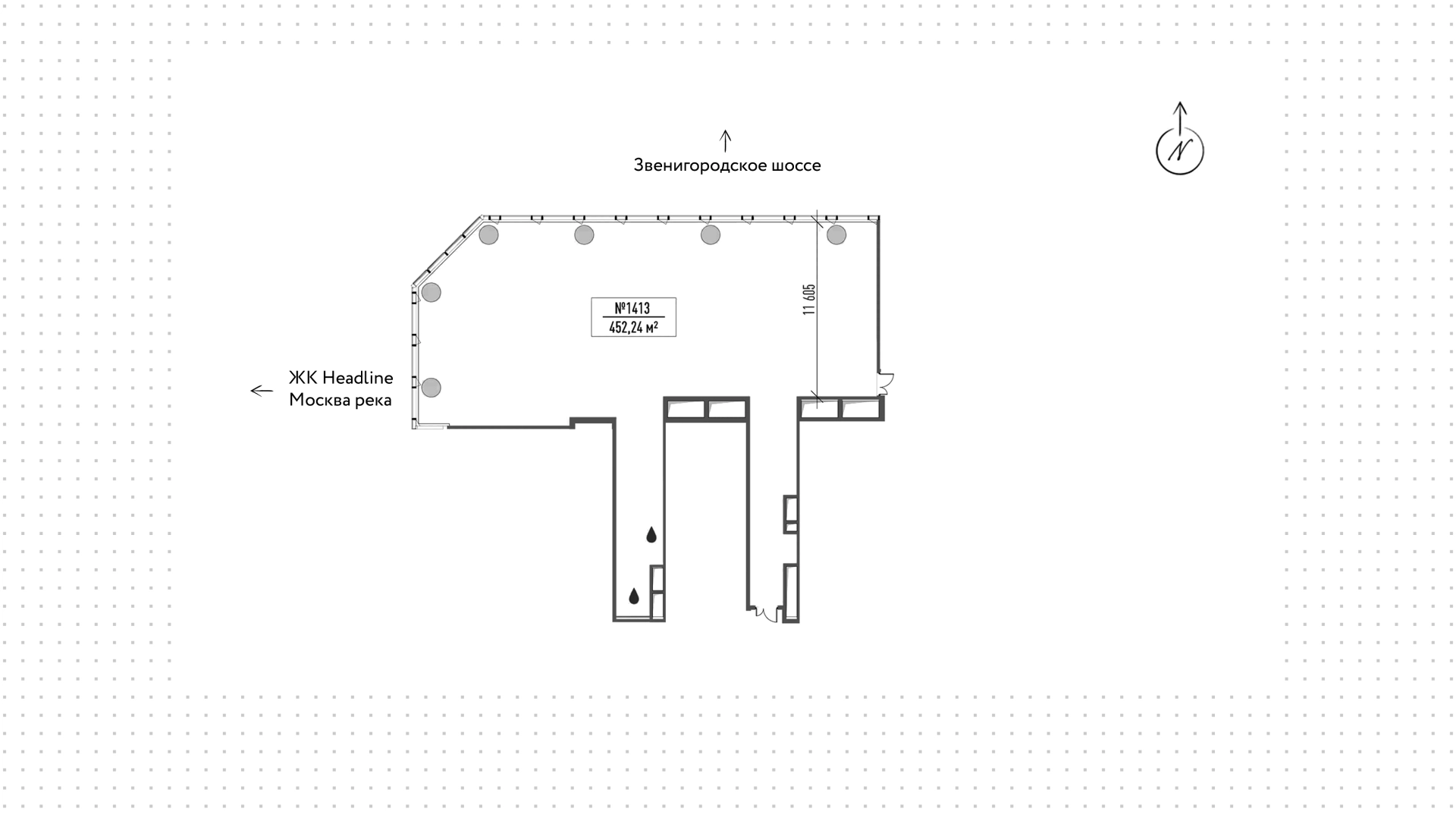
Офис в комплексе iCity. Офис площадью 452 м² расположен на 14 этаже из 61, без отделки. Окна: панорамные. Вид из окон: на шмитовский проезд. Сдача проекта запланирована на 4 квартал 2024 года.
Читать полностью