Агентство элитной недвижимости
Пресненская набережная, 6с2,
башня «Империя»,
3-й подъезд, офис 4315
Московская область,
Рублёво-Успенское шоссе, Усово, 100, ДЦ «Резиденция на Рублёвке», Блок Г
+7 (495) 255-01-61 +7 (499) 877-49-39
Сейчас работаем

Русский язык, верно?

Готовый арендный бизнес, 991 м², Каховка, 20А, Лот №49478

У лота нет комплекса
Готовый арендный бизнес в административном здании, 991 м²
220 000 000 ₽ 2 916 271 $ 2 482 461 €
221 997 ₽ / м² 2 943 $ / м² 2 505 € / м²
с отделкой
новостройка
991 м²
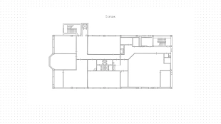
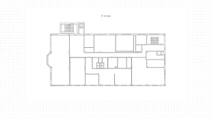
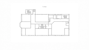
Готовый арендный бизнес расположен на 4 этаже в 5-этажном административном здании. В помещении площадью 991 м² с комбинированной планировкой выполнена отделка. Арендатор — офис компании. Подведены центральные коммуникации, установлены системы приточно-вытяжной вентиляции и центрального кондиционирования. Вход осуществляется через общее лобби в здании по пропускам.
Читать полностью