Агентство элитной недвижимости
Пресненская набережная, 6с2,
башня «Империя»,
3-й подъезд, офис 4315
Московская область,
Рублёво-Успенское шоссе, Усово, 100, ДЦ «Резиденция на Рублёвке», Блок Г
+7 (495) 255-01-61 +7 (499) 877-49-39
Сейчас работаем

Русский язык, верно?

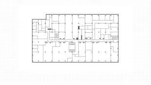
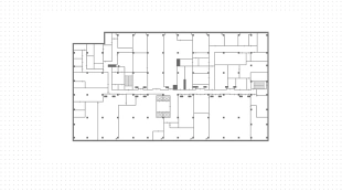
Офис, 3095 м², Проектируемый проезд №4062, 6, Лот №48050

У лота нет комплекса
Светлый и просторный офис с большими окнами, 3 095 м²
891 727 120 ₽ 11 820 537 $ 10 062 173 €
288 118 ₽ / м² 3 819 $ / м² 3 250 € / м²
с отделкой
новостройка
3 095 м²
Офис площадью 3 095 м² расположен на 5 этаже в строении №2 в бизнес-центре «ПОРТ ПЛАЗА». В помещении с комбинированной планировкой выполнена отделка. Подведены центральные коммуникации, установлены системы приточно-вытяжной вентиляции и центрального кондиционирования. Вход осуществляется через общее лобби в здании по пропускам.
Читать полностью