Агентство элитной недвижимости
Пресненская набережная, 6с2,
башня «Империя»,
3-й подъезд, офис 4315
Московская область,
Рублёво-Успенское шоссе, Усово, 100, ДЦ «Резиденция на Рублёвке», Блок Г
+7 (495) 255-01-61 +7 (499) 877-49-39
Сейчас работаем

Русский язык, верно?

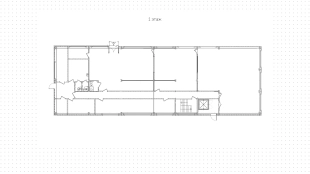
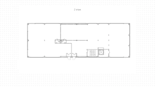
Готовый арендный бизнес, 929 м², Берёзовая аллея, 4А, Лот №47924

Level Нижегородская
Отдельное здание на 1 линии Берёзовой аллеи в Отрадном, 929 м²
Отрадное р-н
220 000 000 ₽ 2 916 271 $ 2 482 461 €
236 813 ₽ / м² 3 139 $ / м² 2 672 € / м²
с отделкой
новостройка
929 м²
Отдельное здание на 1 линии Берёзовой аллеи в Отрадном. Обеспечен интенсивный автомобильный и пешеходный трафик. Окружение — пункты выдачи OZON и Wildberries, кафе «ОШ» и шиномонтаж. Организован быстрый выезд на МСД. Объект с комбинированной планировкой площадью 929 м² расположен на 1 и 2 этажах в нежилом здании. Арендаторы — даркстор OZON fresh, автосервис «Большой Кореец». Организован отдельный вход с улицы и со двора. Спланированы собственная парковка на 12 машин и бесплатная городская перед зданием.
Читать полностью