Готовый арендный бизнес в 5 минутах от метро «Сходненская», 145 м², Сходненская, 44/17, Лот №547
Level Нижегородская
Готовый арендный бизнес в 5 минутах от метро «Сходненская», 145 м²
Тушино Южное р-н
Сходненская, 5 минут
66 000 000 ₽
847 000 $
729 000 €
455 000 ₽ / м²
5 839 $ / м²
5 024 € / м²
с отделкой
новостройка
145 м²
Готовый арендный бизнес на 1-й линии улицы Сходненская в Южном Тушино. Большой поток пешеходного и автомобильного трафика, рядом остановка общественного транспорта. Окружение — пекарня, пункт выдачи Ozon, салон красоты «Милена», ногтевая студия Secret_studio. За 5 минут пешком можно дойти до станции метро «Сходненская».
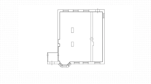
Помещение с открытой планировкой площадью 419 м² расположено на 1-м и подвальном этаже 4-этажного дома. Арендатор — продуктовый магазин. Первый этаж — 263 м², подвал — 156 м². Отдельный вход с улицы и со двора с зоной разгрузки, витринное остекление. Предусмотрены размещение рекламы на фасаде, бесплатная городская парковка перед домом.
Читать полностью
Block "О комплексе" for Complex "Level Нижегородская" (ID=433) not found!
Block "Места поблизости" for Complex "Level Нижегородская" (ID=433) not found!
Block "Застройщик" for Complex "Level Нижегородская" (ID=433) not found!
Block "Ипотека" for Complex "Level Нижегородская" (ID=433) not found!
Block "Форма ипотеки" for Complex "Level Нижегородская" (ID=433) not found!
Block "Ход строительства" for Complex "Level Нижегородская" (ID=433) not found!
Block "Документы" for Complex "Level Нижегородская" (ID=433) not found!
Block "Вопрос\ответ" for Complex "Level Нижегородская" (ID=433) not found!
Block "Похожие комплексы" for Complex "Level Нижегородская" (ID=433) not found!