Агентство элитной недвижимости
Пресненская набережная, 6с2,
башня «Империя»,
3-й подъезд, офис 4315
Московская область,
Рублёво-Успенское шоссе, Усово, 100, ДЦ «Резиденция на Рублёвке», Блок Г
+7 (495) 255-01-61 +7 (499) 877-49-39
Сейчас работаем

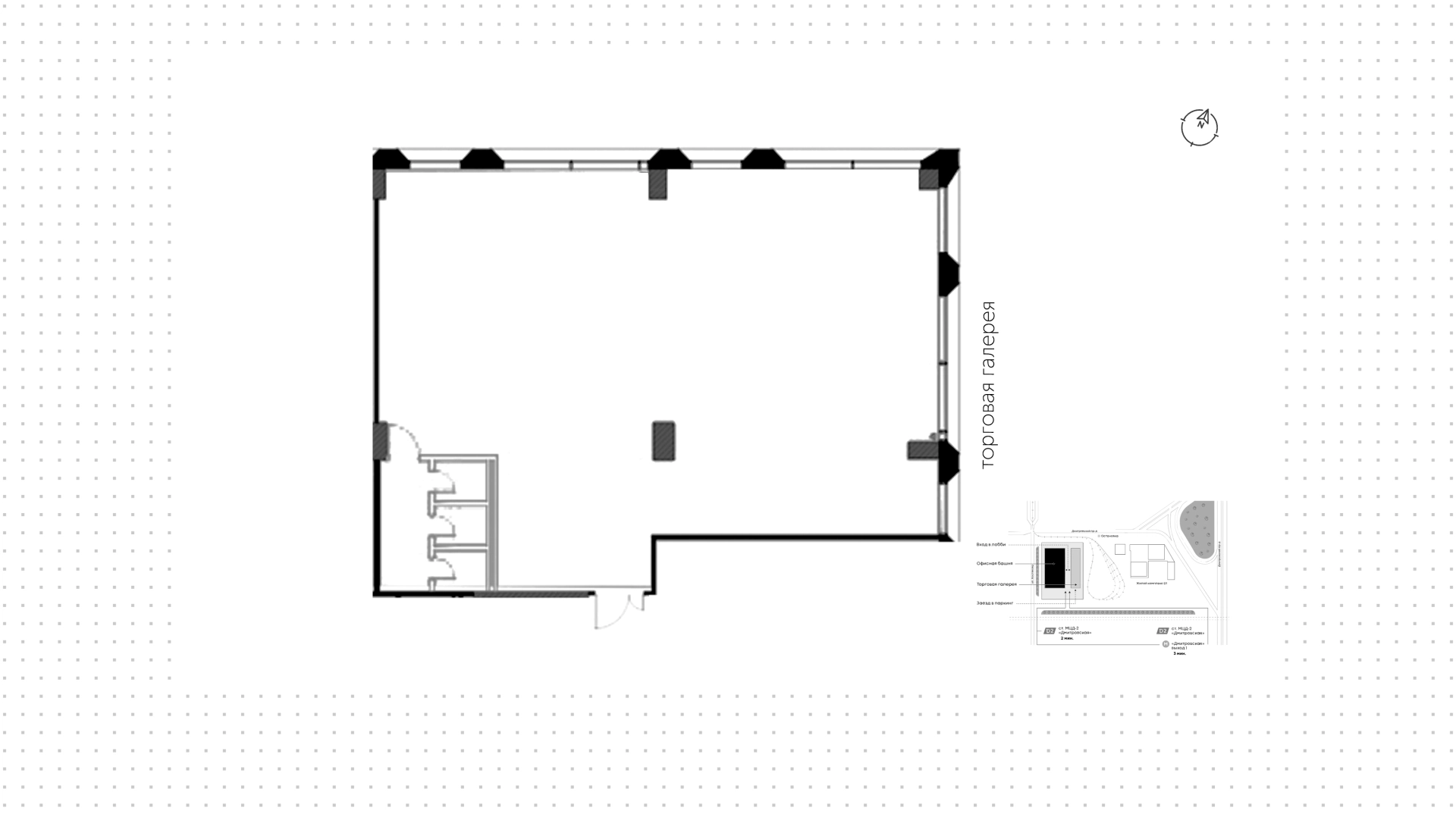
Бизнес-центр, 191 м², Дмитровский проезд, 1Г, Лот №8410

У лота нет комплекса
Просторное помещение под офис около станции метро Дмитровская, 191 м²
Тимирязевский р-н
Дмитровская, 5 минут
86 930 000 ₽ 1 100 000 $ 947 000 €
453 000 ₽ / м² 5 874 $ / м² 4 976 € / м²
без отделки
4 квартал 2026
новостройка
191 м²
Офис в комплексе Stone Дмитровская. Офис площадью 192 м² расположен на 12 этаже из 23, без отделки. Окна: панорамные окна в пол с возможностью проветривания. Вид из окон: на дмитровский проезд.
Читать полностью