Агентство элитной недвижимости
Пресненская набережная, 6с2,
башня «Империя»,
3-й подъезд, офис 4315
Московская область,
Рублёво-Успенское шоссе, Усово, 100, ДЦ «Резиденция на Рублёвке», Блок Г
+7 (495) 255-01-61 +7 (499) 877-49-39
Сейчас работаем

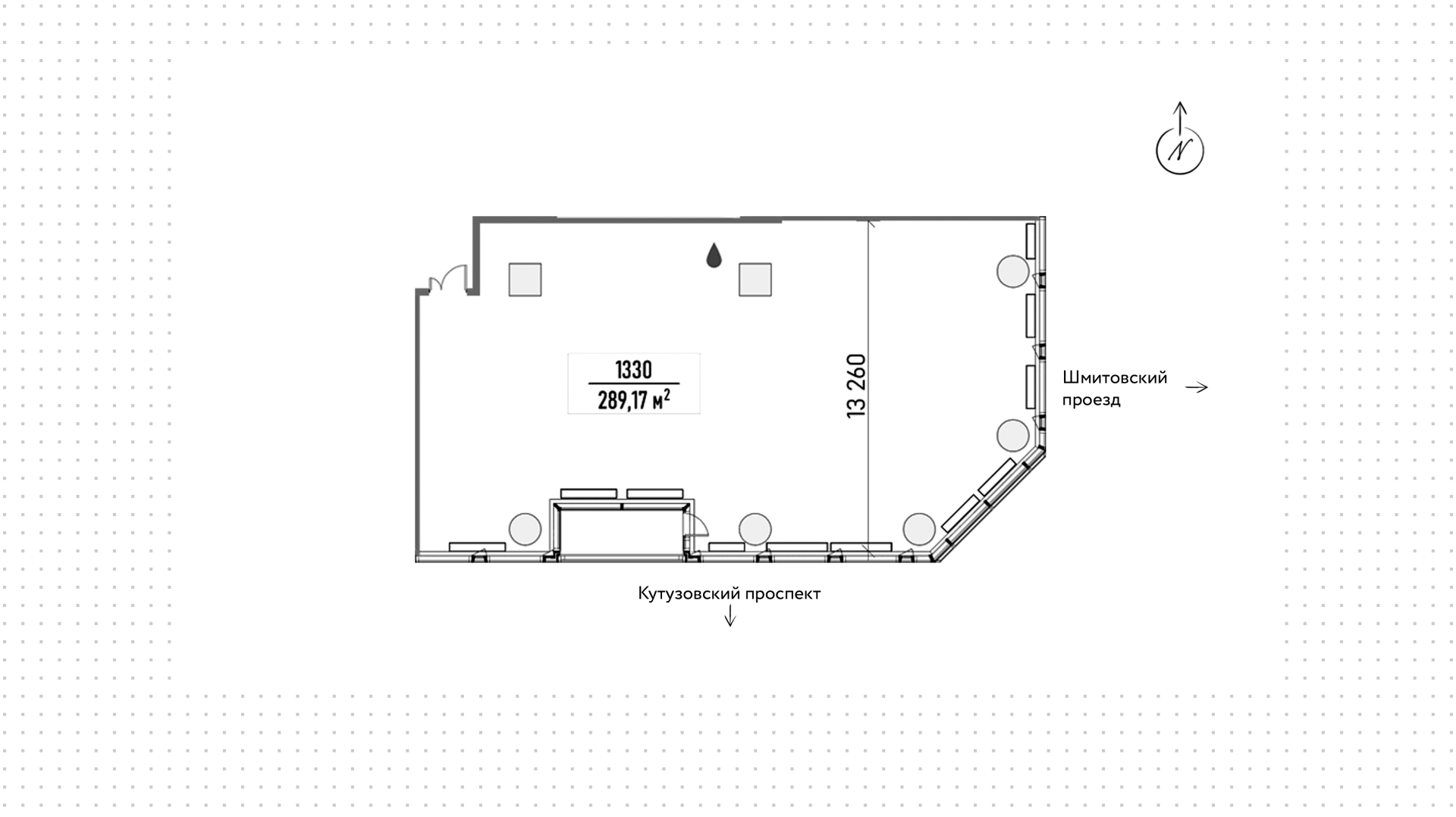
Бизнес-центр, 292 м², Шмитовский проезд, 37, Лот №8211

У лота нет комплекса
Помещение под офис с террасой в Пресненском районе, 292 м²
Пресненский р-н
Шелепиха, 5 минут
258 600 000 ₽ 3 270 000 $ 2 820 000 €
886 000 ₽ / м² 11 000 $ / м² 9 728 € / м²
без отделки
2 квартал 2025
новостройка
292 м²
Читать полностью