Агентство элитной недвижимости
Пресненская набережная, 6с2,
башня «Империя»,
3-й подъезд, офис 4315
Московская область,
Рублёво-Успенское шоссе, Усово, 100, ДЦ «Резиденция на Рублёвке», Блок Г
+7 (495) 255-01-61 +7 (499) 877-49-39
Сейчас работаем

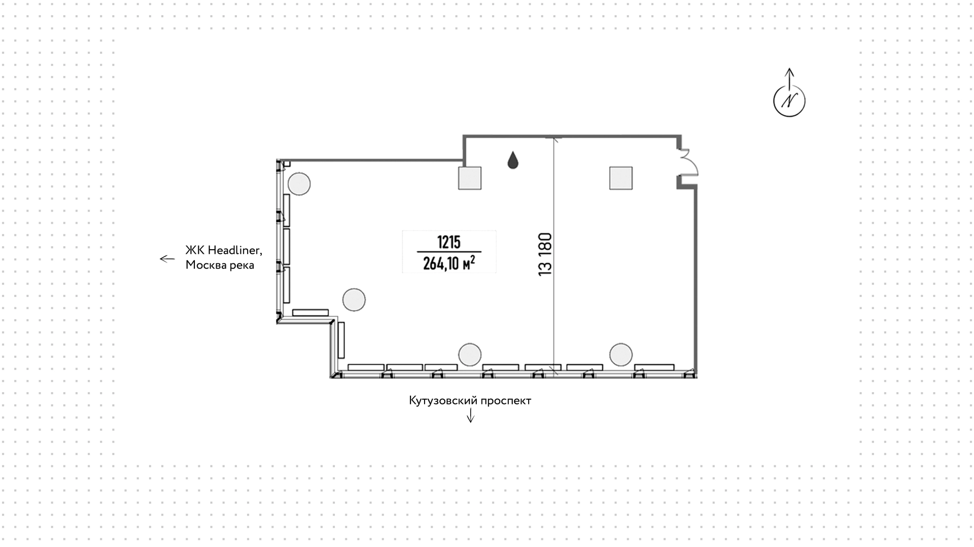
Бизнес-центр, 264 м², Шмитовский проезд, 37, Лот №8208

У лота нет комплекса
Офисное помещение на 12-м этаже бизнес-центра iCity, 264 м²
Пресненский р-н
Шелепиха, 5 минут
206 820 000 ₽ 2 650 000 $ 2 280 000 €
783 000 ₽ / м² 10 000 $ / м² 8 644 € / м²
без отделки
2 квартал 2025
новостройка
264 м²
Читать полностью