Агентство элитной недвижимости
Пресненская набережная, 6с2,
башня «Империя»,
3-й подъезд, офис 4315
Московская область,
Рублёво-Успенское шоссе, Усово, 100, ДЦ «Резиденция на Рублёвке», Блок Г
+7 (495) 255-01-61 +7 (499) 877-49-39
Сейчас работаем

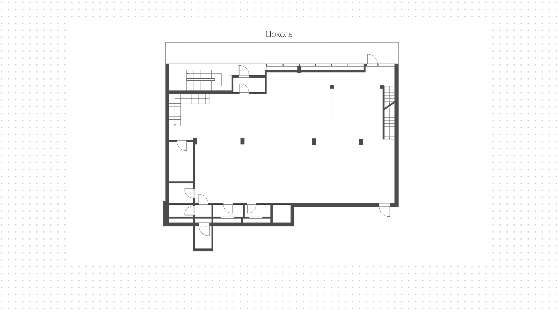
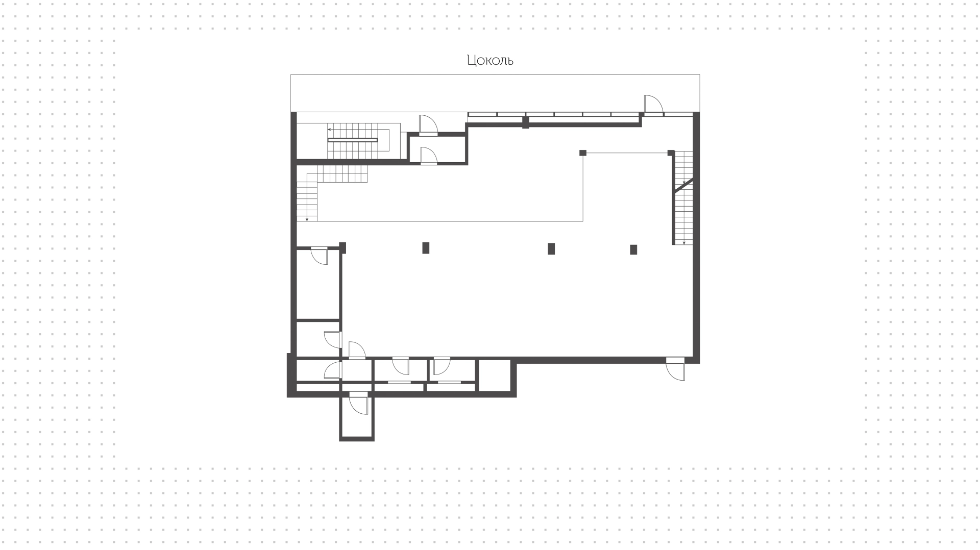
Ритейл, 400 м², Бурденко, 3, Лот №10358

Level Нижегородская
На Бурденко, 3, 400 м²
Хамовники р-н
Парк Культуры, 10 минут
245 370 600 ₽ 3 280 000 $ 2 792 000 €
616 943 ₽ / м² 8 200 $ / м² 6 980 € / м²
с отделкой
новостройка
400 м²
Коммерческое помещение на 1-й линии улицы Бурденко в Хамовниках. Большой поток пешеходного и автомобильного трафика. Окружение — салоны красоты «Британа» и Saco, студия звукозаписи Beiz Audio, супермаркет «Пятёрочка», гостиница «Подушкин». За 10 минут пешком можно дойти до станции метро «Парк Культуры». Объект с открытой планировкой площадью 400 м² расположен на цокольном этаже с антресолью в жилом комплексе бизнес-класса «Дом на Бурденко». Выполнена отделка за выездом арендатора — магазина мебели «Итальянская галерея». Установлена вытяжка, на фасаде спланировано место для рекламы. Два отдельных входа с улицы с зоной разгрузки, витринное остекление. Предусмотрены подземный паркинг на 4 места, городская платная парковка у дороги. При необходимости мы поможем с поиском арендатора для вашего помещения.
Читать полностью