Агентство элитной недвижимости
Пресненская набережная, 6с2,
башня «Империя»,
3-й подъезд, офис 4315
Московская область,
Рублёво-Успенское шоссе, Усово, 100, ДЦ «Резиденция на Рублёвке», Блок Г
+7 (495) 255-01-61 +7 (499) 877-49-39
Сейчас работаем

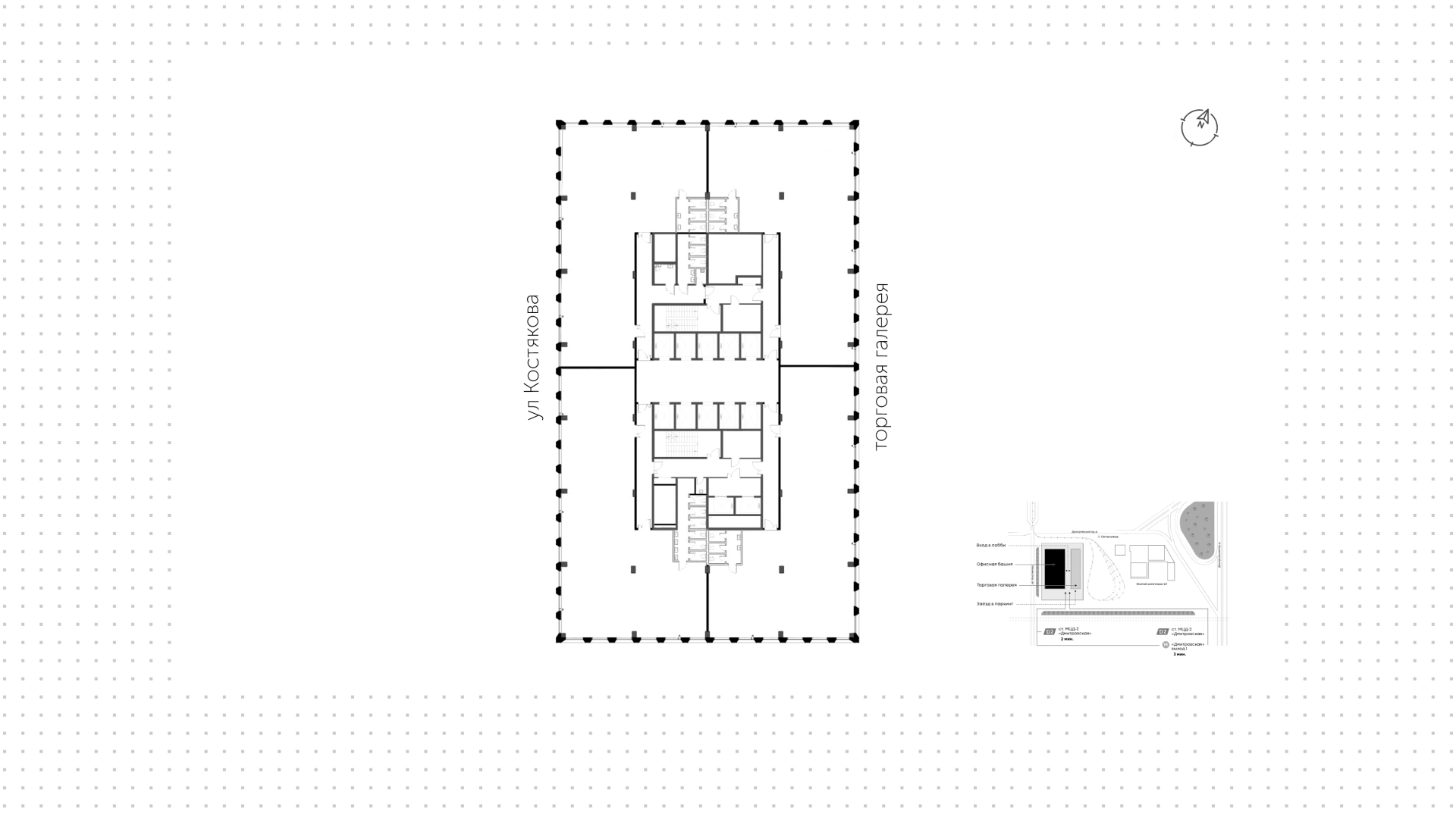
Бизнес-центр, 1600 м², Дмитровский проезд, 1Г, Лот №6486

У лота нет комплекса
Офис с высокими потолками в 5 минутах от метро Дмитровская, 1 600 м²
Тимирязевский р-н
Дмитровская, 5 минут
669 310 000 ₽ 8 460 000 $ 7 290 000 €
418 000 ₽ / м² 5 422 $ / м² 4 593 € / м²
без отделки
4 квартал 2026
новостройка
1 600 м²
Офис в комплексе Stone Дмитровская. Офис площадью 1478 м² расположен на 20 этаже из 23, без отделки. Окна: панорамные окна в пол с возможностью проветривания. Вид из окон: на улицу костякова, дмитровский проезд, жилой комплекс d1.
Читать полностью