Агентство элитной недвижимости
Пресненская набережная, 6с2,
башня «Империя»,
3-й подъезд, офис 4315
Московская область,
Рублёво-Успенское шоссе, Усово, 100, ДЦ «Резиденция на Рублёвке», Блок Г
+7 (495) 255-01-61 +7 (499) 877-49-39
Сейчас работаем

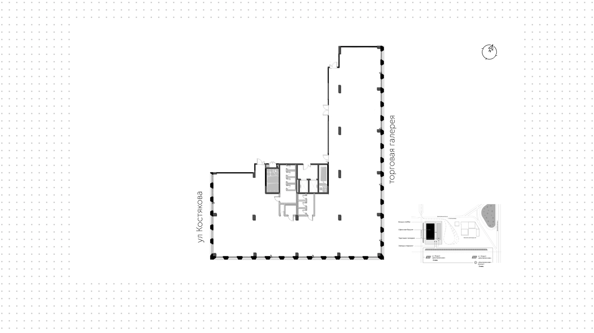
Бизнес-центр, 769 м², Дмитровский проезд, 1Г, Лот №6483

У лота нет комплекса
Офис без отделки на 21 этаже в комплексе Stone Дмитровская, 769 м²
Тимирязевский р-н
Дмитровская, 5 минут
354 830 000 ₽ 4 480 000 $ 3 860 000 €
461 000 ₽ / м² 5 978 $ / м² 5 064 € / м²
без отделки
4 квартал 2026
новостройка
769 м²
Офис в комплексе Stone Дмитровская. Офис площадью 770 м² расположен на 21 этаже из 23, без отделки. Окна: панорамные окна в пол с возможностью проветривания. Вид из окон: на жилой комплекс d1, железную дорогу и улицу костякова.
Читать полностью