Агентство элитной недвижимости
Пресненская набережная, 6с2,
башня «Империя»,
3-й подъезд, офис 4315
Московская область,
Рублёво-Успенское шоссе, Усово, 100, ДЦ «Резиденция на Рублёвке», Блок Г
+7 (495) 255-01-61 +7 (499) 877-49-39
Сейчас работаем

Стрит-ритейл, 550 м², Бережковская набережная, 12, Лот №12248

Level Нижегородская
На Бережковской набережной, 12, 550 м²
Дорогомилово р-н
Киевская, 9 минут
1 200 000 ₽ в месяц 16 000 $ в месяц 14 000 € в месяц
2 181 ₽ / м² 29 $ / м² 24 € / м²
с отделкой
новостройка
550 м²
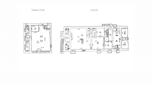
Коммерческое помещение в районе Дорогомилово. Благодаря близости к гостинице Radisson и Киевскому вокзалу вдоль помещения обеспечен интенсивный автомобильный и пешеходный трафик. Окружение — кофейня «ОКофе», салон красоты Biologique Recherche, алкомаркет «Ароматный мир», продуктовый магазин «Ремит». За девять минут пешком можно дойти до станции метро «Киевская». Объект с комбинированной планировкой площадью 550 м² расположен на первом и цокольном этажах в жилом доме. Выполнена отделка за выездом арендатора — ресторана «12 Бокалов», установлена вытяжка. Помещение подойдёт под размещение ресторана, супермаркета или фитнес-клуба. Предусмотрены отдельные входы с улицы и со двора, витринное остекление, спланирована зона разгрузки.
Читать полностью