Агентство элитной недвижимости
Пресненская набережная, 6с2,
башня «Империя»,
3-й подъезд, офис 4315
Московская область,
Рублёво-Успенское шоссе, Усово, 100, ДЦ «Резиденция на Рублёвке», Блок Г
+7 (495) 255-01-61 +7 (499) 877-49-39
Сейчас работаем

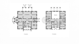
Коттедж, 770 м² в КП Жуковка 21, лот №5649

Жуковка 21
Дом в классическом стиле с гаражом, 770 м²
899 250 000 ₽ 11 540 000 $ 9 930 000 €
1 170 000 ₽ / м² 15 000 $ / м² 13 000 € / м²
4 спальни
2 этажа
новостройка
770 м²
Резиденция в классическом стиле 723 м² продается с отделкой под ключ. Светлый фасад из натурального камня украшен портиком, колоннами и баллюстрадой. У дома построен гараж на 2 машины в едином стиле с домом. На полевом участке 50 соток посажен газон. Здесь можно разбить цветник или установить бассейн.
Читать полностью

О посёлке «Жуковка XXI»

Фотографии комплекса Посёлок «Жуковка XXI»
Посёлок
Фотографии  Посёлок «Жуковка XXI»
Аква-зона
Фотографии паркинга Посёлок «Жуковка XXI»
Спа-салон
Фотографии приватной территории Посёлок «Жуковка XXI»
Ресторан
Фотографии  Посёлок «Жуковка XXI»
Тренажёрный зал и теннисные корты
Фотографии  Посёлок «Жуковка XXI»
Детский клуб
Фотографии  Посёлок «Жуковка XXI»
Окружение
Фотографии  Посёлок «Жуковка XXI»
На берегу Москвы-реки
Места поблизости
10 минут
4 минуты
Школа «Президент»
15 минут
5 минут
Pride Wellness Club
9 минут
6 минут
World Class Жуковка
15 минут
6 минут
MedSwiss
33 минуты
6 минут
Гимназия «Жуковка»
15 минут
8 минут
Ресторан «Причал»
32 минуты
8 минут
Барвиха Luxury Village
19 минут
8 минут
Выездковая школа
63 минуты
13 минут
Парк «Раздолье»
29 минут
15 минут
Теннисный клуб «Жуковка»

Застройщик посёлка «Жуковка 21»

Основное направление деятельности группы компаний Gletcher – строительство коттеджных поселков элитного и бизнес-классов, каждый из которых имеет свою оригинальную концепцию. Все проекты расположены в живописных местах западного и юго-западного направлений Подмосковья.

Поможем получить ипотеку на самых выгодных условиях

Подайте заявку на ипотеку и получите решение сразу из нескольких банков-партнёров.
Одобрить ипотеку
bookshelf
photo
Блинова Анастасия
Ипотечный брокер
lamp

Частые вопросы

Какие преимущества жизни в посёлке «Жуковка XXI» на берегу Москвы-реки?

Посёлок «Жуковка XXI» сочетает тишину природы и удобство жизни рядом со столицей. Жители наслаждаются чистым воздухом, видами на Москву-реку и развитой инфраструктурой — клубом PRIDE Wellness Club с бассейном и спа-центром, теннисными кортами, рестораном и детским клубом. Всё это делает «Жуковку XXI» одним из самых престижных коттеджных посёлков Подмосковья.

Где находится коттеджный посёлок «Жуковка 21»?

Посёлок «Жуковка 21 век» находится в Московской области, в самом центре Рублёвки, рядом с Рублёво-Успенским шоссе.

Какой дом можно купить в посёлке «Жуковка 21»?

Вы можете купить дом по индивидуальному проекту площадью 840-1200 м². Планировка включает спальни для всей семьи и гостей, просторные гардеробные и личные кабинеты. Доступны лоты с готовым дизайнерским ремонтом и без отделки.

Сколько домовладений в коттеджном посёлке «Жуковка XXI»?

В проекте 51 участок с домами по индивидуальному проекту.

Какая инфраструктура в посёлке «Жуковка 21»?

В посёлке «Жуковка 21 век» открыли элитный клуб «Прайд» площадью 7 000 м²: вам не придётся покидать территорию, чтобы отдохнуть или заняться спортом. В комплексе – тренажёрный зал, 5 теннисных кортов, спа-центр, ресторан и детский клуб.

Какая площадь участков в посёлке «Жуковка XXI»?

В продаже доступны участки площадью 50-300 соток.

Можно ли купить дом в коттеджном посёлке «Жуковка XXI» в ипотеку?

Да, покупка недвижимости в коттеджном посёлке «Жуковка XXI» возможна по ипотечной программе. Мы помогаем оформить ипотеку на лучших условиях от ведущих банков, чтобы вы могли приобрести дом.

Похожие посёлки

Барвиха Хиллс

«Барвиха Хиллс» — клубный поселок на 100 таунхаусов в стиле хай-тек по проекту голландского архитектора Эрика ван Эгераата, с панорамным остеклением и лаконичными фасадами. Все таунхаусы соединенны сетью подземных дорог и гаражей — это позволило создать на территории поселка уютную пешеходную зону.

Рублёво-Успенское
до МКАД: 7 км
 
Цена по запросу
Застройщик
Capital Group
Сдача проекта
Сдан
Рублёво-Успенское
до МКАД: 7 км
 
Цена по запросу
Новое Лапино

«Новое Лапино» — элитный коттеджный посёлок в окружении Ново-Дарьинского леса. На территории коттеджи, таунхаусы и квартиры в современном стиле с отделкой под ключ или без отделки. Для жителей доступны детские и спортивные площадки, детские сады, спа и спортивный клуб. У въезда в посёлок расположена торговая галерея.

Рублёво-Успенское
до МКАД: 18 км
Таунхаусы и Участки
от 70 000 000 ₽ от 898 000 $ от 773 000 €
Застройщик
ФЛЭТ и Ко
Сдача проекта
Сдан
Лоты Площадь от
Цена от
Рублёво-Успенское
до МКАД: 18 км
Таунхаусы и Участки
от 70 000 000 ₽ от 898 000 $ от 773 000 €
Площадь
от 368 м²
Скачать презентацию
Азарово

«Азарово» — загородный посёлок, на территории которого расположены коттеджи, таунхаусы и многоквартирные дома в классическом стиле. Для прогулок и отдыха предусмотрено 40 гектаров Ново-Дарьинского леса, парки и оздоровительно-развлекательный комплекс. Для маленьких жителей открыт детский сад, две частные школы, футбольное поле и игровые площадки.

Рублёво-Успенское
до МКАД: 23 км
Квартиры и Коттеджи
от 21 150 000 ₽ от 271 000 $ от 234 000 €
Застройщик
ФЛЭТ и Ко
Сдача проекта
Сдан
Лоты Площадь от
Цена от
Рублёво-Успенское
до МКАД: 23 км
Квартиры и Коттеджи
от 21 150 000 ₽ от 271 000 $ от 234 000 €
Площадь
от 85 м²
Скачать презентацию
Успенка 21

«Успенка 21» – элитный коттеджный посёлок клубного типа из 30 коттеджей в едином английском стиле. С архитекторами посёлка можно осуществить индивидуальные дизайнерские решения. У каждого дома есть гараж. Для маленьких жителей предусмотрена детская площадка.

Рублёво-Успенское
до МКАД: 24 км
Коттеджи
от 260 000 000 ₽ от 3 340 000 $ от 2 870 000 €
Застройщик
Застройщик неизвестен
Сдача проекта
Сдан
Лоты Площадь от
Цена от
Рублёво-Успенское
до МКАД: 24 км
Коттеджи
от 260 000 000 ₽ от 3 340 000 $ от 2 870 000 €
Площадь
от 427 м²
Скачать презентацию
Лион

«Лион» – камерный коттеджный поселок в окружении экологически-чистого леса. На территории 50 коттеджей без отделки в неоклассическом стиле. Владельцы прилесных участков могут дополнительно арендовать участок с лесом. Территория поселка огорожена и охраняется.

Рублёво-Успенское
до МКАД: 27 км
 
Цена по запросу
Застройщик
Газпромбанк-Инвест
Сдача проекта
Сдан
Рублёво-Успенское
до МКАД: 27 км
 
Цена по запросу
ParkVille

ParkVille — коттеджный посёлок из 57 коттеджей в английском классическом стиле и собственный пейзажный парк на 40 гектаров. Прямо на территории для жителей открыта большая частная школа, детский сад и обсерватория. Всего в 15 минутах на машине — расположен торгово-развлекательный комплекс Barvikha Luxury Village.

Рублёво-Успенское
до МКАД: 10 км
Коттеджи
от 693 800 000 ₽ от 8 900 000 $ от 7 660 000 €
Застройщик
Квинтурин
Сдача проекта
Сдан
Лоты Площадь от
Цена от
Рублёво-Успенское
до МКАД: 10 км
Коттеджи
от 693 800 000 ₽ от 8 900 000 $ от 7 660 000 €
Площадь
от 1400 м²
На страницу комплекса
Николино

«Николино» — элитный охраняемый коттеджный поселок. На общей территории в 170 гектаров расположено более 300 домов. Для жителей посёлка создана роскошная инфраструктура: искусственные водоемы в лесу, ландшафтные парки, детский клуб, частный пляж, спорткомплекс, ресторан и кафе, магазины, теннисные корты и боулинг.

Рублёво-Успенское
до МКАД: 24 км
Коттеджи, Участки и Таунхаусы
Цена по запросу
Застройщик
Mirum
Сдача проекта
Сдан
Лоты Площадь от
Цена от
Рублёво-Успенское
до МКАД: 24 км
Коттеджи, Участки и Таунхаусы
Цена по запросу
Площадь
от 350 м²
Скачать презентацию
Берёзки

«Берёзки» — охраняемый клубный поселок в окружении березовой рощи. На территории 151 коттедж по 18 проектам в современном европейском стиле с панорамными окнами. Архитектором проекта выступил известный швейцарский архитектор Даниэль Шиндлер.

Рублёво-Успенское
до МКАД: 17 км
Коттеджи
от 195 000 000 ₽ от 2 500 000 $ от 2 150 000 €
Застройщик
City Land Group
Сдача проекта
Сдан
Лоты Площадь от
Цена от
Рублёво-Успенское
до МКАД: 17 км
Коттеджи
от 195 000 000 ₽ от 2 500 000 $ от 2 150 000 €
Площадь
от 585 м²
Скачать презентацию
Раздоры-2

«Раздоры-2» — коттеджный поселок на берегу Москвы-реки, окруженный густым сосновым бором. Дизайн домов выполнен в английском стиле, из красного кирпича и белого камня с симметричными элементами, строгими линиями и сдержанными цветами в отделке. На территории поселка открыта гимназия им. Примакова, частный детский сад и парки для прогулок и отдыха.

Рублёво-Успенское
до МКАД: 4 км
Коттеджи
от 350 800 000 ₽ от 4 500 000 $ от 3 870 000 €
Застройщик
Millhouse Capitals
Сдача проекта
Сдан
Лоты Площадь от
Цена от
Рублёво-Успенское
до МКАД: 4 км
Коттеджи
от 350 800 000 ₽ от 4 500 000 $ от 3 870 000 €
Площадь
от 413 м²
Скачать презентацию
Ландшафт

На лесной территории клубного поселка «Ландшафт» расположены загородные резиденции и дома, выполненные по уникальным дизайн-проектам в классическом и европейском стиле. У въезда в поселок для жителей работает кафе, салон красоты, французская булочная и автомойка.

Рублёво-Успенское
до МКАД: 9 км
Коттеджи
от 395 000 000 ₽ от 5 070 000 $ от 4 360 000 €
Застройщик
Застройщик неизвестен
Сдача проекта
Сдан
Лоты Площадь от
Цена от
Рублёво-Успенское
до МКАД: 9 км
Коттеджи
от 395 000 000 ₽ от 5 070 000 $ от 4 360 000 €
Площадь
от 325 м²
Скачать презентацию