Агентство элитной недвижимости
Пресненская набережная, 6с2,
башня «Империя»,
3-й подъезд, офис 4315
Московская область,
Рублёво-Успенское шоссе, Усово, 100, ДЦ «Резиденция на Рублёвке», Блок Г
+7 (495) 255-01-61 +7 (499) 877-49-39
Сейчас работаем

Коттедж, 450 м² в КП Millennium Park, лот №11079

Millennium Park
Деревянный дом в стиле «шале» на участке с выходом к водному каналу, 450 м²
185 000 000 ₽ 2 290 000 $ 1 980 000 €
411 000 ₽ / м² 5 092 $ / м² 4 395 € / м²
3 спальни
2 этажа
без отделки
от собственника
450 м²
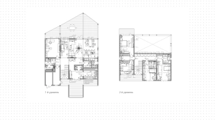
Загородный дом площадью 450 м² расположен на полевом участке 10 соток с выходом к водному каналу. Фасад с большими окнами в стиле «шале» выполнен из дерева. Коттедж представлен без отделки. Внутри спланировали 3 спальни, гостиную с выходом на просторную террасу 80 м², кухню-столовую с кладовой, кабинет и навес для машины. На участке можно выполнить ландшафтный дизайн, вымостить дорожки и обустроить зону барбекю.
Читать полностью

О посёлке Millennium Park

Фотографии паркинга Посёлок Millennium Park в Истринском районе
Коттеджи
Фотографии  Посёлок Millennium Park в Истринском районе
Парк «Усадьба»
Фотографии приватной территории Посёлок Millennium Park в Истринском районе
Парк искусств и Парк трёх озёр
Фотографии  Посёлок Millennium Park в Истринском районе
Парки «Остров» и «Лабиринт»
Фотографии архитектуры Посёлок Millennium Park в Истринском районе
Маленькая Венеция
Фотографии Лобби Посёлок Millennium Park в Истринском районе
Детский клуб
Фотографии  Посёлок Millennium Park в Истринском районе
Видовой ресторан
Фотографии интерьеров Посёлок Millennium Park в Истринском районе
Спорт каждый день
Места поблизости посёлка Millennium Park
21 минута
6 минут
ESTATE MALL
22 минуты
5 минут
Даниловский рынок
23 минуты
6 минут
Ломоносовская школа «ИнТек»
27 минут
7 минут
Спортивный комплекс Jet Arena
30 минут
7 минут
English Nursery and Primary School
39 минут
8 минут
Гольф-клуб Agalarov Estate
43 минуты
9 минут
Crocus Fitness Agalarov Estate
57 минут
11 минут
Международная английская школа и детский сад Kingsley School
62 минуты
10 минут
Novaya Riga Outlet Village
0 минут
27 минут
Первая Московская гимназия

Застройщик посёлка Millennium Park

Villagio Estate – крупнейший девелопер, осуществляющий продажу элитной недвижимости в Подмосковье, единственный в России победитель международного конкурса FIABCI Prix d’Excellence.

Поможем получить ипотеку на самых выгодных условиях

Подайте заявку на ипотеку и получите решение сразу из нескольких банков-партнёров.
Одобрить ипотеку
bookshelf
photo
Блинова Анастасия
Ипотечный брокер
lamp

Частые вопросы

Что представляет собой проект «Миллениум Парк?»

«Миллениум Парк» – коттеджный посёлок премиум-класса в 24 км от МКАД с удобным выездом на Новорижское шоссе. На территории 5 парков с озёрами и каналами, пространства для спорта и отдыха. Вы можете купить просторный дом или свободный участок и наслаждаться загородной жизнью и природой Подмосковья.

Где расположен КП Millennium Park?

Посёлок находится в Подмосковье, в 24 км от МКАД по Новорижскому шоссе. До Москва Сити вы доедете за 45 минут, дорога до аэропорта Шереметьево займёт около часа.

Какие дома предлагаются в «Миллениум Парке»?

Вы можете купить дом площадью от 315 м² с отделкой под ключ. Коттеджи вдохновлены неоклассицизмом и спроектированы по 150 авторским проектам.

Какие цены на недвижимость в КП Millennium Park?

Цена домов начинается от 160 000 000 рублей. Стоимость участков – от 79 140 000 рублей.

Как устроена система безопасности в КП Millennium Park?

Для защиты жителей работает круглосуточная охрана и КПП – доступ осуществляется только по пропускам. На территории ведётся видеонаблюдение и осуществляется патрулирование.

Какая площадь участков в посёлке Millennium Park?

В продаже доступны свободные участки площадью от 13 соток.

Какая инфраструктура доступна жителям «Миллениум Парка»?

Для жителей обустроили спортивные площадки, открыли студию пилатеса и частный детский сад «Робин Клуб». Начните день с прогулки или пикника на природе, а вечер приятно провести в видовом ресторане Millennium.

Как организованы прогулочные зоны в парке?

В посёлке пять парков с озёрами, водными каналами и прогулочными тропинками.

Как купить дом в КП «Миллениум Парк»?

Если вы хотите купить таунхаус в КП «Миллениум Парк», закажите обратный звонок на сайте. Персональный менеджер расскажет о доступных вариантах или подберёт похожие объекты недвижимости.

Чем отличается КП «Миллениум Парк»?

Территория посёлка обустроена для спокойной загородной жизни в собственном доме рядом с живописными парками и комфортной инфраструктурой. Озёра, каналы и ухоженные поляны создают атмосферу европейского курорта недалеко от Москвы.

Похожие посёлки

Agalarov Estate

Agalarov Estate — загородное поместье из 260 коттеджей и участков. На территории выполнен ландшафтный дизайн в духе английских парков. Жителям поместья доступна богатая инфраструктура — клубный дом, теннисные корты, фитнес-центр, ресторан, детский английский клуб и профессиональный гольф-клуб на 18 лунок. Территория поместья круглосуточно охраняется.

Новорижское
до МКАД: 22 км
Квартиры, Участки и Коттеджи
от 62 700 000 ₽ от 777 000 $ от 670 000 €
Застройщик
Crocus Group
Сдача проекта
Сдан
Лоты Площадь от
Цена от
Новорижское
до МКАД: 22 км
Квартиры, Участки и Коттеджи
от 62 700 000 ₽ от 777 000 $ от 670 000 €
Площадь
от 167 м²
На страницу комплекса
Онегино

«Онегино» – коттеджный посёлок с участками площадью 25 соток и резиденциями до 700 м². Часть поселка отведена под трёхэтажные таунхаусы до 270 м² с участками 2 сотки. На охраняемой территории озеро с пляжем, оборудованная зона отдыха, английский детский сад, английская начальная школа, музыкальная студия и торговый комплекс.

Новорижское
до МКАД: 25 км
Таунхаусы, Участки и Коттеджи
от 66 000 000 ₽ от 818 000 $ от 706 000 €
Застройщик
Villagio Estate
Сдача проекта
Сдан
Лоты Площадь от
Цена от
Новорижское
до МКАД: 25 км
Таунхаусы, Участки и Коттеджи
от 66 000 000 ₽ от 818 000 $ от 706 000 €
Площадь
от 300 м²
На страницу комплекса
Княжье Озеро

«Княжье озеро» — коттеджный посёлок, на территории которого 1036 каменных особняков, роскошных кирпичных вилл и уютных коттеджей по канадской каркасной технологии. В центре посёлка озеро с рестораном, пляж с пристанью, три парка, спортивные площадки, школа, детский сад и школа искусств.

Новорижское
до МКАД: 24 км
Коттеджи и Участки
от 56 000 000 ₽ от 694 000 $ от 599 000 €
Застройщик
САПСАН
Сдача проекта
Сдан
Лоты Площадь от
Цена от
Новорижское
до МКАД: 24 км
Коттеджи и Участки
от 56 000 000 ₽ от 694 000 $ от 599 000 €
Площадь
от 250 м²
Скачать презентацию
Шато Соверен

«Шато Соверен» — закрытый клубный посёлок, на территории которого расположен 81 особняк. На охраняемой территории есть спа с бассейнами, фитнес-центр, ресторан, сигарный клуб, винный погреб на 15 000 бутылок и прогулочные зоны у водоемов. «Шато Соверен» — самая высокая точка Подмосковья, из некоторых домов открывается вид на Москва-Сити.

Новорижское
до МКАД: 16 км
Участки и Коттеджи
от 70 000 000 ₽ от 867 000 $ от 748 000 €
Застройщик
Застройщик неизвестен
Сдача проекта
Сдан
Лоты Площадь от
Цена от
Новорижское
до МКАД: 16 км
Участки и Коттеджи
от 70 000 000 ₽ от 867 000 $ от 748 000 €
Площадь
от 440 м²
Скачать презентацию
Art.Eco

Art.Eco – коттеджный посёлок в живописном сосновом лесу с охраняемой территорией и коттеджами в едином стиле на лесных и прелесных участках. Все дома светлые благодаря большой площади остекления фасада. Для отдыха жителей предусмотрены прогулочные дорожки около озера, 2 детские и спортивные площадки, зона барбекю, теннисный корт и банный комплекс.

Новорижское
до МКАД: 32 км
Коттеджи
от 100 000 000 ₽ от 1 240 000 $ от 1 070 000 €
Застройщик
Fahverk-house
Сдача проекта
Сдан
Лоты Площадь от
Цена от
Новорижское
до МКАД: 32 км
Коттеджи
от 100 000 000 ₽ от 1 240 000 $ от 1 070 000 €
Площадь
от 312 м²
На страницу комплекса
Monteville

Monteville – элитный коттеджный посёлок, расположенный в окружении леса вдоль реки Беляна в Истринском районе. На территории 324 коттеджа в различных стилях и участки от 10 до 30 соток. На охраняемой территории разбит роскошный сад с водоёмами, прогулочными дорожками, детскими и спортивными площадками.

Новорижское
до МКАД: 23 км
Коттеджи
от 89 000 000 ₽ от 1 100 000 $ от 952 000 €
Застройщик
Villagio Estate
Сдача проекта
Сдан
Лоты Площадь от
Цена от
Новорижское
до МКАД: 23 км
Коттеджи
от 89 000 000 ₽ от 1 100 000 $ от 952 000 €
Площадь
от 270 м²
На страницу комплекса
Резиденции Бенилюкс

«Резиденции Бенилюкс» — посёлок премиум-класса с собственной лесопарковой зоной. На закрытой территории 250 коттеджей в европейском стиле по типовым и уникальным проектам. В посёлке открыты детский сад, фитнес клуб с бассейном, кафе и ресторан, салон красоты, теннисный центр, прогулочные зоны, ветеринарная клиника, супермаркет и автомойка.

Новорижское
до МКАД: 17 км
Коттеджи и Участки
от 250 000 000 ₽ от 3 100 000 $ от 2 670 000 €
Застройщик
КМ Девелопмент
Сдача проекта
Сдан
Лоты Площадь от
Цена от
Новорижское
до МКАД: 17 км
Коттеджи и Участки
от 250 000 000 ₽ от 3 100 000 $ от 2 670 000 €
Площадь
от 337 м²
На страницу комплекса
Futuro Park

Futuro Park — посёлок таунхаусов в окружении леса. На территории 372 таунхауса с панорамным остеклением и эксплуатируемыми кровлями. Фасады таунхаусов облицованы австрийскими панелями «под дерево». Внутри свободная планировка без внутренних несущих стен. На участке каждого таунхауса уже засеян газон, высажены туи и работает система автополива.

Новорижское
до МКАД: 23 км
Таунхаусы
от 34 000 000 ₽ от 421 000 $ от 364 000 €
Застройщик
Villagio Estate
Сдача проекта
Сдан
Лоты Площадь от
Цена от
Новорижское
до МКАД: 23 км
Таунхаусы
от 34 000 000 ₽ от 421 000 $ от 364 000 €
Площадь
от 169 м²
На страницу комплекса
Береста

«Береста» — охраняемый коттеджный поселок, на территории которого расположено более 50 коттеджей по уникальным или по типовым проектам. Многие участки имеют выход к воде и собственный причал.

Новорижское
до МКАД: 1 км
Коттеджи и Участки
от 145 700 000 ₽ от 1 800 000 $ от 1 550 000 €
Застройщик
Застройщик неизвестен
Сдача проекта
Сдан
Лоты Площадь от
Цена от
Новорижское
до МКАД: 1 км
Коттеджи и Участки
от 145 700 000 ₽ от 1 800 000 $ от 1 550 000 €
Площадь
от 633 м²
Скачать презентацию
Park Fonte

Park Fonte — поселок из 182 таунхаусов с видом на озеро. Фасады с панорамным остеклением выполнены в стиле «эко-минимализм». Каждый таунхаус имеет три этажа, свободную планировку и выход на эксплуатируемую кровлю, где можно отдыхать или устраивать барбекю. На территории поселка открыт центр дошкольного образования, оборудована детская площадка, озеро с пляжной зоной, площадка для пляжного волейбола и баскетбольная площадка.

Новорижское
до МКАД: 23 км
Таунхаусы
от 58 000 000 ₽ от 718 000 $ от 620 000 €
Застройщик
Villagio Estate
Сдача проекта
Сдан
Лоты Площадь от
Цена от
Новорижское
до МКАД: 23 км
Таунхаусы
от 58 000 000 ₽ от 718 000 $ от 620 000 €
Площадь
от 245 м²
Скачать презентацию