Агентство элитной недвижимости
Пресненская набережная, 6с2,
башня «Империя»,
3-й подъезд, офис 4315
Московская область,
Рублёво-Успенское шоссе, Усово, 100, ДЦ «Резиденция на Рублёвке», Блок Г
+7 (495) 255-01-61 +7 (499) 877-49-39
Сейчас работаем

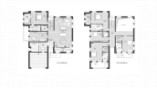
Коттедж, 538 м² в КП Monteville, лот №10115

Monteville
Современный загородный дом с бассейном и комнатой для персонала, 538 м²
474 000 000 ₽ 5 870 000 $ 5 070 000 €
881 000 ₽ / м² 11 000 $ / м² 9 419 € / м²
5 спальни
2 этажа
от собственника
538 м²
Загородный дом «под ключ» площадью 538 м² расположен на участке 17 соток с уютным ландшафтным дизайном и ровным газоном. Фасад в современном стиле облицован серым клинкерным кирпичом и декорирован подстветкой. В резиденции спланировали 5 спален, гостиную-кухню-столовую со вторым светом, кабинет, гараж. На территории предусмотрен SPA-комплекс с бассейном, сауной, комнатой отдыха и комнатой для персонала.
Читать полностью

О посёлке Monteville

Фотографии паркинга Посёлок «Монтевиль»
Архитектура посёлка
Фотографии  Посёлок «Монтевиль»
Парковая зона с рекой и пляжем
Фотографии приватной территории Посёлок «Монтевиль»
Сервисная служба
Фотографии  Посёлок «Монтевиль»
Закрытый клуб для собственников
Фотографии архитектуры Посёлок «Монтевиль»
Мобильное приложение
Фотографии Лобби Посёлок «Монтевиль»
Образование для детей
Фотографии  Посёлок «Монтевиль»
Окружение КП Monteville
Места поблизости посёлка Monteville
33 минуты
9 минут
Международная английская школа и детский сад Kingsley School
47 минут
9 минут
Спортивный комплекс Jet Arena
52 минуты
10 минут
Ломоносовская школа «ИнТек»
53 минуты
10 минут
ESTATE MALL
55 минут
10 минут
Даниловский рынок
40 минут
11 минут
English Nursery and Primary School
55 минут
11 минут
Гольф-клуб Agalarov Estate
62 минуты
11 минут
Novaya Riga Outlet Village
54 минуты
13 минут
Crocus Fitness Agalarov Estate
0 минут
21 минута
Первая Московская гимназия

Застройщик посёлка Monteville

Villagio Estate – крупнейший девелопер, осуществляющий продажу элитной недвижимости в Подмосковье, единственный в России победитель международного конкурса FIABCI Prix d’Excellence.

Поможем получить ипотеку на самых выгодных условиях

Подайте заявку на ипотеку и получите решение сразу из нескольких банков-партнёров.
Одобрить ипотеку
bookshelf
photo
Блинова Анастасия
Ипотечный брокер
lamp

Частые вопросы

Где расположен коттеджный посёлок Monteville?

Коттеджный посёлок Monteville находится в Истринском районе Подмосковья, в 23 км от МКАД по Новорижскому шоссе.

По какому шоссе удобнее добираться до дома в КП «Монтевиль»?

Из города Москва: лучше всего выбрать Новорижское шоссе. Всего 23 км от МКАД и вы приедете в коттеджей посёлок «Монтевиль» на Новой Риге.

Какая площадь КП Monteville и сколько всего домов?

Общая площадь коттеджного посёлка Monteville 115 га. На территории 342 дома — застройка идёт по кругу, поэтому создаётся ощущение простора и уединённости жизни. Коттеджи с разной площадью и планировкой.

Какие коттеджи доступны в КП Monteville?

Все дома в посёлке построены по индивидуальным проектам. Вы можете выбрать коттедж, который идеально подходит вам по стилю, площади и придомовому участку.

Что включает инфраструктура посёлка Monteville?

Приватная территория с сетью прогулочных дорожек вдоль реки Беляна, пруд с каменистым пляжем. И мостиками через реку. Укромные беседки и лавочки в лесной части посёлка — для отдыха под пение птиц. Детские площадки с горками, качелями и батутами. А ещё — спортивные зоны для командных игр и воркаута.

Как обеспечивается безопасность и доступ на территорию Monteville?

В посёлке работает КПП, круглосуточная система видеонаблюдения, патрулирование территории в ночное время. Доступ на территорию возможен только для вас и ваших гостей по пропускам.

Какие участки доступны к продаже в Monteville?

В продаже уже готовые коттеджи с дизайнерской отделкой. Подробности по актуальным коттеджам и стоимости — уточняйте у персонального брокера Whitewill.

Какая стоимость коттеджей в КП «Монтевиль»?

Стоимость домов начинается от 89 000 000 рублей.

Похожие посёлки

Agalarov Estate

Agalarov Estate — загородное поместье из 260 коттеджей и участков. На территории выполнен ландшафтный дизайн в духе английских парков. Жителям поместья доступна богатая инфраструктура — клубный дом, теннисные корты, фитнес-центр, ресторан, детский английский клуб и профессиональный гольф-клуб на 18 лунок. Территория поместья круглосуточно охраняется.

Новорижское
до МКАД: 22 км
Квартиры, Участки и Коттеджи
от 62 700 000 ₽ от 777 000 $ от 670 000 €
Застройщик
Crocus Group
Сдача проекта
Сдан
Лоты Площадь от
Цена от
Новорижское
до МКАД: 22 км
Квартиры, Участки и Коттеджи
от 62 700 000 ₽ от 777 000 $ от 670 000 €
Площадь
от 167 м²
На страницу комплекса
Онегино

«Онегино» – коттеджный посёлок с участками площадью 25 соток и резиденциями до 700 м². Часть поселка отведена под трёхэтажные таунхаусы до 270 м² с участками 2 сотки. На охраняемой территории озеро с пляжем, оборудованная зона отдыха, английский детский сад, английская начальная школа, музыкальная студия и торговый комплекс.

Новорижское
до МКАД: 25 км
Таунхаусы, Участки и Коттеджи
от 66 000 000 ₽ от 818 000 $ от 706 000 €
Застройщик
Villagio Estate
Сдача проекта
Сдан
Лоты Площадь от
Цена от
Новорижское
до МКАД: 25 км
Таунхаусы, Участки и Коттеджи
от 66 000 000 ₽ от 818 000 $ от 706 000 €
Площадь
от 300 м²
На страницу комплекса
Княжье Озеро

«Княжье озеро» — коттеджный посёлок, на территории которого 1036 каменных особняков, роскошных кирпичных вилл и уютных коттеджей по канадской каркасной технологии. В центре посёлка озеро с рестораном, пляж с пристанью, три парка, спортивные площадки, школа, детский сад и школа искусств.

Новорижское
до МКАД: 24 км
Коттеджи и Участки
от 56 000 000 ₽ от 694 000 $ от 599 000 €
Застройщик
САПСАН
Сдача проекта
Сдан
Лоты Площадь от
Цена от
Новорижское
до МКАД: 24 км
Коттеджи и Участки
от 56 000 000 ₽ от 694 000 $ от 599 000 €
Площадь
от 250 м²
Скачать презентацию
Шато Соверен

«Шато Соверен» — закрытый клубный посёлок, на территории которого расположен 81 особняк. На охраняемой территории есть спа с бассейнами, фитнес-центр, ресторан, сигарный клуб, винный погреб на 15 000 бутылок и прогулочные зоны у водоемов. «Шато Соверен» — самая высокая точка Подмосковья, из некоторых домов открывается вид на Москва-Сити.

Новорижское
до МКАД: 16 км
Участки и Коттеджи
от 70 000 000 ₽ от 867 000 $ от 748 000 €
Застройщик
Застройщик неизвестен
Сдача проекта
Сдан
Лоты Площадь от
Цена от
Новорижское
до МКАД: 16 км
Участки и Коттеджи
от 70 000 000 ₽ от 867 000 $ от 748 000 €
Площадь
от 440 м²
Скачать презентацию
Millennium Park

Millennium Park — элитный коттеджный посёлок делюкс-класса в Истринском районе. На территории 670 коттеджей в стиле неоклассицизма и модерна. Посёлок — призер в номинации «Малоэтажная жилая недвижимость» международного конкурса FIABCI Prix d’Excellence. На охраняемой территории открыты 5 парков с каналами и скульптурами, озеро с шезлонгами и летним кафе, детский городок, площадки для гольфа, футбола и тенниса, и частный детский сад.

Новорижское
до МКАД: 19 км
Участки и Коттеджи
от 79 140 000 ₽ от 980 000 $ от 846 000 €
Застройщик
Villagio Estate
Сдача проекта
Сдан
Лоты Площадь от
Цена от
Новорижское
до МКАД: 19 км
Участки и Коттеджи
от 79 140 000 ₽ от 980 000 $ от 846 000 €
Площадь
от 315 м²
На страницу комплекса
Art.Eco

Art.Eco – коттеджный посёлок в живописном сосновом лесу с охраняемой территорией и коттеджами в едином стиле на лесных и прелесных участках. Все дома светлые благодаря большой площади остекления фасада. Для отдыха жителей предусмотрены прогулочные дорожки около озера, 2 детские и спортивные площадки, зона барбекю, теннисный корт и банный комплекс.

Новорижское
до МКАД: 32 км
Коттеджи
от 100 000 000 ₽ от 1 240 000 $ от 1 070 000 €
Застройщик
Fahverk-house
Сдача проекта
Сдан
Лоты Площадь от
Цена от
Новорижское
до МКАД: 32 км
Коттеджи
от 100 000 000 ₽ от 1 240 000 $ от 1 070 000 €
Площадь
от 312 м²
На страницу комплекса
Резиденции Бенилюкс

«Резиденции Бенилюкс» — посёлок премиум-класса с собственной лесопарковой зоной. На закрытой территории 250 коттеджей в европейском стиле по типовым и уникальным проектам. В посёлке открыты детский сад, фитнес клуб с бассейном, кафе и ресторан, салон красоты, теннисный центр, прогулочные зоны, ветеринарная клиника, супермаркет и автомойка.

Новорижское
до МКАД: 17 км
Коттеджи и Участки
от 250 000 000 ₽ от 3 100 000 $ от 2 670 000 €
Застройщик
КМ Девелопмент
Сдача проекта
Сдан
Лоты Площадь от
Цена от
Новорижское
до МКАД: 17 км
Коттеджи и Участки
от 250 000 000 ₽ от 3 100 000 $ от 2 670 000 €
Площадь
от 337 м²
На страницу комплекса
Futuro Park

Futuro Park — посёлок таунхаусов в окружении леса. На территории 372 таунхауса с панорамным остеклением и эксплуатируемыми кровлями. Фасады таунхаусов облицованы австрийскими панелями «под дерево». Внутри свободная планировка без внутренних несущих стен. На участке каждого таунхауса уже засеян газон, высажены туи и работает система автополива.

Новорижское
до МКАД: 23 км
Таунхаусы
от 34 000 000 ₽ от 421 000 $ от 364 000 €
Застройщик
Villagio Estate
Сдача проекта
Сдан
Лоты Площадь от
Цена от
Новорижское
до МКАД: 23 км
Таунхаусы
от 34 000 000 ₽ от 421 000 $ от 364 000 €
Площадь
от 169 м²
На страницу комплекса
Береста

«Береста» — охраняемый коттеджный поселок, на территории которого расположено более 50 коттеджей по уникальным или по типовым проектам. Многие участки имеют выход к воде и собственный причал.

Новорижское
до МКАД: 1 км
Коттеджи и Участки
от 145 700 000 ₽ от 1 800 000 $ от 1 550 000 €
Застройщик
Застройщик неизвестен
Сдача проекта
Сдан
Лоты Площадь от
Цена от
Новорижское
до МКАД: 1 км
Коттеджи и Участки
от 145 700 000 ₽ от 1 800 000 $ от 1 550 000 €
Площадь
от 633 м²
Скачать презентацию
Park Fonte

Park Fonte — поселок из 182 таунхаусов с видом на озеро. Фасады с панорамным остеклением выполнены в стиле «эко-минимализм». Каждый таунхаус имеет три этажа, свободную планировку и выход на эксплуатируемую кровлю, где можно отдыхать или устраивать барбекю. На территории поселка открыт центр дошкольного образования, оборудована детская площадка, озеро с пляжной зоной, площадка для пляжного волейбола и баскетбольная площадка.

Новорижское
до МКАД: 23 км
Таунхаусы
от 58 000 000 ₽ от 718 000 $ от 620 000 €
Застройщик
Villagio Estate
Сдача проекта
Сдан
Лоты Площадь от
Цена от
Новорижское
до МКАД: 23 км
Таунхаусы
от 58 000 000 ₽ от 718 000 $ от 620 000 €
Площадь
от 245 м²
Скачать презентацию