Коттедж, 420 м² в КП Княжье Озеро, лот №9722
Княжье Озеро
Просторный дом с мансардой и дровяным камином, 420 м²
152 000 000 ₽
1 920 000 $
1 660 000 €
362 000 ₽ / м²
4 572 $ / м²
3 941 € / м²
6 спален
3 этажа
от собственника
420 м²
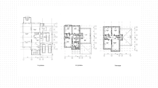
Дом площадью 420 м² по проекту «Шардоне» с мансардой расположен на полевом участке 11 соток. Фасад кирпичного здания в европейском стиле облицован клинкерным кирпичом двух цветов. Гараж для 2 машин встроен в первый этаж. В доме выполнена отделка в современном стиле со встроенной техникой. На первом этаже — гостиная с дровяным камином и выходом на террасу. На втором этаже спальня хозяев с приватным санузлом, и 2 детские спальни. Мансарда отведена под бильярдную и гостевую зону. На участке выполнили ландшафтный дизайн, высадили деревья, установили детскую игровую площадку и построили русскую деревянную баню 70 м² с отдельной комнатой отдыха.
Читать полностью
Lot Complex (ID=8) not found