Агентство элитной недвижимости
Пресненская набережная, 6с2,
башня «Империя»,
3-й подъезд, офис 4315
Московская область,
Рублёво-Успенское шоссе, Усово, 100, ДЦ «Резиденция на Рублёвке», Блок Г
+7 (495) 255-01-61 +7 (499) 877-49-39
Сейчас работаем

Русский язык, верно?

Коттедж, 486 м² в КП Маслово Forest Club, лот №14125

Маслово Forest Club
Коттедж, 486 м²
Цена по запросу Цена по запросу Цена по запросу
Цена по запросу Цена по запросу Цена по запросу
4 спальни
2 этажа
новостройка
486 м²
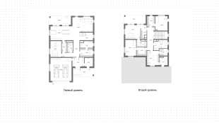
Коттедж по проекту Victory в современном стиле площадью 486 м², создан для тех, кто ценит динамику и индивидуальность. Его внешний облик построен на контрасте светлого кирпича и тёмного дерева, благодаря чему фасады выглядят динамично и цельно. Первый уровень организован вокруг жизни семьи — кухня-столовая с выходом на террасу, кабинет и обособленная гостиная, где легко создать атмосферу уединения. Удобная логика зон позволяют интерьеру «дышать» и сохраняют ощущение естественного комфорта. Второй уровень предназначен для отдыха. Здесь находятся четыре спальни, включая мастер-спальню с собственным балконом — местом, где особенно приятно встречать утро или завершать день наедине с тишиной. Участок размером 12,4 сотки позволяет воплотить индивидуальный сценарий ландшафта: дорожки, ведущие к тенистым уголкам, площадка с костром для тёплых вечеров, детская зона или пространство для активного отдыха
Читать полностью