Агентство элитной недвижимости
Пресненская набережная, 6с2,
башня «Империя»,
3-й подъезд, офис 4315
Московская область,
Рублёво-Успенское шоссе, Усово, 100, ДЦ «Резиденция на Рублёвке», Блок Г
+7 (495) 255-01-61 +7 (499) 877-49-39
Сейчас работаем

Русский язык, верно?

Коттедж, 486 м² в КП Маслово Forest Club, лот №14124

Маслово Forest Club
Коттедж, 486 м²
141 474 000 ₽ 1 855 847 $ 1 576 625 €
291 099 ₽ / м² 3 819 $ / м² 3 244 € / м²
4 спальни
2 этажа
без отделки
новостройка
486 м²
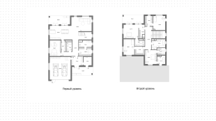
Коттедж по проекту Victory площадью 486 м² выполнен в минималистичном стиле с чистыми формами и выразительными линиями. Фасады объединяют светло-серый клинкерный кирпич и тёмное дерево, а панорамные окна задают ритм дому, наполняя его светом и воздухом. Сердце дома — кухня-столовая с выходом на террасу, где утренние лучи превращают пространство в уголок для завтраков на свежем воздухе. На втором уровне расположены четыре спальни, включая мастер-спальню с собственным балконом — здесь можно встречать рассвет, наслаждаться тишиной или проводить вечера с книгой и чашкой чая. Просторный участок площадью 12,3 сотки открывает возможности для авторского ландшафтного оформления: высадка хвойных деревьев и плодовых кустарников формирует живые уголки, у кострища можно устраивать вечерние посиделки с друзьями, а детская и спортивная зоны превращают участок в пространство для активного отдыха.
Читать полностью