Агентство элитной недвижимости
Пресненская набережная, 6с2,
башня «Империя»,
3-й подъезд, офис 4315
Московская область,
Рублёво-Успенское шоссе, Усово, 100, ДЦ «Резиденция на Рублёвке», Блок Г
+7 (495) 255-01-61 +7 (499) 877-49-39
Сейчас работаем

Коттедж, 420 м², в КП Madison Park, лот №13987

Madison Park
Коттедж, 420 м²
350 000 000 ₽ 4 933 000 $ 4 269 200 €
833 333 ₽ / м² 11 745 $ / м² 10 165 € / м²
5 спален
2 этажа
от собственника
420 м²
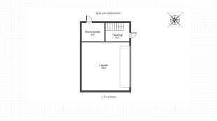
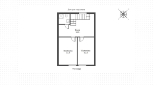
Новый загородный дом площадью 420 м² расположен на полевом участке 12 соток. Современный фасад облицован бразильским сланцем и известняком, а мягкая архитектурная подсветка подчеркивает строгие линии здания. Панорамные окна из лиственницы открывают живописные виды на посёлок и наполняют внутреннее пространство солнечными лучами. Интерьеры выдержаны в спокойных тонах и отделаны с использованием натуральных мрамора, оникса, гранита и шпона дуба. Коттедж частично укомплектован мебелью, бытовой техникой V-ZUG, а также сантехникой и светильниками от итальянских, немецких и швейцарских производителей. Планировка включает просторную гостиную-столовую с камином, кухню с удобным островом, 5 спален и вместительные гардеробные. Терраса и балконы станут любимыми местами для отдыха на свежем воздухе. Кроме того, на территории построен дом для персонала площадью 100 м², где разместили гараж и 2 комнаты. Участок благоустроен — здесь засеян аккуратный газон, брусчаткой вымощена въездная группа и проведено уличное освещение, создающее приятную атмосферу в вечерние часы.
Читать полностью

О посёлке Madison Park

Фотографии паркинга Коттеджный посёлок «Мэдисон Парк»
Недвижимость
Фотографии  Коттеджный посёлок «Мэдисон Парк»
Живописное озеро
Фотографии приватной территории Коттеджный посёлок «Мэдисон Парк»
Парк
Фотографии  Коттеджный посёлок «Мэдисон Парк»
Спорт каждый день
Фотографии  Коттеджный посёлок «Мэдисон Парк»
Клуб привилегий Villagio Estate
Фотографии  Коттеджный посёлок «Мэдисон Парк»
Окружение

Места поблизости посёлка «Мэдисон Парк»

Международная английская школа и детский сад Kingsley School
Novaya Riga Outlet Village
English Nursery and Primary School
Спортивный комплекс Jet Arena
Конный клуб «Дивный»
Ломоносовская школа «ИнТек»
Гольф-клуб Agalarov Estate
ESTATE MALL
Даниловский рынок
Crocus Fitness Agalarov Estate

Застройщик коттеджного посёлка Madison Park

Villagio Estate — крупнейший девелопер, осуществляющий продажу элитной недвижимости в Подмосковье, единственный в России победитель международного конкурса «Всемирный приз за выдающиеся достижения в недвижимости» (FIABCI Prix d’Excellence).

Поможем получить ипотеку на самых выгодных условиях

Подайте заявку на ипотеку и получите решение сразу из нескольких банков-партнёров.

Одобрить ипотеку
bookshelf
photo
Блинова Анастасия
Ипотечный брокер
lamp

Частые вопросы о посёлке Madison Park

Где расположен коттеджный посёлок «Мэдисон Парк»?

КП «Мэдисон Парк» расположен в Истринском районе, в 25 км от МКАД от Москвы по Новорижскому шоссе. Также есть удобный выезд на Ильинское шоссе. Локация на Новой Риге сочетает удобную дорогу до города и приватную загородную среду.

К какому классу относится посёлок «Мэдисон Парк»?

Madison Park – коттеджный посёлок премиум-класса, относящийся к сегменту элитной недвижимости. Проект был отмечен профессиональной премией как один из лучших в своём классе.

Какие дома и коттеджи представлены в КП Madison Park?

Среди объектов недвижимости – коттеджи площадью от 300 до 1500 м², а также земельные участки от 12 до 140 соток.

В каком архитектурном стиле выполнены дома?

Архитектура домов в Мэдисон Парке выдержана в классических стилях – ампир, ренессанс, ар-деко и неоклассика.

Есть ли в продаже свободные участки?

Да, в продаже представлены участки разной площади, на которых можно реализовать собственный проект коттеджа. Формат посёлка позволяет выбрать как готовый дом, так и участок под индивидуальное строительство.

Какая природная среда окружает посёлок Madison Park?

Территория Madison Park окружена реликтовым лесом, что обеспечивает тишину, приватность и благоприятную экологию. Природная среда играет ключевую роль в концепции проекта и повседневной жизни резидентов.

Что представляет собой озеро на территории КП «Мэдисон Парк»?

На территории расположено собственное озеро с пляжем площадью около одного гектара. В тёплое время это зона отдыха у воды, зимой – каток.

Какие зоны отдыха и парки есть в посёлке «Мэдисон Парк»?

В коттеджном комплексе обустроены парки, прогулочный бульвар, зоны отдыха, беседки и мостики. Пространство продумано для спокойных прогулок, встреч и отдыха всей семьёй.

Есть ли в коттеджном посёлке Madison Park инфраструктура для спорта и детей?

На территории работают детские зоны, воркаут-площадка и площадка для пляжного волейбола. Также обустроена отдельная зона для выгула собак.

Какие дополнительные преимущества даёт Villagio Estate?

Жители Мэдисон Парка получают доступ к инфраструктуре Villagio Estate: паркам, ресторанам, образовательным объектам и зонам отдыха соседних посёлков. Это расширяет возможности для жизни, досуга и социальной среды без смены района.

Похожие посёлки

Agalarov Estate

Agalarov Estate — загородное поместье из 260 коттеджей и участков. На территории выполнен ландшафтный дизайн в духе английских парков. Жителям поместья доступна богатая инфраструктура — клубный дом, теннисные корты, фитнес-центр, ресторан, детский английский клуб и профессиональный гольф-клуб на 18 лунок. Территория поместья круглосуточно охраняется.

Новорижское
до МКАД: 22 км
Участки и Коттеджи
от 116 930 000 ₽ от 1 650 000 $ от 1 430 000 €
Застройщик
Crocus Group
Сдача проекта
Сдан
Лоты Площадь от
Цена от
Новорижское
до МКАД: 22 км
Участки и Коттеджи
от 116 930 000 ₽ от 1 650 000 $ от 1 430 000 €
Площадь
от 800 м²
Город
Москва
На страницу комплекса
Онегино

«Онегино» – коттеджный посёлок с участками площадью 25 соток и резиденциями до 700 м². Часть поселка отведена под трёхэтажные таунхаусы до 270 м² с участками 2 сотки. На охраняемой территории озеро с пляжем, оборудованная зона отдыха, английский детский сад, английская начальная школа, музыкальная студия и торговый комплекс.

Новорижское
до МКАД: 25 км
Таунхаусы и Коттеджи
от 66 000 000 ₽ от 930 000 $ от 805 000 €
Застройщик
Villagio Estate
Сдача проекта
Сдан
Лоты Площадь от
Цена от
Новорижское
до МКАД: 25 км
Таунхаусы и Коттеджи
от 66 000 000 ₽ от 930 000 $ от 805 000 €
Площадь
от 300 м²
Город
Москва
На страницу комплекса
Княжье Озеро

«Княжье озеро» — коттеджный посёлок, на территории которого 1036 каменных особняков, роскошных кирпичных вилл и уютных коттеджей по канадской каркасной технологии. В центре посёлка озеро с рестораном, пляж с пристанью, три парка, спортивные площадки, школа, детский сад и школа искусств.

Новорижское
до МКАД: 24 км
Коттеджи
от 56 000 000 ₽ от 789 000 $ от 683 000 €
Застройщик
САПСАН
Сдача проекта
Сдан
Лоты Площадь от
Цена от
Новорижское
до МКАД: 24 км
Коттеджи
от 56 000 000 ₽ от 789 000 $ от 683 000 €
Площадь
от 250 м²
Город
Москва
Скачать презентацию
Шато Соверен

«Шато Соверен» — закрытый клубный посёлок, на территории которого расположен 81 особняк. На охраняемой территории есть спа с бассейнами, фитнес-центр, ресторан, сигарный клуб, винный погреб на 15 000 бутылок и прогулочные зоны у водоемов. «Шато Соверен» — самая высокая точка Подмосковья, из некоторых домов открывается вид на Москва-Сити.

Новорижское
до МКАД: 16 км
Участки и Коттеджи
от 70 000 000 ₽ от 987 000 $ от 854 000 €
Застройщик
Застройщик неизвестен
Сдача проекта
Сдан
Лоты Площадь от
Цена от
Новорижское
до МКАД: 16 км
Участки и Коттеджи
от 70 000 000 ₽ от 987 000 $ от 854 000 €
Площадь
от 440 м²
Город
Москва
Скачать презентацию
Millennium Park

Millennium Park — элитный коттеджный посёлок делюкс-класса в Истринском районе. На территории 670 коттеджей в стиле неоклассицизма и модерна. Посёлок — призер в номинации «Малоэтажная жилая недвижимость» международного конкурса FIABCI Prix d’Excellence. На охраняемой территории открыты 5 парков с каналами и скульптурами, озеро с шезлонгами и летним кафе, детский городок, площадки для гольфа, футбола и тенниса, и частный детский сад.

Новорижское
до МКАД: 19 км
Коттеджи и Участки
Цена по запросу
Застройщик
Villagio Estate
Сдача проекта
Сдан
Лоты Площадь от
Цена от
Новорижское
до МКАД: 19 км
Коттеджи и Участки
Цена по запросу
Площадь
от 315 м²
Город
Москва
На страницу комплекса
Art.Eco

Art.Eco – коттеджный посёлок в живописном сосновом лесу с охраняемой территорией и коттеджами в едином стиле на лесных и прелесных участках. Все дома светлые благодаря большой площади остекления фасада. Для отдыха жителей предусмотрены прогулочные дорожки около озера, 2 детские и спортивные площадки, зона барбекю, теннисный корт и банный комплекс.

Новорижское
до МКАД: 32 км
 
Цена по запросу
Застройщик
Fahverk-house
Сдача проекта
Сдан
Новорижское
до МКАД: 32 км
 
Цена по запросу
Город
Москва
Monteville

Monteville – элитный коттеджный посёлок, расположенный в окружении леса вдоль реки Беляна в Истринском районе. На территории 324 коттеджа в различных стилях и участки от 10 до 30 соток. На охраняемой территории разбит роскошный сад с водоёмами, прогулочными дорожками, детскими и спортивными площадками.

Новорижское
до МКАД: 23 км
Коттеджи
от 89 000 000 ₽ от 1 250 000 $ от 1 090 000 €
Застройщик
Villagio Estate
Сдача проекта
Сдан
Лоты Площадь от
Цена от
Новорижское
до МКАД: 23 км
Коттеджи
от 89 000 000 ₽ от 1 250 000 $ от 1 090 000 €
Площадь
от 270 м²
Город
Москва
На страницу комплекса
Резиденции Бенилюкс

«Резиденции Бенилюкс» — посёлок премиум-класса с собственной лесопарковой зоной. На закрытой территории 250 коттеджей в европейском стиле по типовым и уникальным проектам. В посёлке открыты детский сад, фитнес клуб с бассейном, кафе и ресторан, салон красоты, теннисный центр, прогулочные зоны, ветеринарная клиника, супермаркет и автомойка.

Новорижское
до МКАД: 17 км
Коттеджи и Участки
от 227 040 000 ₽ от 3 200 000 $ от 2 770 000 €
Застройщик
КМ Девелопмент
Сдача проекта
Сдан
Лоты Площадь от
Цена от
Новорижское
до МКАД: 17 км
Коттеджи и Участки
от 227 040 000 ₽ от 3 200 000 $ от 2 770 000 €
Площадь
от 337 м²
Город
Москва
На страницу комплекса
Futuro Park

Futuro Park — посёлок таунхаусов в окружении леса. На территории 372 таунхауса с панорамным остеклением и эксплуатируемыми кровлями. Фасады таунхаусов облицованы австрийскими панелями «под дерево». Внутри свободная планировка без внутренних несущих стен. На участке каждого таунхауса уже засеян газон, высажены туи и работает система автополива.

Новорижское
до МКАД: 23 км
Таунхаусы
от 34 000 000 ₽ от 479 000 $ от 415 000 €
Застройщик
Villagio Estate
Сдача проекта
Сдан
Лоты Площадь от
Цена от
Новорижское
до МКАД: 23 км
Таунхаусы
от 34 000 000 ₽ от 479 000 $ от 415 000 €
Площадь
от 169 м²
Город
Москва
На страницу комплекса
Береста

«Береста» — охраняемый коттеджный посёлок, на территории которого расположено более 50 коттеджей по уникальным или по типовым проектам. Многие участки имеют выход к воде и собственный причал.

Новорижское
до МКАД: 1 км
Коттеджи
от 127 710 000 ₽ от 1 800 000 $ от 1 560 000 €
Застройщик
Застройщик неизвестен
Сдача проекта
Сдан
Лоты Площадь от
Цена от
Новорижское
до МКАД: 1 км
Коттеджи
от 127 710 000 ₽ от 1 800 000 $ от 1 560 000 €
Площадь
от 633 м²
Город
Москва
На страницу комплекса