Агентство элитной недвижимости
Пресненская набережная, 6с2,
башня «Империя»,
3-й подъезд, офис 4315
Московская область,
Рублёво-Успенское шоссе, Усово, 100, ДЦ «Резиденция на Рублёвке», Блок Г
+7 (495) 255-01-61 +7 (499) 877-49-39
Сейчас работаем

Коттедж, 150 м², в КП Британика, лот №13490

Британика
Дом с 4-мя спальнями, 150 м²
22 000 000 ₽ 292 400 $ 248 900 €
146 667 ₽ / м² 1 949 $ / м² 1 659 € / м²
4 спальни
2 этажа
без отделки
от собственника
150 м²
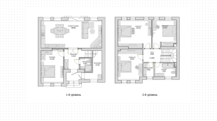
Загородный дом в английском стиле площадью 150 м² на полевом участке 4,3 сотки. Фасад здания облицован красно-коричневым клинкерным кирпичом. Свободная планировка позволяет организовать пространство по собственному усмотрению, есть возможность выбрать готовый дизайн-проект с учетом особенностей планировки. Проектом предусмотрены 4 спальни, кухня-гостиная, 2 санузла, постирочная и котельная. На ухоженном участке можно обустроить уютные места для отдыха с барбекю-зоной.
Читать полностью