Агентство элитной недвижимости
Пресненская набережная, 6с2,
башня «Империя»,
3-й подъезд, офис 4315
Московская область,
Рублёво-Успенское шоссе, Усово, 100, ДЦ «Резиденция на Рублёвке», Блок Г
+7 (495) 255-01-61 +7 (499) 877-49-39
Сейчас работаем

Коттедж, 751 м² в КП Берёзки River Village, лот №12991

Берёзки River Village
Загородная резиденция с панорамными окнами и открытым бассейном, 751 м²
200 340 000 ₽ 2 590 000 $ 2 190 000 €
267 000 ₽ / м² 3 444 $ / м² 2 916 € / м²
4 спальни
2 этажа
без отделки
от собственника
751 м²
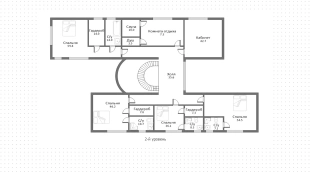
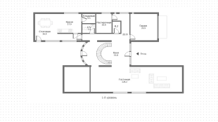
Загородная резиденция площадью 751 м² расположена на полевом участке 22,3 сотки. Современный фасад облицован серо-бежевой штукатуркой и декорирован панелями с фактурой дерева. Благодаря панорамному остеклению и второму свету дом наполнен воздухом и солнечными лучами. Коттедж без отделки позволяет будущим владельцам выбрать финишные покрытия, мебель и технику по своему усмотрению.

В двухэтажном особняке два крыла, соединенных холлом и парадной лестницей. Планировка включает просторную гостиную, 4 спальни, кабинет и SPA-зону с комнатой отдыха и сауной. Также в контуре дома предусмотрен гараж площадью 35,9 м². Рядом с основным зданием под навесом оборудован открытый бассейн. На участке засеян газон, растут деревья, придомовая территория вымощена брусчаткой.
Читать полностью

О кП «Берёзки River Village»

Фотографии паркинга Коттеджный поселок «Березки River Village»
Недвижимость
Фотографии  Коттеджный поселок «Березки River Village»
Спорт каждый день
Фотографии приватной территории Коттеджный поселок «Березки River Village»
Лучшее образование детям
Фотографии  Коттеджный поселок «Березки River Village»
Реликтовый лес
Фотографии  Коттеджный поселок «Березки River Village»
Окружение
Фотографии  Коттеджный поселок «Березки River Village»
Транспортная доступность

Места поблизости посёлка «Берёзки Ривер Вилладж»

Березки бассейн by Crocus Fitness
Кембриджская Международная школа, кампус Горки
Лапино Фитнес
Клинический госпиталь «Лапино»
Ломоносовская школа
Конный клуб «Янсон»
Гимназия «Жуковка»
Riviera Fitness & SPA
Конное сообщество Aec Equestrian
Подушкинский лес
Барвиха Luxury Village

Застройщик посёлка «Берёзки River Village»

«City Land Group» – строительная компания, занимающаяся возведением и реализацией жилых комплексов и объектов социального значения. «City Land Group» работает на территории Москвы, Московской области и Новой Москвы.

Поможем получить ипотеку на самых выгодных условиях

Подайте заявку на ипотеку и получите решение сразу из нескольких банков-партнёров.

Одобрить ипотеку
bookshelf
photo
Блинова Анастасия
Ипотечный брокер
lamp

Частые вопросы о КП «Берёзки Ривер Вилладж»

Где расположен коттеджный посёлок «Берёзки River Village»?

Посёлок расположен в Московской области, в 13 км от МКАД по Рублёво-Успенскому шоссе. Локация сочетает удобную транспортную доступность и жизнь в окружении природы.

К какому классу относится КП «Берёзки River Village»?

Это элитный коттеджный комплекс, рассчитанный на комфортное постоянное проживание.

Какие объекты недвижимости представлены в посёлке «Берёзки Ривер Вилладж»?

В посёлке представлены домовладения в формате индивидуальных резиденций. Все дома выполнены в едином стиле и образуют цельную архитектурную среду.

Какая площадь домов и какие планировки?

Площадь домов начинается от 585 м². В коттеджах спланированы террасы, мастер-спальни, гардеробные, хозяйственные помещения и продуманные жилые зоны.

Есть ли в продаже готовые коттеджи?

Да, в продаже представлены готовые объекты недвижимости.

Какая стоимость коттеджей в КП «Берёзки Ривер Вилладж»?

Стоимость домов начинается от 195 000 000 рублей.

Как организована безопасность на территории?

В посёлке высокий уровень безопасности: закрытая территория, КПП, видеонаблюдение и регулярное патрулирование.

Какая инфраструктура есть внутри комплекса «Берёзки Ривер Вилладж»?

На территории комплекса работают фитнес-клуб Crocus Fitness с бассейном, крытый каток, школа и детский сад. Вся инфраструктура создана в одном месте для удобства жителей.

Подходит ли посёлок «Берёзки River Village» для семейного проживания?

Формат посёлка ориентирован на семейную жизнь. Образовательные объекты, спортивная инфраструктура и безопасная среда делают проживание удобным для родителей и детей.

Чем привлекает природное окружение посёлка?

Комплекс окружён берёзовой рощей и спроектирован с бережным отношением к природе. Прогулки, свежий воздух и тишина становятся частью повседневной жизни.

Какие объекты инфраструктуры расположены рядом с посёлком «Берёзки Ривер Вилладж»?

В пешей доступности находятся магазины и сервисы, а рядом расположен торгово-развлекательный центр «Галерея Лапино». Дополняют окружение конные и теннисные клубы.

Похожие посёлки

Жуковка 21

«Жуковка 21» — элитный коттеджный посёлок на берегу Москвы-реки, в самом центре знаменитой Рублёвки. На территории 51 коттедж, каждый из которых разработан по индивидуальному проекту с отделкой в современном или классическом стиле. Для жителей благоустроены скверы, открыт фитнес-клуб, открытый бассейн с пляжем, детский клуб, теннисные корты и ресторан здорового питания.

Рублёво-Успенское
до МКАД: 9 км
Коттеджи
Цена по запросу
Застройщик
Gletcher
Сдача проекта
Сдан
Лоты Площадь от
Цена от
Рублёво-Успенское
до МКАД: 9 км
Коттеджи
Цена по запросу
Площадь
от 770 м²
На страницу комплекса
Барвиха Хиллс

«Барвиха Хиллс» — клубный поселок на 100 таунхаусов в стиле хай-тек по проекту голландского архитектора Эрика ван Эгераата, с панорамным остеклением и лаконичными фасадами. Все таунхаусы соединенны сетью подземных дорог и гаражей — это позволило создать на территории поселка уютную пешеходную зону.

Рублёво-Успенское
до МКАД: 7 км
 
Цена по запросу
Застройщик
Capital Group
Сдача проекта
Сдан
Рублёво-Успенское
до МКАД: 7 км
 
Цена по запросу
Новое Лапино

«Новое Лапино» — элитный коттеджный посёлок в окружении Ново-Дарьинского леса. На территории коттеджи, таунхаусы и квартиры в современном стиле с отделкой под ключ или без отделки. Для жителей доступны детские и спортивные площадки, детские сады, спа и спортивный клуб. У въезда в посёлок расположена торговая галерея.

Рублёво-Успенское
до МКАД: 18 км
Таунхаусы и Участки
от 70 000 000 ₽ от 895 000 $ от 760 000 €
Застройщик
ФЛЭТ и Ко
Сдача проекта
Сдан
Лоты Площадь от
Цена от
Рублёво-Успенское
до МКАД: 18 км
Таунхаусы и Участки
от 70 000 000 ₽ от 895 000 $ от 760 000 €
Площадь
от 368 м²
Скачать презентацию
Азарово

«Азарово» — загородный посёлок, на территории которого расположены коттеджи, таунхаусы и многоквартирные дома в классическом стиле. Для прогулок и отдыха предусмотрено 40 гектаров Ново-Дарьинского леса, парки и оздоровительно-развлекательный комплекс. Для маленьких жителей открыт детский сад, две частные школы, футбольное поле и игровые площадки.

Рублёво-Успенское
до МКАД: 23 км
Квартиры и Коттеджи
от 21 150 000 ₽ от 270 000 $ от 230 000 €
Застройщик
ФЛЭТ и Ко
Сдача проекта
Сдан
Лоты Площадь от
Цена от
Рублёво-Успенское
до МКАД: 23 км
Квартиры и Коттеджи
от 21 150 000 ₽ от 270 000 $ от 230 000 €
Площадь
от 85 м²
Скачать презентацию
Успенка 21

«Успенка 21» – элитный коттеджный посёлок клубного типа из 30 коттеджей в едином английском стиле. С архитекторами посёлка можно осуществить индивидуальные дизайнерские решения. У каждого дома есть гараж. Для маленьких жителей предусмотрена детская площадка.

Рублёво-Успенское
до МКАД: 24 км
Коттеджи
от 260 000 000 ₽ от 3 360 000 $ от 2 840 000 €
Застройщик
Застройщик неизвестен
Сдача проекта
Сдан
Лоты Площадь от
Цена от
Рублёво-Успенское
до МКАД: 24 км
Коттеджи
от 260 000 000 ₽ от 3 360 000 $ от 2 840 000 €
Площадь
от 427 м²
Скачать презентацию
Лион

«Лион» – камерный коттеджный поселок в окружении экологически-чистого леса. На территории 50 коттеджей без отделки в неоклассическом стиле. Владельцы прилесных участков могут дополнительно арендовать участок с лесом. Территория поселка огорожена и охраняется.

Рублёво-Успенское
до МКАД: 27 км
 
Цена по запросу
Застройщик
Газпромбанк-Инвест
Сдача проекта
Сдан
Рублёво-Успенское
до МКАД: 27 км
 
Цена по запросу
ParkVille

ParkVille — коттеджный посёлок из 57 коттеджей в английском классическом стиле и собственный пейзажный парк на 40 гектаров. Прямо на территории для жителей открыта большая частная школа, детский сад и обсерватория. Всего в 15 минутах на машине — расположен торгово-развлекательный комплекс Barvikha Luxury Village.

Рублёво-Успенское
до МКАД: 10 км
Коттеджи
от 689 270 000 ₽ от 8 900 000 $ от 7 530 000 €
Застройщик
Квинтурин
Сдача проекта
Сдан
Лоты Площадь от
Цена от
Рублёво-Успенское
до МКАД: 10 км
Коттеджи
от 689 270 000 ₽ от 8 900 000 $ от 7 530 000 €
Площадь
от 1400 м²
На страницу комплекса
Николино

«Николино» — элитный охраняемый коттеджный посёлок. На общей территории в 170 гектаров расположено более 300 домов. Для жителей посёлка создана роскошная инфраструктура: искусственные водоёмы в лесу, ландшафтные парки, детский клуб, частный пляж, спорткомплекс, ресторан и кафе, магазины, теннисные корты и боулинг.

Рублёво-Успенское
до МКАД: 24 км
Коттеджи, Участки и Таунхаусы
Цена по запросу
Застройщик
Mirum
Сдача проекта
Сдан
Лоты Площадь от
Цена от
Рублёво-Успенское
до МКАД: 24 км
Коттеджи, Участки и Таунхаусы
Цена по запросу
Площадь
от 350 м²
На страницу комплекса
Раздоры-2

«Раздоры-2» — коттеджный поселок на берегу Москвы-реки, окруженный густым сосновым бором. Дизайн домов выполнен в английском стиле, из красного кирпича и белого камня с симметричными элементами, строгими линиями и сдержанными цветами в отделке. На территории поселка открыта гимназия им. Примакова, частный детский сад и парки для прогулок и отдыха.

Рублёво-Успенское
до МКАД: 4 км
Коттеджи
от 348 510 000 ₽ от 4 500 000 $ от 3 810 000 €
Застройщик
Millhouse Capitals
Сдача проекта
Сдан
Лоты Площадь от
Цена от
Рублёво-Успенское
до МКАД: 4 км
Коттеджи
от 348 510 000 ₽ от 4 500 000 $ от 3 810 000 €
Площадь
от 413 м²
Скачать презентацию
Ландшафт

На лесной территории клубного поселка «Ландшафт» расположены загородные резиденции и дома, выполненные по уникальным дизайн-проектам в классическом и европейском стиле. У въезда в поселок для жителей работает кафе, салон красоты, французская булочная и автомойка.

Рублёво-Успенское
до МКАД: 9 км
Коттеджи
от 395 000 000 ₽ от 5 050 000 $ от 4 290 000 €
Застройщик
Застройщик неизвестен
Сдача проекта
Сдан
Лоты Площадь от
Цена от
Рублёво-Успенское
до МКАД: 9 км
Коттеджи
от 395 000 000 ₽ от 5 050 000 $ от 4 290 000 €
Площадь
от 325 м²
Скачать презентацию