Агентство элитной недвижимости
Пресненская набережная, 6с2,
башня «Империя»,
3-й подъезд, офис 4315
Московская область,
Рублёво-Успенское шоссе, Усово, 100, ДЦ «Резиденция на Рублёвке», Блок Г
+7 (495) 255-01-61 +7 (499) 877-49-39
Сейчас работаем

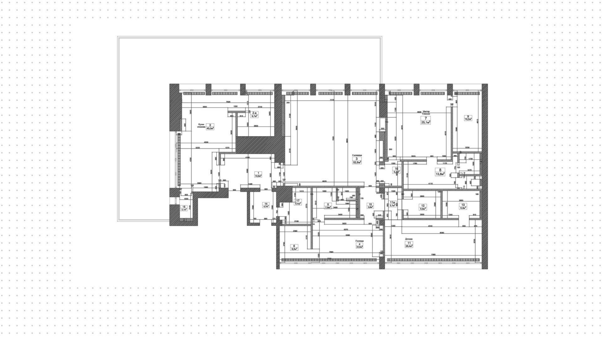
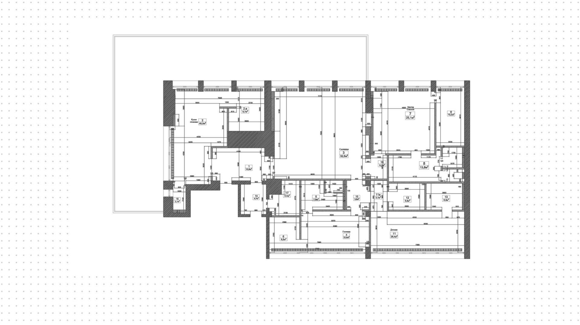
Квартиры c 3 спальнями, 246 м², в ЖК Дворянское гнездо, 7 этаж

Дворянское гнездо
Пентхаус, 246 м²
Смоленская, 9 минут
676 380 600 ₽ 8 990 000 $ 7 653 400 €
2 749 515 ₽ / м² 36 545 $ / м² 31 111 € / м²
3 спальни
7 этаж из 7
без отделки
от собственника
246 м²
Видовой пентхаус площадью 246 м² с собственной террасой в клубном комплексе «Дворянское гнездо» в Хамовниках. Пентхаус без отделки расположен на 7-м этаже. Высота потолков 3,3 метра, часть окон с панорамным остеклением. Пентхаус зонирован на кухню, гостиную с дровяным камином, 3 спальни с санузлами, гардеробные. Собственная терраса площадью 180 м². Единственная квартира на этаже, собственный лифт. С террасы открывается живописный вид на город.
Читать полностью