Вилла c 4 спальнями, 390 м², в ЖК Cameo, 1 этаж
Cameo
Трёхэтажная вилла с панорамным видом на город и приватный двор-сад, 390 м²
Новослободская, 6 минут
500 000 000 ₽
6 988 500 $
5 851 400 €
1 282 051 ₽ / м²
17 919 $ / м²
15 004 € / м²
4 спальни
3 этажа
с отделкой
3 квартал 2021
от собственника
390 м²
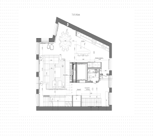
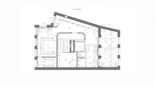
Вилла в комплексе делюкс-класса Cameo Moscow Villas. Трёхэтажная вилла общей площадью 390 м² с открытым панорамным видом на город и приватный двор-сад. У виллы спланировано три входа — центральный из сада, через подземный паркинг и патио. Выполнены все черновые и чистовые работы, в отделке использован натуральный мрамор. Установлены лестницы и лифт ThyssenKrupp, проведено кондиционирование и вентиляция, установлены радиаторы и конвектора, электрика.
1-й этаж: просторная кухня-гостиная с газовым камином и выходом в собственное камерное патио 100 м². 2-й этаж: три мастер-спальни с санузлами и гардеробными. 3-й этаж: большая мастер-спальня, кабинет, гардеробная, уютная терраса с зоной барбекю 22 м². Цокольный этаж: комната для персонала, техническое помещение. На нулевом этаже подземный паркинг с 2 машиноместами.
1-й этаж: просторная кухня-гостиная с газовым камином и выходом в собственное камерное патио 100 м². 2-й этаж: три мастер-спальни с санузлами и гардеробными. 3-й этаж: большая мастер-спальня, кабинет, гардеробная, уютная терраса с зоной барбекю 22 м². Цокольный этаж: комната для персонала, техническое помещение. На нулевом этаже подземный паркинг с 2 машиноместами.
Читать полностью
Lot Complex (ID=547) not found