Агентство элитной недвижимости
Пресненская набережная, 6с2,
башня «Империя»,
3-й подъезд, офис 4315
Московская область,
Рублёво-Успенское шоссе, Усово, 100, ДЦ «Резиденция на Рублёвке», Блок Г
+7 (495) 255-01-61 +7 (499) 877-49-39
Сейчас работаем

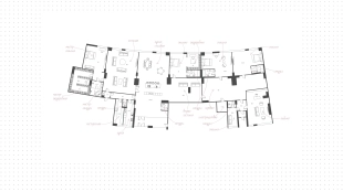
Апартаменты c 6 спальнями, 1100 м² в ЖК Снегири ЭКО, 1 этаж

Снегири ЭКО
Апартаменты с 6 спальнями, 1 100 м²
Минская, 12 минут
1 100 000 000 ₽ 14 047 800 $ 12 013 400 €
1 000 000 ₽ / м² 12 771 $ / м² 10 921 € / м²
6 спален
1 этаж из 8
без отделки
от собственника
1 100 м²
Уникальные апартаменты с 6 спальнями общей площадью 1100 м² в клубном комплексе премиум-класса «Снегири Эко». Апартаменты без отделки расположены на 1 этаже в корпусе 1. Возможно спланировать просторную кухню-гостиную-столовую, 6 спален, санузлы, отдельные гардеробные, игровую и холл. На крыше собственное патио площадью 150 м², здесь можно устроить зону СПА или сад с хвойными и туями. В апартаментах отдельных вход для прислуги. В наличии готовый дизайн-проект. За дополнительную плату возможно приобрести 2 машино-места в подземном паркинге.
Читать полностью

О комплексе

Фотографии архитектуры ЖК Снегири ЭКО
Архитектура
Фотографии приватной территории ЖК Снегири ЭКО
Приватная территория
Фотографии инфраструктуры ЖК Снегири ЭКО
Инфраструктура
Фотографии Лобби ЖК Снегири ЭКО
Лобби
Фотографии интерьеров ЖК Снегири ЭКО
Варианты квартир
Фотографии  ЖК Снегири ЭКО
Виды
Фотографии  ЖК Снегири ЭКО
Окружение
Фотографии  ЖК Снегири ЭКО
Транспортная доступность

Места поблизости

Мосфильмовский пруд
Московский городской Гольф Клуб
«Парк Победы»
ДЦ «Москва-Сити»
Спортивный комплекс «Лужники»
Кремль
Сад МГУ
«Воробьёвы горы»
«Долина реки Сетунь»
Дом правительства

Застройщик комплекса «Снегири ЭКО»

«Снегири Девелопмент» — одна из самых известных и авторитетных строительных компаний в России. Сегодня в портфолио застройщика 33 проекта, семь из которых успешно функционируют в регионах России: Сочи, Новосибирск, Ростов-на-Дону и Краснодар.

Снегири ЭКО
от 430 000 000 ₽
Lake House
от 399 000 000 ₽

Поможем получить ипотеку на самых выгодных условиях

Подайте заявку на ипотеку и получите решение сразу из нескольких банков-партнёров.

Одобрить ипотеку
bookshelf
photo
Блинова Анастасия
Ипотечный брокер
lamp

Частые вопросы

Когда был сдан клубный квартал «Снегири ЭКО»?

Комплекс сдали в 2019 году.

Какая высота домов в ЖК «Снегири ЭКО»?

В жилом комплексе малоэтажная застройка. Высота домов — от 4 до 8 этажей. Они гармонично вписываются в устоявшийся архитектурный ландшафт района.

Где находятся дома жилого комплекса «Снегири ЭКО»?

Клубные дома расположены в Москве на улице Минской. Они находятся в экологические чистом месте — в районе Раменки.

Кто застройщик жилого комплекса?

Девелопер квартала — компания «Снегири». Сегодня в портфолио компании 33 проекта. В их числе — готовые дома Lake House, «Гранатный, 8» и другие.

Сколько стоят квартиры в жилом комплексе?

Стоимость м² — от  1 457 000 рублей. Приобрести пентхаус с террасой и балконом общей площадью 241 м² можно за 351 500 000 рублей. А роскошную резиденцию с 6 спальнями и площадью 405 м² — за 1 000 000 000 рублей.

Как можно купить квартиру в ЖК «Снегири ЭКО»?

Оставьте заявку на обратный звонок — персональный брокер оперативно с вами свяжется. Мы расскажем основные моменты по проекту и организуем показ в удобное для вас время.

Похожие комплексы

Hide

Небоскрёбы премиум-класса с завораживающим видом на реку Сетунь, Лужники, МГУ, «Москва-Сити» и Воробьёвы горы. Огромная территория с парком, приватный выход к Сетуньскому лесопарку, lounge-зона c камином, терраса – это малая часть плюсов жизни в Hide.

Раменки
Кутузовская , 7 минут
Квартиры
от 31 000 000 ₽ от 396 000 $ от 339 000 €
Застройщик
Dominanta
Сдача проекта
Сдан
Лоты Площадь от
Цена от
Кутузовская , 7 минут
Квартиры
от 31 000 000 ₽ от 396 000 $ от 339 000 €
Площадь
от 45 м²
Район
Раменки
На страницу комплекса
West Garden

Зеленый оазис с собственной набережной и парком на западе Москвы. Занимайтесь утренней пробежкой у набережной реки Раменка, гуляйте в долине реки Сетунь и наполняйтесь энергией природы у порога дома.

Раменки
Минская, 11 минут
Минская , 10 минут
Квартиры
от 23 580 000 ₽ от 301 000 $ от 258 000 €
Застройщик
Sminex
Сдача проекта
Сдан
Лоты Площадь от
Цена от
Минская, 11 минут
Минская , 10 минут
Квартиры
от 23 580 000 ₽ от 301 000 $ от 258 000 €
Площадь
от 27 м²
Район
Раменки
На страницу комплекса
Woods

Клубный дом между Московским гольф-клубом и территорией «Мосфильма» с приватным ландшафтным парком. Можно выбрать резиденции от двух до четырёх спален, а также таунхаусы с патио и двухуровневые пентхаусы площадью с террасами и каминами.

Раменки
Кутузовская, 6 минут
Ломоносовский проспект , 7 минут
Квартиры
от 226 520 000 ₽ от 2 890 000 $ от 2 470 000 €
Застройщик
AB Development
Сдача проекта
Сдан
Лоты Площадь от
Цена от
Кутузовская, 6 минут
Ломоносовский проспект , 7 минут
Квартиры
от 226 520 000 ₽ от 2 890 000 $ от 2 470 000 €
Площадь
от 162 м²
Район
Раменки
Скачать презентацию
Сторис

Проект бизнес-класса в 15 минутах от метро «Аминьевская». Рядом заказник «Долина реки Сетунь». Предусмотрены квартиры с угловыми окнами, террасами и крытыми лоджиями. На последних этажах пентхаусы. Во внутреннем дворе для жителей будет патио с променадами.

Раменки
Аминьевская, 3 минут
Квартиры
от 26 490 000 ₽ от 338 000 $ от 289 000 €
Застройщик
October Group
Сдача проекта
2 кв. 2026
Лоты Площадь от
Цена от
Аминьевская, 3 минут
Квартиры
от 26 490 000 ₽ от 338 000 $ от 289 000 €
Площадь
от 30 м²
Район
Раменки
На страницу комплекса
Lake House

Клубный дом на 36 квартир на берегу Мосфильмовского пруда. Из дома можно выйти в приватный парк с зоной отдыха. В доме можно выбрать квартиру с высокими потолками и панорамными окнами, или пентхаус с террасой на верхнем этаже.

Раменки
Минская, 14 минут
Квартиры
от 399 000 000 ₽ от 5 100 000 $ от 4 360 000 €
Застройщик
Снегири Девелопмент
Сдача проекта
Сдан
Лоты Площадь от
Цена от
Минская, 14 минут
Квартиры
от 399 000 000 ₽ от 5 100 000 $ от 4 360 000 €
Площадь
от 492 м²
Район
Раменки
Скачать презентацию
«Дом на Мосфильмовской»

Две башни высотой 33 и 53 этажа на Воробьевых горах. Небоскребы в светлых и темных тонах соединены общей 7-этажной галереей. Для жителей комплекса доступен коньсерж-сервис. На приватной территории разбиты цветники, посажены липы и спортивные площадки.

Раменки
Минская , 7 минут
Квартиры
от 69 000 000 ₽ от 881 000 $ от 754 000 €
Застройщик
Донстрой
Сдача проекта
Сдан
Лоты Площадь от
Цена от
Минская , 7 минут
Квартиры
от 69 000 000 ₽ от 881 000 $ от 754 000 €
Площадь
от 107 м²
Район
Раменки
На страницу комплекса
Золотые Ключи 2

Раменки
Ломоносовский проспект, 16 минут
Квартиры и Таунхаусы
от 75 000 000 ₽ от 958 000 $ от 819 000 €
Застройщик
Застройщик неизвестен
Сдача проекта
Сдан
Лоты Площадь от
Цена от
Ломоносовский проспект, 16 минут
Квартиры и Таунхаусы
от 75 000 000 ₽ от 958 000 $ от 819 000 €
Площадь
от 201 м²
Район
Раменки
Скачать презентацию
Мосфильмовский

Комплекс квартир бизнес-класса из 8-ми корпусов до 21 этажа. Можно выбрать квартиры с 1-й, 2-мя, 3-мя или 4-мя комнатами. На территории комплекса оборудованы детские и спортивные площадки, пешеходные дорожки среди деревьев и цветочных клумб, детские сады и школа.

Раменки
Раменки, 13 минут
Раменки , 4 минут
Квартиры
от 63 000 000 ₽ от 805 000 $ от 688 000 €
Застройщик
Монарх
Сдача проекта
Сдан
Лоты Площадь от
Цена от
Раменки, 13 минут
Раменки , 4 минут
Квартиры
от 63 000 000 ₽ от 805 000 $ от 688 000 €
Площадь
от 117 м²
Район
Раменки
Скачать презентацию
Воробьевы горы

Жилой комплекс премиум-класса из 7-ми корпусов, соедённых общим стилобатом. В лобби работает круглосуточный консьерж-сервис. В комплексе можно выбрать квартиру с готовой отделкой от собственника или без отделки. На последних этажах пентхаусы с террасами.

Раменки
Ломоносовский проспект, 14 минут
Квартиры
от 530 000 000 ₽ от 6 770 000 $ от 5 790 000 €
Застройщик
Донстрой
Сдача проекта
Сдан
Лоты Площадь от
Цена от
Ломоносовский проспект, 14 минут
Квартиры
от 530 000 000 ₽ от 6 770 000 $ от 5 790 000 €
Площадь
от 640 м²
Район
Раменки
Скачать презентацию
Квартал Шуваловский

Раменки
Ломоносовский проспект, 5 минут
Квартиры
от 81 000 000 ₽ от 1 030 000 $ от 885 000 €
Застройщик
Sminex
Сдача проекта
Сдан
Лоты Площадь от
Цена от
Ломоносовский проспект, 5 минут
Квартиры
от 81 000 000 ₽ от 1 030 000 $ от 885 000 €
Площадь
от 110 м²
Район
Раменки
Скачать презентацию