Агентство элитной недвижимости
Пресненская набережная, 6с2,
башня «Империя»,
3-й подъезд, офис 4315
Московская область,
Рублёво-Успенское шоссе, Усово, 100, ДЦ «Резиденция на Рублёвке», Блок Г
+7 (495) 255-01-61 +7 (499) 877-49-39
Сейчас работаем

Квартиры c 4 спальнями, 489 м² в ЖК Barkli Park, 12 этаж

Barkli Park
Пентхаус, 489 м²
Достоевская, 9 минут
550 000 000 ₽ 6 847 120 $ 5 943 423 €
1 124 744 ₽ / м² 14 002 $ / м² 12 154 € / м²
4 спальни
12 этаж из 12
WhiteBox
от собственника
489 м²
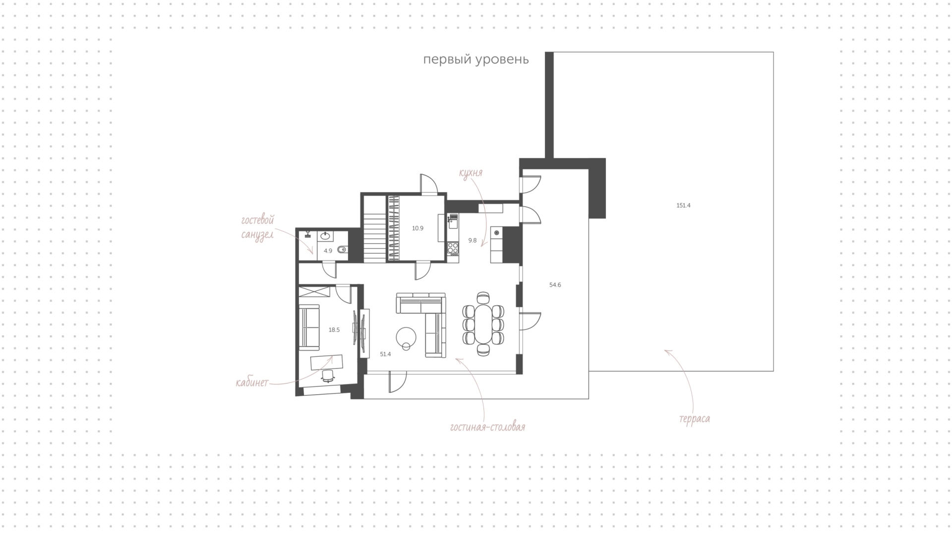
Уникальный двухуровневый пентхаус с террасой и панорамными видами в комплексе премиум-класса Barkli Park. Пентхаус общей площадью 489 м² расположен на 12 этаже. Выполнена предчистовая отделка white box, разведено электричество, отопление и водоснабжение. Из окон, ориентированных на три стороны, открываются потрясающие виды на Екатерининский и Фестивальный парки, центр Москвы. Эксклюзивностью пентхауса является роскошная гостиная со вторым светом, панорамными окнами высотой 7 метров и выходом на открытую террасу. Планировочные решения по авторскому дизайн-проекту — 1 уровень: гостиная, кухня, кабинет/спальня, ванная комната, терраса. На 2 уровне: мастер-спальня, 2 спальни, две гардеробных, 2 ванных комнаты, бытовая комната. Площадь пентхауса 282 м², террасы — 206 м². За дополнительную плату возможно приобрести два машино-места в подземном паркинге.
Читать полностью