Агентство элитной недвижимости
Пресненская набережная, 6с2,
башня «Империя»,
3-й подъезд, офис 4315
Московская область,
Рублёво-Успенское шоссе, Усово, 100, ДЦ «Резиденция на Рублёвке», Блок Г
+7 (495) 255-01-61 +7 (499) 877-49-39
Сейчас работаем

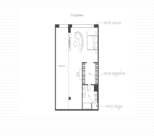
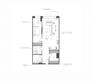
Апартаменты c 2 спальнями, 157 м² в ЖК Рассвет, 4 этаж

Рассвет
Апартаменты с 2-мя спальнями, 157 м²
Улица 1905 года, 8 минут
89 000 000 ₽ 1 107 989 $ 961 754 €
566 879 ₽ / м² 7 057 $ / м² 6 126 € / м²
2 спальни
4 этаж из 5
без отделки
от собственника
157 м²
Двухуровневые апартаменты с двумя спальнями и вторым светом в комплексе бизнес-класса «Рассвет». Апартаменты без отделки площадью 157 м² расположены на 4-м этаже. Возможная планировка: кухня-гостиная, 2 спальни, санузлы, гардеробные, балкон и холл. Благодаря панорамному остеклению пространство наполнено естественным светом.
Читать полностью