Агентство элитной недвижимости
Пресненская набережная, 6с2,
башня «Империя»,
3-й подъезд, офис 4315
Московская область,
Рублёво-Успенское шоссе, Усово, 100, ДЦ «Резиденция на Рублёвке», Блок Г
+7 (495) 255-01-61 +7 (499) 877-49-39
Сейчас работаем

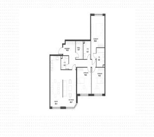
Квартиры c 3 спальнями, 137 м² в ЖК Событие, 23 этаж

Событие
Квартира с 3-мя спальнями, 137 м²
Мичуринский проспект, 8 минут
80 000 000 ₽ 995 945 $ 864 498 €
583 942 ₽ / м² 7 270 $ / м² 6 310 € / м²
3 спальни
23 этаж из 33
без отделки
2 квартал 2025
от собственника
137 м²
Просторная квартира с 3-мя спальнями в современном комплексе бизнес-класса «Событие-3» в Раменках. Квартира без отделки площадью 137 м² расположена на 23-м этаже в секции 2. Планировка включает кухню-гостиную, мастер-спальню с собственной ванной комнатой, 2 изолированные спальни, два санузла, гардеробную и холл. Окна ориентированы на две стороны света, открываются панорамные виды на парк.
Читать полностью