Агентство элитной недвижимости
Пресненская набережная, 6с2,
башня «Империя»,
3-й подъезд, офис 4315
Московская область,
Рублёво-Успенское шоссе, Усово, 100, ДЦ «Резиденция на Рублёвке», Блок Г
+7 (495) 255-01-61 +7 (499) 877-49-39
Сейчас работаем

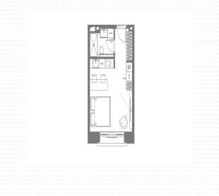
Апартаменты, 28 м², в ЖК CULT, 4 этаж

CULT
Студия, 28 м²
Октябрьская, 1 минута
41 600 000 ₽ 582 900 $ 497 100 €
1 485 714 ₽ / м² 20 818 $ / м² 17 754 € / м²
4 этаж из 9
с отделкой
1 квартал 2025
от собственника
28 м²
Уютная студия площадью 28 м² в комплексе премиум-класса CULT. Студия с готовой чистовой отделкой расположена на 4-м этаже в корпусе 1. Планировка включает кухню-столовую, зону гостиной или спальни, ванную комнату и прихожую. Благодаря панорамному остеклению пространство наполнено естественным светом и теплом.
Читать полностью