Luxury real estate agency
Presnenskaya Embankment, 6c2,
Empire Tower,
3rd entrance, office 4315
Moscow region,
Rublyovo-Uspenskoe highway, Usovo, 100, RC "Residence on Rublyovka", Block G

Ready-made rental business, 216 m², Sushchevsky Val, 53, Lot №11489

Level Nizhny Novgorodskaya
On Sushchevsky Val, 53, 216 m²
Maryina Roshcha district
Maryina Roscha, 2 minutes
RUB 110,000,000 $1,390,000 €1,200,000
RUB 509,000 / m² $6,441 / m² €5,572 / m²
with finishing
new building
216 m²
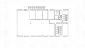
Ready to rent business on the 1st line of Sushchevsky Val in Maryina Roshcha neighborhood. Due to the proximity to Jazz business center and public transport stop there is an intensive automobile and pedestrian traffic along the premises. Surrounding area - cafe "Chaikhana OSH", bars "Moriki", Harat's pub, fast-food Rostic's. In 2 minutes on foot you can reach the metro station "Maryina Roshcha". The open-plan 216 sq.m. object is located on the 2nd floor of a non-residential building. The tenant is BetBoom bookmaker's office. All central communications are provided. There are separate entrances from the 1st and 2nd floor from the street and from the yard, window glazing, planned unloading zone. Paid city parking lot is located next to the building.
Read Full