Luxury real estate agency
Presnenskaya Embankment, 6c2,
Empire Tower,
3rd entrance, office 4315
Moscow region,
Rublyovo-Uspenskoe highway, Usovo, 100, RC "Residence on Rublyovka", Block G

Ready-made rental business, 3062 m², Medovy lane, 5c1, Lot №26495

У лота нет комплекса
Rental business in "Hive Plaza" business center, 3,062 m²
Sokolinaya Gora district
RUB 560,350,000 $7,350,000 €6,190,000
RUB 183,000 / m² $2,399 / m² €2,022 / m²
with finishing
new building
3,062 m²
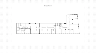
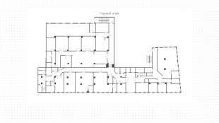
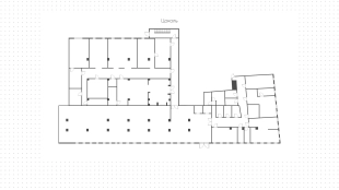
Ready to rent business with an area of 3 062 m² in the business center "Uley Plaza". The object is located on the basement, first and second floors of a five-storey building. The premises with a combined layout and designer finishing are occupied by company offices. There is a dedicated area for the head, separate offices for employees, meeting rooms, equipped kitchen area and several bathrooms. It is possible to allocate retail space from 37 m² to 337 m². Supply and exhaust ventilation and individual air conditioning systems are installed. There is a separate entrance from the street.
Read Full