Luxury real estate agency
Presnenskaya Embankment, 6c2,
Empire Tower,
3rd entrance, office 4315
Moscow region,
Rublyovo-Uspenskoe highway, Usovo, 100, RC "Residence on Rublyovka", Block G

Office, 1700 m², Ryabinovaya, 26, Lot №31986

У лота нет комплекса
Modern office in West Plaza business center, 1,700 m²
Ochakovo-Matveevskoye district
RUB 320,000,000 $4,210,000 €3,590,000
RUB 188,000 / m² $2,395 / m² €2,027 / m²
with finishing
new building
1,700 m²
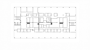
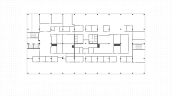
Office of 1 700 sq.m. in Ochakovo-Matveevsky district. The object with a combined layout is located on the 7th floor of the 2nd building of the business center West Plaza. The premises have been finished, supply and exhaust ventilation and central air conditioning systems have been installed. VIP-zone for executives, open space, meeting rooms, offices, checkroom and bathrooms are planned. Entrance is made through the common lobby in the building by pass.
Read Full