Luxury real estate agency
Presnenskaya Embankment, 6c2,
Empire Tower,
3rd entrance, office 4315
Moscow region,
Rublyovo-Uspenskoe highway, Usovo, 100, RC "Residence on Rublyovka", Block G

Ready-made rental business, 2308 m², Minskaya, 2Zh, Lot №19505

У лота нет комплекса
Rental business in Victory Park Plaza business center, 2,308 m²
Ramenki district
RUB 1,107,840,000 $13,810,000 €11,950,000
RUB 480,000 / m² $5,983 / m² €5,176 / m²
with finishing
new building
2,308 m²
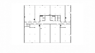
Ready to rent business with the area of 2 308 m² in Ramenki district. The object is located on the 3rd floor in Victory Park Plaza business center. The room with a combined layout is occupied by the company's office, ceiling height is 3 meters. Inside there are open-space zones, separate offices, kitchen and bathrooms. Supply and exhaust ventilation and central air conditioning systems are installed. Entrance is carried out through the building by pass.
Read Full