Luxury real estate agency
Presnenskaya Embankment, 6c2,
Empire Tower,
3rd entrance, office 4315
Moscow region,
Rublyovo-Uspenskoe highway, Usovo, 100, RC "Residence on Rublyovka", Block G

Ready-made rental business, 7530 m², Gilyarovsky, 39c3, Lot №19080

У лота нет комплекса
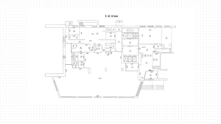
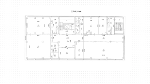
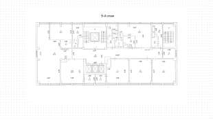
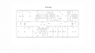
Class B+ office building in Meshchansky District, 7,530 m²
Meshchansky district
RUB 1,700,000,000 $22,000,000 €18,640,000
RUB 226,000 / m² $2,922 / m² €2,475 / m²
with finishing
new building
7,530 m²
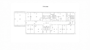
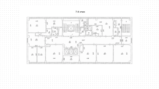
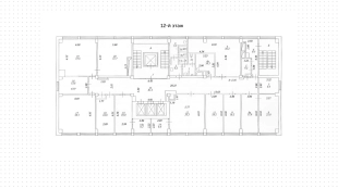
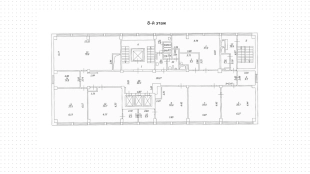
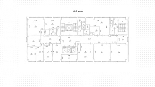
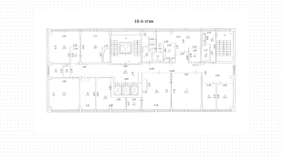
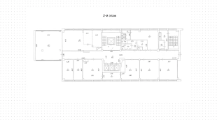
Ready to rent business in a class B business center in Meshchansky district. The building with total area of 7,530 m² with basement and technical floor is occupied by several tenants, including Sber Bank, VTB NPF and Glavkosmos JSC. Inside the premises with office finish and combined layout, the electrical capacity is 4,000 kW. For convenience of movement there are 3 passenger and 1 freight elevators by Schindler. Security is ensured by access control, 24-hour video surveillance and security systems. The business center infrastructure includes a central reception with a waiting area, small and large conference halls, ATMs. For car owners there is a ground parking lot with 12 parking spaces.
Read Full