Luxury real estate agency
Presnenskaya Embankment, 6c2,
Empire Tower,
3rd entrance, office 4315
Moscow region,
Rublyovo-Uspenskoe highway, Usovo, 100, RC "Residence on Rublyovka", Block G

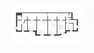
Office, 137 m², Khodynskiy boulevard, 19, Lot №16758

Grand Park
Office in MFC "Grand Park", 137 m²
Khoroshevsky district
RUB 55,000,000 $724,000 €618,000
RUB 401,000 / m² $5,145 / m² €4,432 / m²
with finishing
new building
137 m²
Office of 137 m² in Khoroshyovsky district. The premise is located on the 1st floor in the multifunctional residential complex "Grand Park". The interior is finished in office style, there is a system of supply and exhaust ventilation and central air conditioning. There is a separate entrance from the street. The territory is closed from outsiders, security is provided by video surveillance and access control.
Read Full