Luxury real estate agency
Presnenskaya Embankment, 6c2,
Empire Tower,
3rd entrance, office 4315
Moscow region,
Rublyovo-Uspenskoe highway, Usovo, 100, RC "Residence on Rublyovka", Block G

card.kind.building, 8006 m², Nagatinskaya, 16k1c5, Lot №14024

Level Nizhny Novgorodskaya
At 16 Nagatinskaya Street, 8,006 m²
Nagatino-Sadovniki district
RUB 1,150,000,000 $14,540,000 €12,580,000
RUB 144,000 / m² $1,817 / m² €1,572 / m²
with finishing
new building
8,006 m²
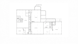
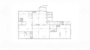
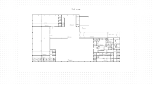
Two-storey building on the 1st line of Nagatinskaya Street in Nagatino-Sadovniki district. Public transportation stop provides intensive traffic along the premises. Surrounding - shopping center "Confetti", cafe "Vesuvius", coffee shop I-cup, clothing store "Sudar", residential complex "Second Nagatinsky". A quick exit to the Varshavskoe highway is planned. The object with a mezzanine and an open floor plan with an area of 8 006 m². Finishing behind the exit of the car dealership. On the 1st floor there are 2 showrooms, repair area, car wash, storage rooms, on the 2nd floor there is a drive-in for cars, showroom, repair area, storage and office premises. There are separate entrances from the street and from the yard, window glazing and unloading area. The territory has its own parking lot. If necessary, we will help you find a tenant for your premises.
Read Full